Picture this: you're walking into your new home, feeling the warmth of a well-designed space that makes every day feel just right. That's what a thoughtfully planned two-bedroom ranch floor plan can do for you. These homes offer a perfect blend of comfort, functionality, and practicality. Whether you're planning a first home, downsizing, or building your dream house, understanding ranch floor plans is essential.
Ranch homes have been a favorite among families for decades. Their low-profile design, open layouts, and easy accessibility make them ideal for many different lifestyles. When it comes to two-bedroom ranch floor plans, there's a surprising variety of options available. From traditional designs to modern interpretations, these homes can be tailored to fit almost any family's needs. The beauty of a ranch style home lies in its ability to provide spacious living while maintaining a cozy atmosphere.
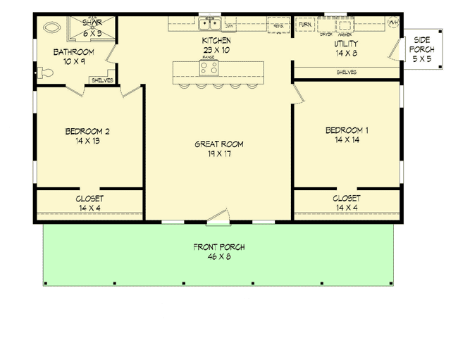
Understanding the Classic Ranch Layout

The traditional ranch floor plan features a single-story design with rooms arranged linearly. This approach maximizes space efficiency and creates a natural flow between areas. Think of it like a well-organized kitchen - each section has its purpose, but everything connects smoothly. In a typical two-bedroom ranch, you'll usually find the bedrooms positioned at one end, with the living area and kitchen in the center. This setup works incredibly well for families who want easy access to common areas while maintaining privacy for sleeping spaces. The long, horizontal lines of a ranch design often make it feel more spacious than it actually is, which is a huge plus for those who love to entertain or simply want more room to move around.
Key Features to Look For
When evaluating two-bedroom ranch floor plans, several elements stand out as particularly important:

These features work together to create a home that feels both comfortable and practical. Consider how you use your space daily - if you cook frequently, the kitchen location matters greatly. If you enjoy entertaining, an open living area might be more important than a separate dining room.
Bedroom Arrangement Options
The positioning of bedrooms can dramatically change the character of your ranch home. Here are the most popular arrangements:

Parallel Bedrooms: Both bedrooms sit side-by-side, creating a quiet zone away from the main living areas. This setup works great for families with children who need separate sleeping spaces.
Sequential Bedrooms: One bedroom follows the other in a straight line, which can save space and create a logical flow through the home.
Offset Bedrooms: Bedrooms are placed at different levels or angles, offering more visual interest and potentially better privacy between sleeping areas.

Each arrangement has its advantages. Parallel bedrooms give you more separation, while sequential setups can be more efficient for smaller homes. Offset arrangements add character and can help define different zones within the home. Think about your family's routine and preferences when choosing the bedroom layout that fits best.
Kitchen and Living Area Integration
One of the biggest benefits of a ranch floor plan is the opportunity to create seamless connections between cooking and living spaces. Many modern two-bedroom ranch homes feature kitchens that open directly into living areas, allowing families to cook while staying connected to their guests. This design choice promotes conversation and makes meal preparation more social. The kitchen island becomes a central gathering point, whether you're preparing food or just having casual conversations. Some homeowners even choose to extend their kitchen into a breakfast nook, adding another informal eating area that's perfect for morning coffee or quick snacks. This kind of integration helps break down barriers between formal and casual spaces, creating a more relaxed atmosphere.

Practical Considerations for Daily Life
Beyond aesthetics, practical aspects really matter when choosing a two-bedroom ranch floor plan. Consider how your lifestyle will interact with the space:
Think about your routine. If you work from home, you'll want a dedicated space that's separate from your living areas but still accessible. If you have young children, you might prefer a more open design that lets you keep an eye on them while doing household tasks. These decisions shape how your home will function for years to come.
Modern Twists on Traditional Designs
Today's two-bedroom ranch floor plans often incorporate contemporary elements that make them feel fresh while keeping the classic charm. Many builders now include:
These updates don't change the fundamental appeal of ranch homes but add modern conveniences that make daily life easier. The result is a home that honors tradition while embracing progress. You get the warmth and familiarity of classic ranch design with the comfort and efficiency of modern living.
Choosing the right two-bedroom ranch floor plan is about finding the perfect balance between form and function. It's about creating a space that reflects your lifestyle while providing the comfort and practicality you need. Whether you prefer the simplicity of a classic layout or the innovation of modern features, there's a ranch design out there that suits your needs. Remember, this isn't just about square footage - it's about how well the space works for you and your family. Take time to consider how you live, what you need, and what makes you feel most at home. The right floor plan will make your daily routine easier, your gatherings more enjoyable, and your home truly feel like a sanctuary. After all, your house should make you feel good every single day.