Imagine walking into your dream home, only to realize it's tucked between neighbors on three sides. You've got a narrow lot, but that doesn't mean you have to settle for a cramped, uninspired space. These days, urban living means more people packed into smaller areas, and that's why understanding how to plan for narrow lots is more important than ever.
Narrow lots present unique challenges and opportunities. They're often found in established neighborhoods where land is scarce and expensive. While they might seem limiting at first glance, clever house plans can transform these spaces into functional, beautiful homes. The key lies in smart design decisions that work with the constraints rather than against them. Think of it like solving a puzzle - every inch matters, and each choice impacts the whole picture.
Understanding Narrow Lot Dimensions
Before diving into design options, let's talk about what makes a lot truly narrow. Generally speaking, a narrow lot is one where the width is significantly less than the depth. Some designers consider anything under 30 feet wide as narrow, though the real challenge starts around 20 feet. A lot might be 50 feet deep but only 15 feet across - that's a tight squeeze for most standard house plans.
The problem becomes even more complex when you factor in setbacks, which are required distances from property lines. Many cities require at least 5 feet of setback from the front property line, plus additional space for driveways and utilities. That means your actual building area might be even narrower than the lot dimensions suggest.
Consider this example: A lot that measures 25 feet wide by 80 feet deep might only give you 15 feet of usable space for your main structure after accounting for setbacks and utilities. This leaves little room for error or extra features.
Vertical Design Strategies
When horizontal space is limited, think about going up. Vertical design isn't just about adding another story - it's about maximizing every level of your home. Multi-story layouts work exceptionally well on narrow lots because they spread the footprint horizontally while gaining vertical space.

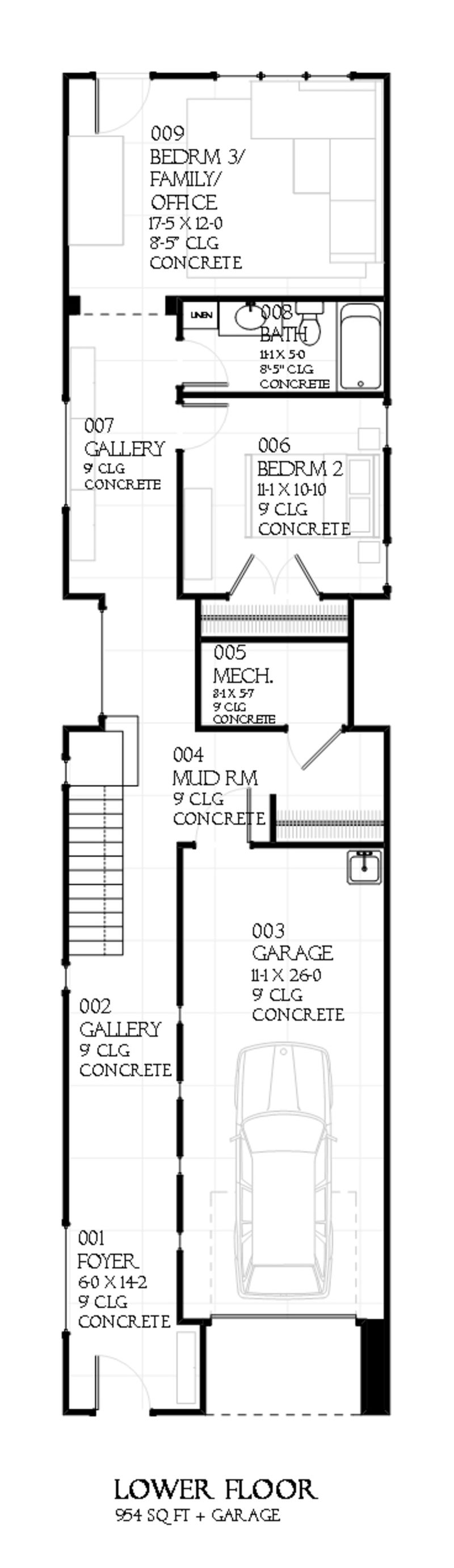
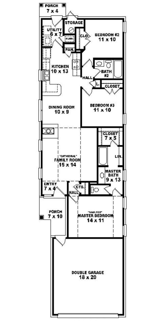
A two-story house on a narrow lot can provide the same square footage as a single-story home but takes up much less ground space. The key is to plan carefully so that stairs and circulation areas don't feel cramped.
Some popular vertical approaches include:
These solutions aren't just about saving space - they're about creating distinct zones within your home that serve different purposes. Think of a basement family room versus a second-floor bedroom - both are valuable spaces that wouldn't exist if you were restricted to one level.
Strategic Layout Planning
The layout of your home matters more than ever when dealing with narrow lots. Every room needs to earn its place, and every doorway must serve a purpose. This means thinking about flow and function before you even sketch the foundation.
One effective approach is to place the most-used rooms along the longest side of the lot. If your lot runs 20 feet wide by 60 feet deep, consider putting the kitchen, dining, and living areas along the 60-foot side. This creates a sense of openness and allows natural light to travel deeper into the home.
Another consideration is the placement of bedrooms. Often, bedrooms are placed on the back side of the house, away from street noise. But on a narrow lot, this means they might be pushed against the back property line, leaving no room for a hallway or bathroom.
Let's look at a real-world example: A family with three children lives on a 22-foot-wide lot. They designed their home with a central hallway running the full length of the house, with bedrooms on either side. The kitchen and living areas are positioned at the front, creating a natural separation between public and private spaces. This arrangement works because it maximizes the usable width of the lot while keeping traffic flow logical.

Creative Storage Solutions
Storage is always a challenge, but it becomes critical on narrow lots where every square foot counts. Creative storage solutions can make a huge difference in how your space feels and functions.
Think beyond traditional closets and cabinets. Consider built-in storage that follows the shape of your walls. A narrow lot often means awkward wall angles, but those can become opportunities for custom storage units that fit perfectly.
Some innovative storage ideas include:
For instance, a narrow lot home might feature a hallway that doubles as a linen closet. The walls could be lined with custom shelving that extends from floor to ceiling, providing storage for everything from seasonal decorations to extra bedding. This approach keeps the space feeling open while solving the storage problem.
The key is to plan storage early in the design process. When you know exactly where things need to go, you can design spaces that accommodate them naturally, rather than trying to stuff them in afterward.
Natural Light and Airflow Considerations
Narrow lots often come with the challenge of limited natural light. With neighbors on multiple sides, windows might be restricted or face directions that don't catch morning sun. But good design can overcome these obstacles.

The first step is to maximize the light that does enter your home. This means placing large windows strategically. If your lot faces north, consider using light wells or skylights to bring in more illumination. For south-facing lots, you might want to incorporate overhangs that block summer heat while allowing winter sun to stream in.
Airflow also becomes crucial on narrow lots. Cross ventilation can make a small space feel much larger and more comfortable. This means positioning windows opposite each other whenever possible, creating a path for air to flow through the house.
In practice, this might mean installing windows on both the front and back of your home, or using sliding doors that open to create a continuous flow. Some homeowners even install fans that pull air from one end of the house to the other, creating a constant breeze.
A well-designed narrow lot home might feature a central courtyard or atrium that brings both light and air into the heart of the house. This approach not only solves the lighting issue but also creates a focal point that makes the space feel bigger.
Practical Tips for Narrow Lot Construction
Building on a narrow lot requires careful attention to several practical considerations. First, you'll likely need special permits or variances since the design might not meet standard zoning requirements. Local building codes often have specific rules about setbacks, height restrictions, and parking requirements that can be challenging to meet on tight spaces.
Budget planning becomes particularly important. Narrow lot construction can cost more per square foot due to the complexity of design and the need for specialized contractors. You might find that materials and labor costs increase because of the need for precise measurements and custom elements.
Here are some essential tips for navigating these challenges:

Many successful narrow lot projects begin with a thorough analysis of existing conditions. What's already there? Are there trees that need to be preserved? Is there a slope that affects foundation design? Answering these questions early helps avoid costly changes later in the process.
Another common challenge is ensuring adequate parking. On narrow lots, driveway space is often minimal, which means you might need to think creatively about parking solutions. Perhaps a carport that doubles as a covered entryway, or a shared parking arrangement with neighbors. Sometimes, the solution is simply to embrace the fact that you'll have fewer cars and design your home around that reality.
Design Trends for Modern Narrow Lots
Today's narrow lot homes reflect evolving lifestyles and design preferences. People are looking for homes that offer both privacy and connection to the outside world, especially in dense urban environments.
Current trends include:
The concept of 'home as sanctuary' is particularly relevant for narrow lot residents. With neighbors so close, many homeowners want their space to feel like a retreat. This might mean incorporating outdoor areas that feel secluded, even in a crowded neighborhood.
Modern narrow lot designs also tend to favor clean lines and minimalist aesthetics. These styles work well because they don't overwhelm the limited space. Instead, they create a sense of calm and order that makes small spaces feel more manageable.
Another growing trend is the integration of technology into everyday design elements. Smart lighting, automated blinds, and integrated sound systems can all contribute to a modern narrow lot home that feels both functional and forward-thinking.

Common Mistakes to Avoid
Even experienced homeowners sometimes fall into traps when designing for narrow lots. Understanding these pitfalls ahead of time can save time, money, and frustration.
One major mistake is trying to build a standard house plan on a narrow lot. Standard designs assume certain setbacks and proportions that simply don't work when space is limited. What looks great on paper might be completely impractical in reality.
Another frequent error is underestimating the importance of natural light. Many people focus on the aesthetic appeal of their design without considering how the space will feel when occupied. A narrow home that's dark and cramped will quickly lose its appeal.
Storage planning is also a common oversight. It's easy to imagine a perfect space and forget about the real-world need for organization. Without proper planning, narrow lot homes can quickly become cluttered and chaotic.
Finally, many homeowners ignore the practical aspects of daily life. Will the kitchen layout work for cooking with family members present? Is there enough space for a bathroom that won't feel cramped? These questions matter more on narrow lots because there's less room for error.
The best approach is to involve professionals early in the process. An architect or designer familiar with narrow lot challenges can help you avoid these common missteps while still achieving your vision.
Narrow lots may seem restrictive, but they offer unique opportunities for thoughtful, efficient design. When approached with creativity and careful planning, these challenging spaces can become some of the most satisfying homes to live in. The key is to embrace the constraints rather than fight them.
Whether you're designing a new home or renovating an existing one, remember that narrow lots reward those who think beyond the obvious. Every room should serve a purpose, every window should maximize light, and every design decision should consider how the space will feel when lived in.
The most successful narrow lot homes are those that balance form and function, beauty and practicality. They're spaces that feel expansive despite their size, and they honor both the architectural constraints and the lifestyle needs of their inhabitants. With the right approach, your narrow lot can become your greatest asset rather than your biggest limitation.