The ranch house has been a cornerstone of American residential architecture since the mid-1900s. When you add a basement to this iconic style, you get something truly special. These homes combine the open, sprawling feel of traditional ranch designs with the extra living space and functionality that basements provide. Whether you're planning a new build or renovating an existing home, understanding how these floor plans work can make all the difference.
Ranch houses have always had a special place in American hearts. Their low-profile design, wide spans, and connection to the outdoors make them feel welcoming and comfortable. But when you throw a basement into the mix, you're creating something that's both practical and charming. The combination offers families a unique opportunity to maximize their living space while maintaining that classic ranch aesthetic. Think about it – you've got your main level open and airy, then you drop down into a basement that can serve multiple purposes. It's like having two homes in one.
Historical Roots of Ranch Houses

Ranch houses didn't just appear out of nowhere. They evolved during the post-war boom of the 1940s and 1950s. Architects like Cliff May and Robert Stern were instrumental in developing the style that became so popular. These homes were designed to reflect the American ideal of family life – open spaces, easy living, and connection to the land. The ranch style was particularly suited to suburban developments where large lots were common. The idea was to create homes that felt spacious without being overwhelming.
The original ranch houses were typically single-story with a long, low profile. They often featured large windows, sliding glass doors, and a strong connection to outdoor areas. The concept was simple: bring the outside in, and keep everything flowing together. When basements were added later, they provided an extension of this philosophy – more space for family activities, entertainment, and storage. This evolution shows how American housing adapted to changing needs over time.
Basement Integration in Ranch Design

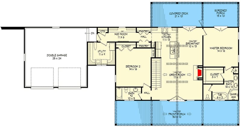
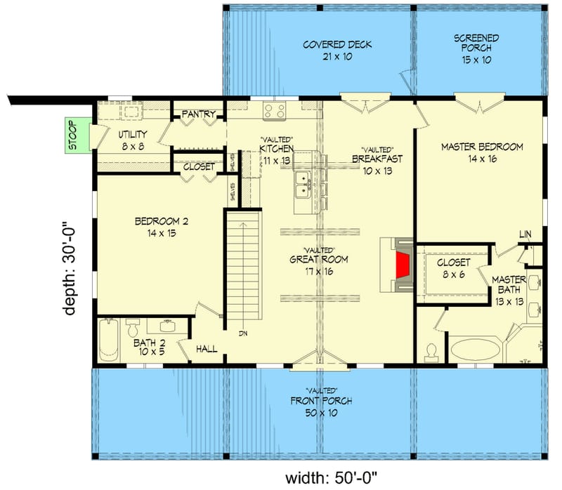
Adding a basement to a ranch house changes everything. Instead of just one level of living space, you now have three distinct zones: main level, basement, and potentially attic or upper level if applicable. This creates a lot of flexibility in how you organize your home.
The key to successful integration is maintaining the ranch's horizontal flow. Basements in ranch homes often feature a walkout design, which means the basement walls extend to ground level. This gives the basement a more open feeling and allows for better natural light and ventilation. You'll often see large windows in basement walls, and sometimes even small patios or decks that extend from the lower level.
What makes this work so well is that it respects the ranch's fundamental design principles. The basement doesn't feel like an afterthought – it's part of the overall architectural plan. The basement might house a family room, guest bedrooms, or even a home office. The kitchen and dining area stay on the main level, keeping the heart of the home open and accessible.

Key Layout Features
Let's talk about what makes these floor plans special:
Practical Benefits of Basement Ranch Homes

There are many advantages to combining these two architectural styles. Let's explore some of the most important benefits:
Design Considerations and Challenges
While the combination is appealing, there are some challenges to consider:

Modern Adaptations and Trends
Today's ranch house basement designs are evolving to meet contemporary needs:
Ranch house floor plans with basements represent a perfect marriage of classic design and modern functionality. They honor the timeless appeal of the ranch style while providing practical solutions for today's families. Whether you're looking to build a new home or renovate an existing one, understanding how these elements work together can help you create a space that feels both comfortable and forward-thinking. The key is to embrace the horizontal flow that defines ranch architecture while thoughtfully incorporating the additional space that basements provide. When done right, the result is a home that's not just functional, but truly special. The beauty of this combination lies in its ability to adapt to different lifestyles and needs while maintaining that classic charm that makes ranch homes so beloved. It's a design approach that continues to evolve, proving that great architecture never really goes out of style.