Picture this: You've found the perfect plot of land, you've got your budget lined up, and you're ready to build something truly special. What if I told you that a 2000 square foot barndominium could be exactly what you're looking for? It's not just about size—it's about maximizing space, comfort, and style in a way that feels both modern and timeless.
When you think about building a home, there's something incredibly appealing about the idea of a barndominium. These unique structures combine the rustic charm of barns with the comfort of modern living. But when you're working with a specific size like 2000 square feet, planning becomes even more critical. This isn't just about making a house—it's about crafting a lifestyle. Whether you're a first-time builder or someone looking to upgrade your current setup, understanding how to maximize every square foot matters more than you might realize.
Understanding the Basics of Barndominiums
Before we dive into floor plans, let's talk about what makes a barndominium different from a traditional home. Think of it as a hybrid between a barn and a house. The main feature is usually an open-concept design, often featuring high ceilings and large windows. Many barndominiums are built using steel frame construction, which offers durability and flexibility in design.

The beauty of a 2000 square foot barndominium lies in its versatility. It's large enough to accommodate multiple bedrooms, a kitchen, living areas, and possibly a workshop or garage. Yet, it's not so massive that it becomes unwieldy to manage. For many people, this size strikes the perfect balance between functionality and efficiency. It's big enough to feel spacious but small enough to maintain manageable heating costs and overall upkeep.
Key Layout Considerations
Planning a 2000 square foot barndominium requires careful thought about how you want to use the space. Here are some important factors to keep in mind:
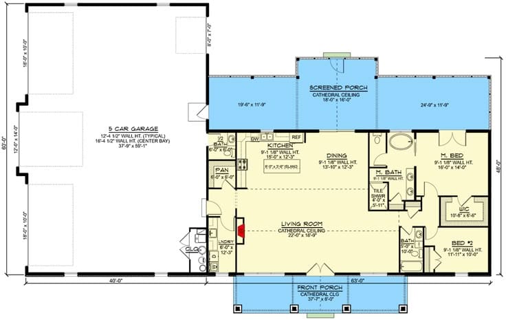
Popular 2000 Square Foot Floor Plan Designs

There are several common layouts that work well for a 2000 square foot barndominium. Let's explore a few options:
Option 1: The Classic Open Design This approach combines the kitchen, dining, and living areas into one large space. Bedrooms and bathrooms are typically located at the back of the home. This works great for families who enjoy entertaining and want their living spaces to feel connected.
Option 2: The Master Suite Layout In this design, the master bedroom suite is often positioned toward the front of the home, while secondary bedrooms and shared bathrooms are at the back. This arrangement provides privacy for the primary sleeping area.
Option 3: The Multi-Purpose Space Plan Some barndominiums incorporate flexible areas that can serve multiple functions. For example, a large room might double as a family room during the day and a guest bedroom at night. This type of design works particularly well in smaller spaces where every square foot counts.

Essential Features for Modern Living
A modern barndominium goes beyond just having a good floor plan. Here are some must-have features that enhance daily life:
Cost Considerations and Budget Planning
Building a 2000 square foot barndominium involves several financial decisions. Understanding the costs upfront helps ensure you stay within your budget. Here's what to expect:

It's also worth noting that because barndominiums are often custom-built, prices can vary dramatically based on materials, finishes, and complexity. On average, expect to pay between $150 and $300 per square foot for a finished barndominium, though this can go higher or lower depending on various factors.
Real-Life Examples and Inspiration
Sometimes seeing actual designs helps clarify what's possible. Here are a few real-world examples of 2000 square foot barndominiums that showcase different approaches:
Each of these examples shows how the same square footage can be transformed into something entirely different based on lifestyle needs and personal preferences.

Making the Right Choice for Your Situation
Choosing the right floor plan for your 2000 square foot barndominium depends on many factors. Ask yourself:
Consider also the climate where you'll be building. If you live in a hot climate, you might prioritize outdoor living spaces and shading. In colder regions, interior warmth and energy efficiency become more important.
Don't forget about local zoning laws and building restrictions. Some areas may limit how you can use certain spaces or require specific setbacks. It's always wise to consult with a local architect or builder who understands the regulations in your area.
Remember, a 2000 square foot barndominium isn't just a house—it's a canvas for your life. Every wall, every window, every room tells a story about how you want to live. Take your time with the planning process, and don't rush into decisions that might leave you regretting later.
A 2000 square foot barndominium offers incredible potential for creating a comfortable, functional, and stylish home. Whether you're drawn to the open concept, the rustic charm, or the practical benefits of modern construction, this size gives you the perfect balance of space and manageability. The key is thinking through each element carefully—from layout and lighting to storage and budget. With thoughtful planning, your barndominium can become more than just a place to live; it can be a reflection of your values, lifestyle, and dreams. So take your time, do your research, and trust the process. Building your dream home is a journey worth taking.