Picture this: a sprawling barn converted into a modern home, complete with a separate living space for family members. This isn't just a dream anymore - it's becoming a reality for families across America. Barndominiums with in law suites offer the perfect solution for those wanting to keep family close while maintaining privacy and independence.
The concept of barndominiums has captured the imagination of homeowners nationwide. These innovative structures combine the rustic charm of barns with contemporary living spaces. When you add an in law suite to the mix, you're creating something truly special - a home that can accommodate multiple generations under one roof. But what exactly does this look like in practice? How do you plan for such a unique space? Let's explore the ins and outs of creating barndominium plans with in law suites.
What Are Barndominiums with In Law Suites?
Barndominiums with in law suites are large, open-concept homes built using barn-style construction methods. The 'in law suite' refers to a separate living area within the main structure that typically includes its own kitchen, bathroom, and sleeping quarters. Think of it as a private apartment tucked inside your main house.
These designs are particularly popular because they offer:
The appeal is simple: you get the benefits of a large, versatile space with the added advantage of accommodating different family needs.
Benefits of Multi-Generational Living Spaces
Multi-generational living has seen a resurgence in recent years. There are many compelling reasons why families choose this approach.
Financial advantages stand out prominently. When adult children live in an in law suite, they often contribute to household expenses. This can significantly reduce costs for everyone involved. Plus, it provides a way for parents to help their children with housing costs during times of financial difficulty.
The emotional benefits are equally powerful. Grandparents can stay close to their grandchildren, providing childcare support when needed. Parents can maintain relationships with aging relatives without the challenges of separate housing arrangements.
Practical considerations also favor this setup. Shared utilities and maintenance costs become more manageable. You're essentially getting more value from your investment in property.
Consider a scenario where a family decides to build a barndominium with an in law suite. The main living area houses the primary family, while the in law suite accommodates aging parents. This arrangement allows everyone to live independently while remaining part of the same household. It's a win-win situation that addresses modern family dynamics.

Key Design Considerations
Planning a barndominium with an in law suite requires careful thought about several important elements.
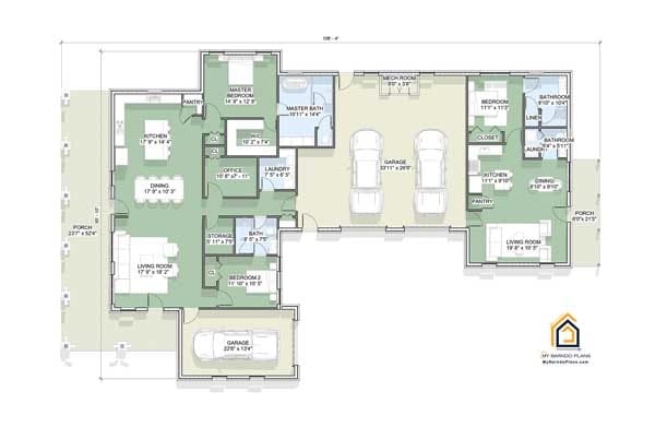
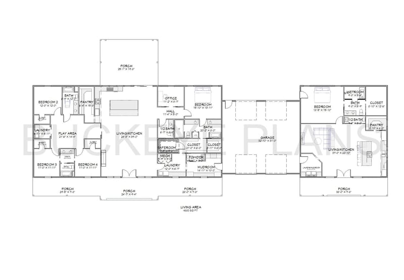
Space Allocation: Determine how much square footage each area will require. The main living area might be 1,500-2,000 square feet, while the in law suite could range from 600-1,000 square feet. Consider the size of your family and future needs.
Separate Entrances: Having distinct entrances is crucial for privacy. An in law suite should ideally have its own front door or entrance. This creates a sense of independence while maintaining connection to the main house.
Shared Walls: The relationship between the main house and in law suite matters. Shared walls can provide structural support and save on materials. However, consider soundproofing and insulation requirements.
Flow and Functionality: The transition between areas should feel natural. Think about traffic patterns, storage needs, and how people will move between spaces. A well-designed barndominium ensures that both areas function efficiently.
Lighting and Views: Natural light makes spaces feel larger and more welcoming. Plan windows strategically to maximize light flow between areas while respecting privacy needs.
Layout Planning Essentials
Effective layout planning makes all the difference in creating a successful barndominium with in law suite. Here are some essential elements to consider:
Zoning Strategies: Divide your space logically. The main living area might include the kitchen, dining, and family rooms. The in law suite could feature bedrooms, a bathroom, and a small kitchenette.
Vertical Design: Consider how you'll use vertical space. Higher ceilings in barn-style buildings offer flexibility for additional levels or creative storage solutions. Loft spaces above the in law suite could serve as bonus rooms.
Storage Solutions: Both areas need adequate storage. Built-in cabinets, closets, and pantry spaces should be planned early. Consider how items will be stored and accessed in each space.

Utility Placement: Where will water, electrical, and HVAC systems go? Plan for separate utility meters if possible. This helps with billing and energy management.
Accessibility Features: Modern design should include accessibility features for all family members. Ramps, wider doorways, and grab bars can make spaces usable for people of all ages and abilities.
Structural and Building Considerations
Building a barndominium with an in law suite involves unique structural challenges and opportunities.
Foundation Requirements: Barn-style buildings often use concrete slabs or raised foundations. The in law suite must integrate seamlessly with the main structure's foundation system. Proper drainage and waterproofing are essential.
Roof Design: The roof structure plays a significant role in both aesthetics and functionality. A gabled roof can provide additional headroom in the in law suite area. Consider how the roof design affects lighting and ventilation.
Insulation and Climate Control: Different areas may have varying climate needs. The main house might require different heating and cooling strategies than the in law suite. Proper insulation prevents temperature differences and reduces energy costs.
Material Selection: Choose materials that work well together. Steel framing offers durability and fire resistance. Wood elements can provide warmth and character. Consider local building codes and material availability.
Permitting Process: Check local building codes carefully. Some areas have specific requirements for in law suites or secondary dwellings. Understanding permit requirements upfront saves time and money later.
Cost Analysis and Budgeting
Budgeting for a barndominium with in law suite requires understanding various cost factors.
Construction Costs: Expect to pay $100-$200 per square foot for custom construction. The in law suite adds complexity and cost compared to a standard single-family home. Factor in specialized features like separate utilities and unique layouts.

Land Considerations: Land costs vary dramatically by location. Rural areas might offer affordable land, while urban locations command higher prices. Consider whether you're buying existing land or building on new property.
Financing Options: Traditional mortgages work for primary residences. However, some lenders offer specialized financing for secondary dwellings. Research loan options that best suit your situation.
Long-Term Value: These homes often appreciate over time due to their unique features. The ability to rent the in law suite provides ongoing income potential. Consider how this affects your overall investment strategy.
Additional Expenses: Don't forget about landscaping, utility connections, and potentially higher insurance costs. These costs can add 10-15% to your total project budget.
Legal and Regulatory Factors
Before breaking ground, understanding the legal landscape is crucial.
Zoning Laws: Many areas restrict secondary dwellings. Check local zoning ordinances carefully. Some communities allow in law suites with permits, while others prohibit them entirely.
Building Codes: Compliance with building codes affects everything from foundation depth to electrical requirements. Codes vary significantly between jurisdictions.
Homeowners Association Rules: If you're part of an HOA, review their rules about secondary dwellings. Some associations welcome the added family living space, while others have restrictions.
Tax Implications: Consider how the in law suite affects property taxes and potential rental income. Some areas offer tax incentives for multi-generational housing.
Utility Connections: Verify how utilities will connect to the in law suite. Separate meters might be required, adding to initial costs but providing better management options.
Real-World Examples and Inspiration

Looking at actual projects can provide valuable insights. Here are some examples that showcase different approaches:
Rustic Modern: A 2,500 square foot barndominium with a 900 square foot in law suite. Features include exposed steel beams, large windows, and a shared outdoor space. The in law suite has its own entrance and kitchenette.
Contemporary Design: A 3,000 square foot structure with a 1,200 square foot in law suite. This design emphasizes clean lines and modern finishes. The two areas share a common wall but maintain distinct identities.
Traditional Layout: A classic barn conversion with a 700 square foot in law suite on the ground floor. The main house occupies the upper level, creating a natural separation between spaces.
Each example shows how different approaches can meet the same functional needs while reflecting personal style preferences. The key is finding a balance between practicality and aesthetic appeal.
Maintenance and Longevity Tips
Proper maintenance ensures your barndominium with in law suite remains functional and beautiful for decades.
Regular Inspections: Schedule annual inspections of the structure, especially the roof and foundation. Early detection of problems prevents costly repairs.
Seasonal Maintenance: Address seasonal concerns like weatherproofing, gutter cleaning, and HVAC servicing. These tasks prevent bigger issues.
Privacy and Security: Install quality locks on all doors, including the in law suite entrance. Consider security systems that monitor both areas.
Interior Care: Maintain flooring, paint, and fixtures regularly. The in law suite deserves the same attention as the main house.
Utility Management: Monitor utility usage in both areas. Separate meters help track consumption and identify potential issues.

Think of your barndominium as a long-term investment. Proper care today means fewer headaches tomorrow. The relationship between the main house and in law suite should remain strong for years to come.
Future-Proofing Your Design
Creating a design that adapts to changing family needs is essential.
Flexible Spaces: Design rooms that can serve multiple purposes. A living room might double as a guest bedroom when needed.
Technology Integration: Plan for smart home features that benefit both areas. Voice control systems, automated lighting, and security monitoring enhance convenience.
Adaptability for Aging: Consider how the space might change as family members age. Widening doorways, adding ramps, and incorporating safety features make the home usable for decades.
Energy Efficiency: Modern heating and cooling systems can be designed to serve both areas effectively. Solar panels and energy-efficient appliances reduce long-term costs.
Scalability: Design with growth in mind. If you anticipate expanding the family or needing more space, your layout should accommodate changes gracefully.
Future-proofing doesn't mean over-engineering. It means thoughtful planning that considers life's unpredictability while maintaining practicality.
Barndominiums with in law suites represent more than just architectural innovation - they embody the evolving needs of modern families. These spaces offer a unique blend of privacy, independence, and family connection that traditional housing often cannot match. Whether you're planning a new build or renovating an existing structure, the key lies in thoughtful design that balances functionality with comfort.
The investment in such a space pays dividends beyond mere square footage. You're creating a legacy that can support multiple generations while providing a comfortable, stylish home for everyone involved. The journey from concept to completion requires careful planning, but the result is a home that truly works for your family's lifestyle.
As families continue to evolve and adapt to new circumstances, barndominiums with in law suites offer a flexible, enduring solution. They prove that sometimes the most innovative approaches to living come from combining old and new in unexpected ways. The possibilities are as endless as your imagination, and the rewards are deeply personal.