Imagine waking up each morning in a home where every room feels just right, where family life flows naturally between spaces, and where every corner tells a story of comfort and connection. That dream can become reality with the right 6 bedroom single story house plan. These homes offer something special – they bring everyone together under one roof, creating a seamless living experience that's both practical and heartwarming.
When it comes to designing a home that truly works for your family, few layouts capture the essence of modern living quite like a 6 bedroom single story house plan. These homes aren't just about having plenty of space – they're about creating an environment where life happens naturally. Whether you're planning for growing children, aging parents, or simply want the freedom of open floor plans, a single story design offers remarkable advantages. From the way light filters through windows to how families move through their daily routines, every element of a well-designed 6 bedroom single story home matters. Let's explore what makes these designs so appealing and how you can craft the perfect blueprint for your future.
The Appeal of Single Story Living

There's something deeply satisfying about living in a single-level home. No more climbing stairs to reach your bedroom or rushing up to check on sleeping children. Everything is within easy reach, which means less time spent navigating hallways and more time enjoying your space. For families with young kids or elderly relatives, accessibility becomes paramount. A 6 bedroom single story house eliminates those barriers entirely. Think about it – you can have a dedicated space for each family member while maintaining an open, connected feeling throughout the home. The layout allows for easy supervision of children, convenient access for elderly family members, and the flexibility to adapt rooms for changing needs over time. It's not just about convenience; it's about creating a lifestyle that supports your family's unique rhythm.
Key Layout Considerations
Designing a successful 6 bedroom single story house requires careful attention to several critical factors:

Consider how your family actually uses space. Do you entertain often? Do you need quiet workspaces? Are you planning to add guests regularly? These questions shape the fundamental decisions in your house plan. For instance, if you love hosting dinner parties, you might prioritize a large kitchen with island seating that connects directly to your living area. If you're a parent, perhaps a central family room with easy access to bedrooms makes sense. The beauty of a 6 bedroom single story plan lies in its ability to accommodate these diverse needs while keeping everything accessible.
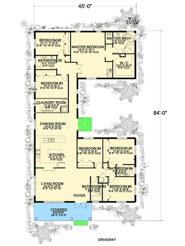
Popular Room Arrangements
While every family's needs are different, certain room arrangements tend to work particularly well in 6 bedroom single story homes. Here are some proven configurations:

The master suite arrangement is popular because it provides privacy and luxury for the primary bedroom occupants while still offering space for other family members. In many cases, the master suite includes a walk-in closet, private bathroom, and perhaps a sitting area. Meanwhile, the remaining bedrooms can vary from standard sizes to larger spaces that might double as home offices or hobby rooms. Some families prefer to have all bedrooms on one side of the home, creating a quiet zone away from high-traffic areas.
Space Optimization Strategies
Maximizing every square foot in a 6 bedroom single story home requires smart thinking about space usage. Here are some strategies that make a big difference:

One particularly clever approach involves using a study or den that doubles as a guest room. This type of flexible space can be transformed with furniture arrangements or temporary dividers. Another common strategy is incorporating walk-in closets that also serve as storage areas for seasonal items. The key is to think beyond traditional room functions and consider how each space might serve multiple purposes over time. When you're planning your layout, ask yourself how each room could potentially be used differently as your family grows or changes.
Practical Benefits for Families
A 6 bedroom single story house isn't just about having more rooms – it's about creating a better quality of life for your family. Consider these practical advantages:

For families with elderly members, the lack of stairs can be a game-changer. Imagine helping a parent with mobility issues navigate their home without worrying about steps or narrow hallways. The same applies to families with small children – a single level means less risk of falls and more space for active play. Many parents find that their children feel more secure in a single-story home, knowing they can quickly reach their parents or siblings when needed. The energy savings also add up over time, especially when you consider that heating and cooling one level is typically much more efficient than managing multiple floors.
Design Tips for Success
Creating the perfect 6 bedroom single story house plan requires attention to detail and thoughtful planning. Here are essential tips to guide your design process:
Think about the flow of your day. Where do you spend most of your time? How do you move through your home? The answer to these questions will inform everything from the kitchen layout to the placement of bedrooms. For example, if you're someone who likes to cook while watching your kids play, positioning your kitchen close to your family room makes perfect sense. Similarly, if you work from home, having a dedicated office space that's easily accessible but quiet will make a huge difference in productivity. The goal is to create a home that feels intuitive and comfortable, where every room serves a purpose and contributes to your overall well-being.
A 6 bedroom single story house plan represents more than just architectural design – it embodies the values of family, accessibility, and practicality. These homes provide the perfect balance between spaciousness and manageability, offering families a place where they can truly thrive. Whether you're looking for a place to raise children, care for aging parents, or simply enjoy the comfort of a well-designed space, a single story layout delivers on all fronts. The key is to approach the design process thoughtfully, considering not just current needs but future possibilities. By focusing on flow, functionality, and family-centered design principles, you can create a home that stands the test of time. Every room, every doorway, every space has been carefully considered to support the life you want to live. That's the true magic of a well-crafted 6 bedroom single story house plan – it becomes more than a building, it becomes your family's sanctuary.