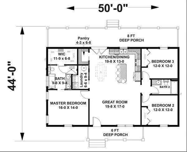
Picture this: you're standing in a cozy, well-designed home that feels spacious despite its modest size. This isn't just wishful thinking – it's entirely achievable with thoughtful house plans for 1500 square feet. Whether you're a first-time homebuilder or looking to renovate, understanding how to maximize every inch of this popular square footage range can transform your living experience.
When it comes to residential construction, few sizes offer the perfect balance between manageable costs and comfortable living like 1500 square feet. This size strikes a sweet spot that appeals to families, young professionals, and empty nesters alike. It's large enough to accommodate multiple rooms and functions while remaining affordable to build and maintain. But here's the thing – it's easy to overlook how crucial smart planning is when working within these boundaries. You might think you have plenty of room, but without careful consideration, those 1500 square feet can feel cramped or underutilized. That's where good house plans come in, turning what could be a limitation into a design opportunity.
Why Choose 1500 Square Feet?
There's something magical about 1500 square feet. It's not too small to feel confining, nor too large to feel overwhelming. Think about it – most people don't need a mansion to live comfortably. This size provides exactly what you need for a functional family home or a peaceful retreat.
Consider the average American family today. Many are downsizing from larger homes or choosing smaller spaces for financial reasons. The 1500 square foot range accommodates:

This makes it incredibly versatile for different lifestyles and budgets. Plus, it's much easier to heat, cool, and maintain than larger homes. You're essentially getting the best of both worlds: comfort without the burden of excessive upkeep.
Key Layout Considerations
The layout of your 1500 square foot home can make or break your daily experience. Think about how you move through your space. Do you prefer open areas or defined rooms? Do you entertain often?
Here are some essential layout principles:
One common mistake is trying to fit too many rooms into a small space. Instead, focus on creating fewer, more impactful spaces. Sometimes less truly is more when it comes to home design.

Room Distribution Strategies
How you distribute your 1500 square feet can completely change your home's usability. Let's talk about some tried-and-true approaches:
A popular configuration might include a main bedroom on one side, two smaller bedrooms on the other, with shared bathroom and kitchen in the center. This creates a logical flow and makes the most of your available space.
Smart Storage Solutions
Storage is often the biggest challenge in 1500 square foot homes. But creative solutions can turn this into a strength rather than a weakness.

Remember, good storage doesn't just hide things – it organizes your life. Think about where you spend your time daily. Where do you need quick access to items? What do you want to keep visible versus hidden? These answers will guide your storage decisions.
Cost-Effective Design Tips
Building or renovating a 1500 square foot home doesn't have to break the bank. Here are ways to save money without sacrificing quality:
One budget-friendly approach is to start with a basic layout and add features gradually. For instance, build the core structure first, then consider adding a sunroom or extra bedroom later. This allows you to spread out your investment while still achieving your dream home.
Design Trends for Modern Homes

Current trends in 1500 square foot homes emphasize functionality and connection. People want spaces that work for their lives, not just look pretty.
These trends aren't just aesthetic choices – they enhance how you live. A home with good lighting and natural materials feels more inviting and healthier. When you're spending time in your space, it should feel good, not just look good.
Practical Planning Steps
Creating your ideal 1500 square foot home requires some planning, but it's manageable with the right approach:
1. Define your priorities – what matters most to you in your daily routine? 2. Sketch rough layouts on paper or simple software 3. Research local building codes and restrictions 4. Get professional advice from architects or designers 5. Create a realistic budget including unexpected costs

Don't rush this process. Take time to visualize how you'll actually use each space. Consider hosting friends, cooking meals, working from home, or simply relaxing. These real-life scenarios will help shape your final design.
Common Mistakes to Avoid
Even experienced homeowners sometimes fall into traps when designing smaller homes. Here are some pitfalls to watch for:
One of the most frequent errors is trying to do too much in too little space. Remember that good design isn't about filling every corner – it's about creating spaces that feel intentional and purposeful.
Final Thoughts on Your 1500 Square Foot Journey
A 1500 square foot home isn't just a size – it's a lifestyle choice. It represents the idea that you don't need a lot of space to live well. With thoughtful planning and smart design choices, you can create a space that feels spacious, functional, and uniquely yours. This size offers the perfect canvas for creativity while remaining practical for everyday living. Whether you're building new or remodeling existing space, remember that the goal isn't just square footage – it's how well your home supports your life. Every decision you make about layout, storage, and flow contributes to the quality of your daily experience. Your 1500 square feet can be anything you want it to be – cozy, functional, beautiful, and perfectly suited to your way of life.
Designing a 1500 square foot home is both an art and a science. It requires balancing practical needs with aesthetic desires, maximizing limited space while maintaining comfort and style. The key lies in understanding how to make every square foot count. From choosing the right layout to incorporating smart storage solutions, each element plays a role in creating a home that truly works for you. Remember, this size isn't a constraint – it's an opportunity to focus on what really matters in your living space. Whether you're a first-time builder or seasoned homeowner, these principles provide a foundation for creating a home that's both beautiful and functional. The journey to your perfect 1500 square foot haven starts with thoughtful planning and ends with a space that enhances your daily life.