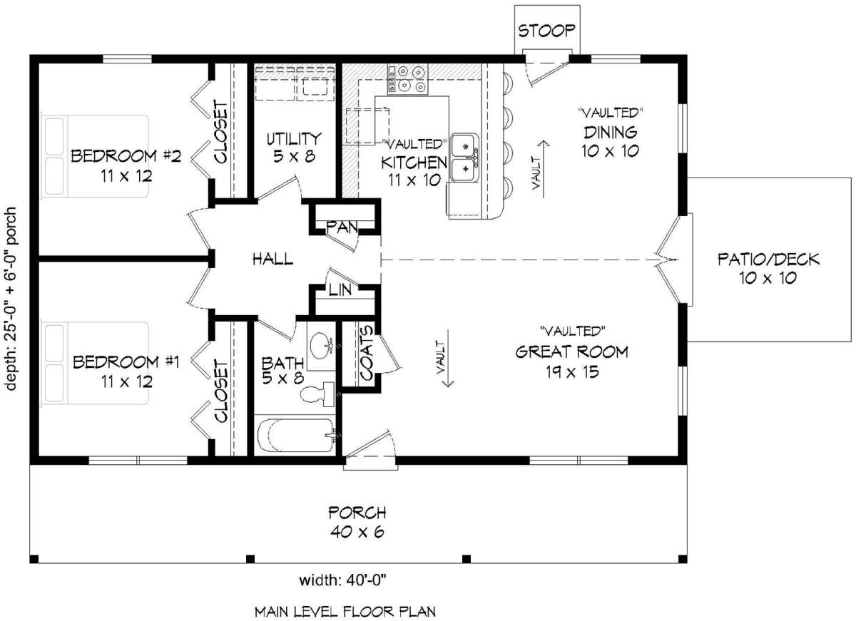
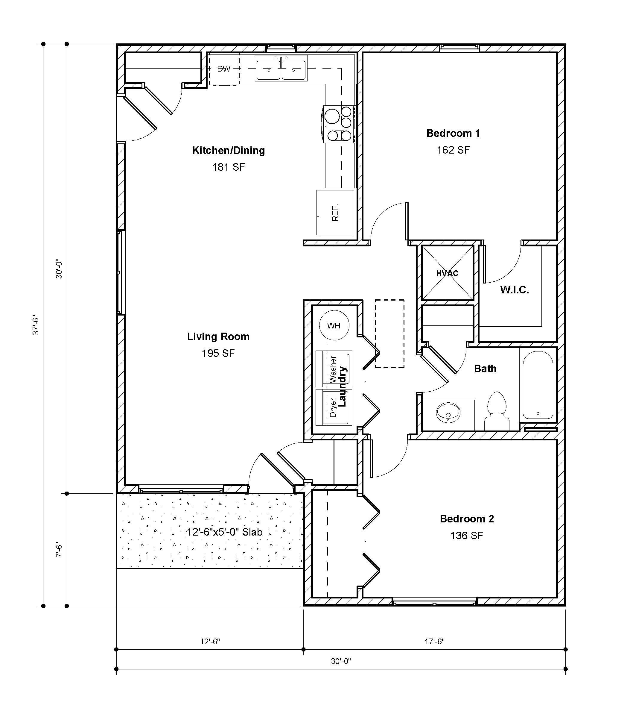
Every home tells a story, and the layout of your living space plays a crucial role in how that story unfolds. When it comes to creating a comfortable, functional home, few configurations are as popular and practical as the two bedroom one bath floor plan. Whether you're planning a new build, remodeling an existing space, or simply trying to understand what makes a great home layout, this guide will walk you through everything you need to know about maximizing your two-bedroom, one-bath floor plan.
Imagine walking into your home and feeling instantly at ease. That feeling often starts with how the space flows around you. A well-designed two bedroom one bath floor plan can make all the difference between a house that feels cramped and one that feels like a true sanctuary. These layouts are particularly popular because they offer a good balance between privacy and shared spaces, making them ideal for couples, families, or even roommates. But what really makes a floor plan work? It's not just about square footage – it's about how you use every inch of your space. Let's dive into what makes these layouts special and how you can design one that truly fits your lifestyle.
Why Two Bedroom One Bath Plans Are So Popular
There's a reason why two bedroom one bath floor plans dominate the housing market. They strike a perfect balance between affordability and functionality. For starters, they're typically smaller than larger homes, which means lower costs for construction, maintenance, and utilities. But size isn't the only factor. These layouts also offer flexibility in how people live together. The two bedrooms provide privacy for adults or separate sleeping areas for children, while the single bathroom creates a shared space that encourages interaction.
Think about it – when you're planning a home, you want to consider how many people will live there, how they'll use the space, and what their daily routines look like. A two bedroom one bath plan works well for young couples, small families, or even older adults who prefer a simpler setup. Plus, they're incredibly versatile. You can customize them for different lifestyles, from minimalist living to family-oriented designs.
The appeal also lies in the fact that these homes are generally easier to maintain. With fewer bathrooms and appliances, you're spending less time on upkeep and more time enjoying your space. This makes them especially attractive to first-time homeowners, retirees, or anyone looking for a low-maintenance lifestyle.
Key Design Principles for Effective Layouts
Creating a successful two bedroom one bath floor plan requires understanding some fundamental principles. First, think about traffic flow. Where do people move through your home? Do you have a main entrance, or are there multiple ways into the space? A good layout ensures that movement between rooms is smooth and intuitive. You don't want people bumping into each other or having to navigate around furniture to get from one area to another.

Another important aspect is the placement of the bathroom. In most cases, it's best positioned near the bedrooms to minimize noise and ensure privacy. However, if you're designing a home for someone who needs easy access to the bathroom, placing it closer to the entryway might be more practical. Consider also how much natural light you can bring in – windows in the bathroom or common areas can make a big difference in how bright and welcoming your home feels.
Let's talk about storage. A well-thought-out floor plan includes plenty of closet space and storage solutions. In a two bedroom one bath layout, you want to maximize every inch. Built-in shelves, under-stair storage, or even a small pantry can make a huge difference in keeping your space organized and clutter-free. Think about where you'll store seasonal items, clothing, and everyday essentials. The right layout helps you keep everything in its place without feeling overwhelmed.
Space Optimization Strategies
One of the biggest challenges in two bedroom one bath floor plans is making the most of limited space. Here are some strategies that can transform a basic layout into something truly efficient:
These ideas aren't just about saving space – they're about creating a home that adapts to your changing needs over time. As your life evolves, whether it's adding a child or caring for aging parents, these flexible design elements can help your space grow with you.
Popular Room Arrangements
While there's no one-size-fits-all approach to floor plans, certain arrangements tend to work better than others. Let's explore some of the most common and effective layouts:
Master bedroom with ensuite: This arrangement places the primary bedroom with its own private bathroom, leaving the second bedroom and shared bathroom for guests or secondary users. It's great for couples or those who need extra privacy.

Bedrooms side-by-side: This classic layout puts both bedrooms on the same side of the home, with the bathroom in the middle. It's ideal for families with children or when you want easy access to the bathroom from either bedroom.
Living area centered: Some designs put the main living area in the center of the home, with bedrooms and bathroom branching off from it. This creates a natural flow and makes the heart of the home easily accessible to everyone.
Separate wing design: In larger homes, you might see a separate wing for the master suite with its own bathroom, while the rest of the house includes the second bedroom and shared bathroom. This is perfect for homes with multiple generations or when privacy is a top priority.
Each arrangement has its pros and cons. What matters most is finding the one that aligns with your lifestyle and the way you want to use your space.
Practical Considerations for Daily Living
Beyond aesthetics, a good floor plan must support your daily routine. How does your family move through the house? What times do you need quiet spaces? Do you entertain often? These questions help determine how to arrange your rooms for maximum efficiency.
Consider the kitchen's location carefully. Is it close enough to the dining area for casual meals, but far enough to avoid cooking chaos? A kitchen that's too central can mean constant interruptions during meal prep, while one that's too isolated might make it hard to supervise kids or guests.
The bathroom placement is equally critical. If it's located in a high-traffic area, you may experience more noise and interruptions. On the other hand, placing it away from the main living areas gives more privacy, but can create longer walks for morning routines or late-night trips.

Also, think about lighting and ventilation. Natural light makes a space feel more spacious and welcoming, while proper airflow keeps things fresh and comfortable. These elements should be considered from the beginning rather than added later.
Modern Trends in Two Bedroom One Bath Design
Today's homeowners are looking for more than just basic functionality. Modern two bedroom one bath floor plans incorporate trends that blend comfort with style and sustainability.
One major trend is the emphasis on natural materials and earth tones. Wood floors, stone countertops, and plants create a calming environment that brings nature indoors.
Another growing trend is the integration of smart home technology. From thermostats that learn your schedule to security systems that can be controlled remotely, these features enhance convenience and safety.
Sustainability is also becoming more important. Energy-efficient appliances, LED lighting, and water-saving fixtures are now standard in many new builds. These choices not only reduce environmental impact but also lower utility bills over time.
Minimalist design continues to influence home layouts. Clean lines, simple shapes, and uncluttered spaces help maintain a sense of calm. But even minimalist spaces can be personalized with thoughtful touches like artwork or unique lighting fixtures.
Finally, outdoor connections are increasingly valued. Whether it's a small balcony, a deck, or even a garden view, bringing the outdoors in adds value and joy to everyday life.

Common Mistakes to Avoid
Even experienced designers can fall into certain traps when planning a two bedroom one bath layout. Here are some common pitfalls to watch out for:
These mistakes aren't necessarily fatal, but they can make daily life more challenging. Taking time upfront to address these concerns can save you headaches down the road. Sometimes, small adjustments in the planning phase can make a huge difference in how your home functions long-term.
Tips for Customizing Your Layout
The beauty of floor plans is that they can be adapted to fit almost any lifestyle or preference. Here are some ways to personalize your two bedroom one bath layout:
Remember, the best floor plan isn't necessarily the most expensive or the most trendy – it's the one that fits your specific situation and makes you feel comfortable and happy in your own space. Every detail, from the position of a door to the color of the walls, contributes to the overall experience of living in your home.
Budget-Friendly Design Solutions
Building or renovating a two bedroom one bath home doesn't have to break the bank. There are several cost-effective approaches that still deliver quality results:

Working within a budget means being strategic about where you spend money and where you can cut corners without sacrificing comfort or safety. It's also worth considering whether you're building new or renovating an existing space. Renovating can sometimes be more economical than starting from scratch, depending on your specific situation.
Making Space Work for You
Ultimately, the success of any two bedroom one bath floor plan depends on how well it meets the needs of its inhabitants. This means thinking beyond the basic requirements and considering how people actually live, work, and play in their homes.
Ask yourself: How do I want to spend my time in this space? What activities are most important to me? What would make my daily routine easier or more enjoyable?
The answer to these questions will guide every decision about layout, furniture placement, and design choices. A home that feels wrong or uncomfortable won't bring the joy and satisfaction you expect.
Sometimes, the best floor plan isn't the most conventional one – it's the one that works perfectly for the people who live there. Whether you're planning a new home or redesigning an existing space, remember that the goal is to create a place where you can thrive, relax, and enjoy life. That's what makes a floor plan truly successful.
A well-designed two bedroom one bath floor plan isn't just about fitting rooms into a space – it's about creating a living environment that supports your lifestyle and enhances your quality of life. Whether you're buying a new home, renovating an existing space, or planning a custom build, the principles discussed here can help guide your decisions. Remember that every home is unique, and what works for one person might not work for another. The key is to focus on how the space will function for you and your family, not just how it looks on paper.
By paying attention to flow, storage, lighting, and personal preferences, you can transform a simple two bedroom one bath layout into a home that truly feels like yours. These spaces offer incredible potential for customization, comfort, and practicality. With thoughtful planning and a clear understanding of your needs, you can create a space that brings joy every day. The journey toward your perfect floor plan starts with understanding what matters most to you – and then designing around that.