Picture this: you wake up in your luxurious master suite, step onto your private balcony overlooking the garden, then walk down the hallway to find another equally stunning retreat for your partner. This isn't just a dream – it's a reality that U-shaped floor plans with two master suites make possible. These architectural marvels offer families the rare gift of privacy without isolation, creating spaces where everyone can thrive.
When you think about the most coveted features in modern home design, privacy and connectivity often seem like opposing forces. But what if we told you there's a way to have both? Enter the U-shaped floor plan with two master suites – a design philosophy that's been capturing hearts and transforming homes across the country. This isn't just about having two bedrooms that look like palaces. It's about creating a symphony of space where each room plays its part in the greater harmony of family life. Whether you're a young couple looking to build your first home or a growing family seeking more space, this layout offers something special. The U-shape creates natural flow and separation while maintaining the connection that makes homes feel lived-in rather than sterile.
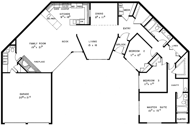
What Makes U-Shaped Floor Plans Special?

The U-shape in architecture isn't just a visual choice – it's a functional one. Think of it like a gentle embrace that wraps around your home's core. The layout typically features three main wings that form the arms of the U, with the central area serving as the heart of activity. When you add two master suites to this design, you're essentially creating two separate worlds within one cohesive structure. The beauty lies in how these wings can be arranged to maximize natural light, create distinct zones, and provide privacy for each suite while still allowing for easy communication between them. Many homeowners find that this arrangement naturally creates a sense of calm and order, almost like having two personal sanctuaries connected by a shared family space.
Privacy Without Isolation
One of the biggest advantages of this design is how it handles privacy. With two master suites positioned on opposite sides of the house, you get complete separation. No more worrying about your partner's sleep schedule disrupting yours. The physical distance between the suites means different routines, different lighting preferences, and different vibes. Yet they're still close enough that you can hear each other in the house, know when someone is coming home, or easily share a meal together. This setup works wonderfully for couples with different schedules or those who simply prefer their own space. The central common areas become the glue that holds everything together, making the whole house feel connected even when the master suites are quiet.

The Flow of Daily Life
Think about how your day unfolds – morning routines, evening wind-downs, and everything in between. In a U-shaped layout, these activities naturally fall into place. The kitchen and dining areas often sit in the center, creating a hub where the family gathers. Bedrooms and bathrooms are positioned along the outer edges, providing quiet zones for rest and reflection. The hallways and connecting spaces become the pathways between these zones. This arrangement allows for a natural rhythm where morning coffee can happen in the central area while one person gets ready in their suite, and evening relaxation can take place in either space. You don't have to navigate through the entire house to reach your bedroom – it's right there, tucked away from the main activity.
Space Optimization Strategies

One of the most impressive aspects of U-shaped floor plans is how efficiently they use space. Every corner becomes purposeful. The corners of the U often serve as storage areas, built-in cabinets, or even cozy reading nooks. The central area can accommodate a family room, dining space, or kitchen island that serves multiple functions. When you have two master suites, you can think creatively about how to utilize the remaining space. Perhaps one suite has a separate office, while the other has a spa-like bathroom. The flexibility allows you to customize each space based on your needs rather than just following generic layouts. Some designers suggest using the corner areas to create walk-in closets that double as linen storage or extra workspaces.
Natural Light and Ventilation Benefits
The U-shape naturally promotes better airflow and light distribution throughout the home. Windows on multiple sides mean that light can filter in from various directions, creating a dynamic play of shadows and brightness. This is particularly important in master suites, where good lighting can make a huge difference in mood and comfort. You'll notice that rooms with windows on both sides tend to feel more open and less confined. The cross-ventilation created by the shape helps keep air circulating, reducing humidity issues and keeping the home feeling fresh. Many homeowners report that their U-shaped homes feel more alive and energized compared to traditional rectangular designs. The positioning of windows also allows for better views – perhaps one suite overlooks a garden while the other faces a street or water feature.

Practical Considerations and Common Mistakes
While the benefits are numerous, there are some things to keep in mind when planning this type of layout. One common mistake is placing the master suites too far apart, which can create awkward walking distances or make it difficult to check on each other during the night. Another issue occurs when the central area becomes too large or open, leading to a sense of emptiness. The key is finding the right balance between spaciousness and intimacy. Consider how traffic flows through the house – you want the main living areas to be easily accessible from both suites, and you might want to think about having a small shared space like a breakfast bar or sitting area that connects the two wings. Also remember that the U-shape can sometimes make the house feel less intimate if not designed carefully. Proper lighting and intimate-scale furnishings can help maintain a cozy atmosphere.
Real-Life Examples and Inspirations

Take a look at some of the homes that showcase this design beautifully. Many luxury builders now offer U-shaped floor plans with dual master suites as standard options because they've proven so popular. One example features a master suite on the left side with a walk-in closet and ensuite bathroom, while the right side houses another master with a private balcony and separate entrance. The central area includes a gourmet kitchen, family room, and dining space that all flow seamlessly together. Another interesting approach uses the U-shape to create a 'home office' that sits between the two master suites, giving the family a dedicated workspace that's still connected to the main living areas. These designs show how the layout can be adapted to fit different lifestyles and preferences.
Cost Considerations and Value
Building or renovating to a U-shaped floor plan with two master suites does come with additional costs. The complexity of the design means more materials, more labor, and potentially higher construction costs. However, many homeowners find that the investment pays off in the long run. These homes often command higher resale values due to their unique layout and the premium features they offer. The privacy and flexibility can be worth the extra cost for families who value separate spaces. It's worth noting that some of the additional expenses can be offset by energy efficiency gains – the better ventilation and natural light can reduce heating and cooling costs. The key is working with a designer who understands how to optimize the space while keeping costs reasonable.
Maintenance and Long-Term Care
Maintaining a U-shaped home with two master suites requires a bit more attention to detail than simpler layouts. With more rooms and more spaces to clean, it's important to establish systems early on. Consider having a regular cleaning schedule that covers both master suites separately, since they're often used differently. The central areas will likely see more activity, so keeping them organized and clutter-free is essential. The corners and less-used spaces in the U-shape can become dust collectors if not maintained properly. Some homeowners find that the design actually makes maintenance easier because each wing can be cleaned independently. Having a dedicated storage system in the corner areas helps keep everything organized and accessible.
Future-Proofing Your Investment
One of the most appealing aspects of U-shaped floor plans with dual master suites is how well they age with your family's changing needs. As children grow, the layout can adapt – perhaps converting one of the suites into a guest room or study. The central areas can be expanded or reconfigured to accommodate larger gatherings. Some families choose to keep one master suite for themselves while turning the other into a home office or creative space. The flexibility built into the U-shape design means that major changes don't require complete renovations. You can update finishes, rearrange furniture, or modify individual spaces while maintaining the overall flow of the home. This adaptability ensures that your investment continues to serve you well for decades.
The U-shaped floor plan with two master suites represents more than just a design choice – it's a lifestyle decision. It's about creating a home that respects individual needs while fostering family connection. These layouts offer a rare combination of privacy, functionality, and aesthetic appeal that's hard to find elsewhere. While they may require more thoughtful planning and slightly higher initial investment, the long-term benefits often outweigh the costs. Whether you're building a new home or remodeling an existing one, consider how this design could transform your daily experience. The U-shape doesn't just define your home's structure – it defines how you live, how you work, and how you connect with those closest to you. Sometimes the best design solutions are the ones that make our lives easier, our spaces more beautiful, and our relationships stronger. This isn't just about having two master suites – it's about having two places where you can truly be yourself, surrounded by the comfort and familiarity of home.