When it comes to housing, size matters less than how well you use every inch. A 1000 square foot home might seem cramped at first glance, but with smart planning and thoughtful design choices, it can become a cozy haven that feels much larger. These compact spaces offer unique opportunities to create beautiful, functional living environments.
In today's world where space is often at a premium, 1000 square foot houses have gained popularity among young professionals, retirees, and anyone looking to simplify their lives. These homes pack a punch despite their modest footprint. They're not just small—they're efficient. They're not just tiny—they're intentional. The key lies in understanding how to work with the constraints while embracing the benefits that come with smaller spaces. Whether you're building from scratch or renovating an existing structure, these floor plans serve as blueprints for maximizing utility without sacrificing comfort.
The Magic of Compact Design
There's something special about a well-designed small home. It forces you to think creatively about function over form. Every room must serve multiple purposes, and every piece of furniture needs to earn its place. Consider a kitchen island that doubles as a breakfast bar, or a living area that transforms into a guest bedroom with a fold-down Murphy bed. The beauty of a 1000 square foot layout lies in its ability to make each square foot count. When you're working with limited space, you develop a deeper appreciation for what truly matters in daily life.

Essential Layout Principles
Designing a successful 1000 square foot floor plan requires understanding some fundamental principles:
These principles aren't just design rules—they're lifestyle choices that make small spaces feel expansive and welcoming. Many homeowners find that the discipline required for small-space living actually enhances their quality of life.
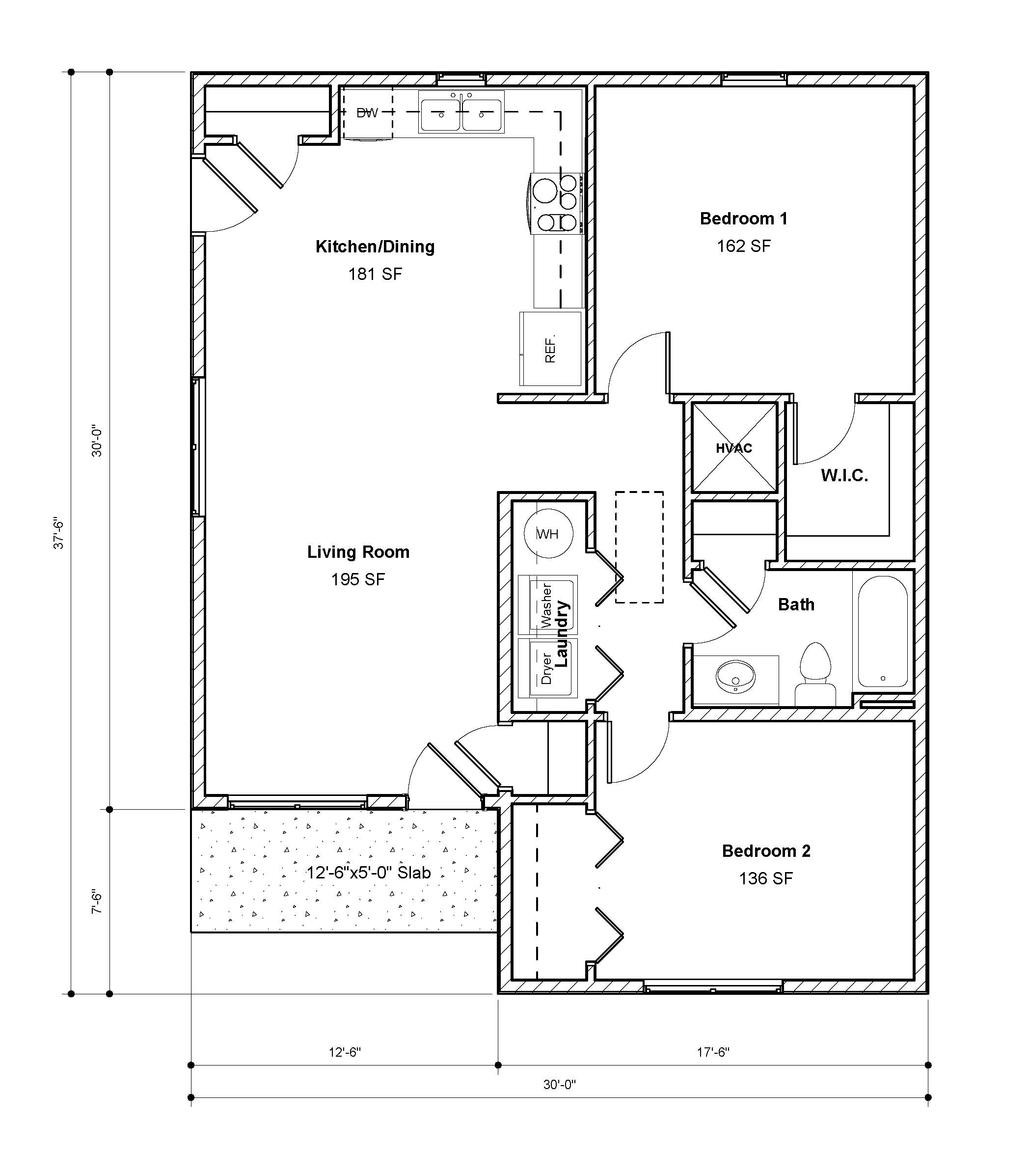
Popular Room Configurations

Here are some tried-and-true arrangements that work exceptionally well in 1000 square feet:
Each configuration offers distinct advantages depending on your lifestyle and requirements. A two-bedroom setup might suit a couple with children, while a studio could be ideal for a single professional. The key is matching the layout to your actual needs rather than following trends.
Storage Solutions That Actually Work
One of the biggest challenges in small homes is finding enough storage without overwhelming the space. Creative storage solutions are absolutely vital:

Many successful 1000 square foot homes incorporate storage that's both functional and visually appealing. Think of storage as another room feature rather than just a place to hide things. Clever organization makes the difference between a cluttered mess and a serene retreat.
Lighting and Visual Tricks
Lighting plays a huge role in making small spaces feel comfortable and airy. Natural light should be maximized wherever possible. If you're designing a new home, consider large windows or skylights. For existing homes, strategic placement of mirrors can reflect light and create visual depth. Layered lighting—from ambient to task-specific—creates atmosphere and functionality. Dimmer switches add flexibility, allowing you to adjust the mood based on time of day or activity. Remember, good lighting can make a 500 square foot apartment feel like a mansion.
Practical Tips for Real Estate Buyers

If you're shopping for a 1000 square foot home, keep these factors in mind:
Buying a small home isn't just about getting a deal—it's about finding the right fit for your lifestyle. Sometimes a slightly smaller space with better location and layout beats a bigger one in a less desirable area.
Cost Considerations and Budgeting
Building or buying a 1000 square foot home typically costs less than larger properties, but there are hidden expenses to consider:

Budget carefully, especially when it comes to materials and finishes. Quality investments in key areas like flooring, insulation, and kitchen appliances will provide better long-term value than cheap alternatives.
Future-Proofing Your Small Space
Planning for changes in your life is important even in small homes. Consider:
A well-thought-out 1000 square foot floor plan considers not just today's needs but tomorrow's possibilities. This forward-thinking approach ensures your investment remains valuable as circumstances change.
A 1000 square foot house floor plan represents more than just a measurement—it's a statement about intentionality and purpose in modern living. These homes challenge us to prioritize what we truly need versus what we think we want. When designed thoughtfully, they can provide everything you need for a comfortable, fulfilling life. Whether you're building a new home or renovating an existing one, remember that the goal isn't to fill every corner with stuff. It's to create a space that supports your lifestyle while feeling spacious and lived-in. The magic happens when you embrace the limitations and turn them into strengths. Small spaces, big hearts, and smart design make all the difference.