When you're working with just 800 square feet, every corner counts. This compact space might seem restrictive at first glance, but it's actually a canvas for creativity and smart thinking. The key isn't just about fitting everything in—it's about creating a functional, comfortable home that feels spacious despite its size.

In today's world where urban living is on the rise, many people find themselves navigating the challenge of small spaces. An 800 square feet floor plan represents a sweet spot in terms of manageability and functionality. It's large enough to accommodate essential living areas while remaining small enough to feel intimate and cozy. Whether you're a young professional, a couple, or someone who simply values minimalism, understanding how to work within these constraints can transform your living experience.

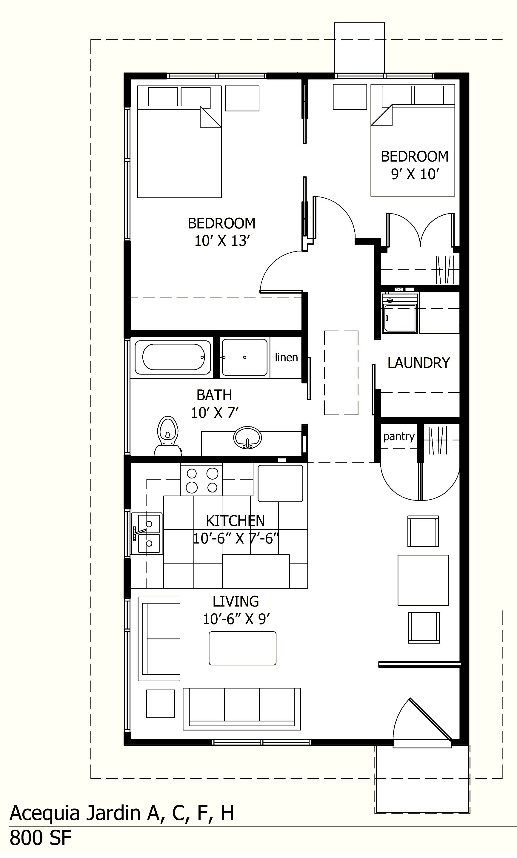
Understanding the 800 Square Feet Challenge

Working with 800 square feet means you're dealing with approximately 27 feet by 30 feet of space. That's not a huge area, but it's definitely enough for a decent living arrangement. The real challenge comes from the fact that you have limited room for movement, storage, and different activities. Think about it like having a small kitchen versus a large one—both can cook meals, but the smaller version requires more thoughtful planning.

800 sq feet floor plan 1

Consider the basic needs: bedroom, bathroom, kitchenette, living area, and storage. In 800 square feet, you're essentially creating a mini apartment. What makes this space special is how much thought goes into making it work for daily life. You might have heard stories of people living in tiny houses, and while their spaces are often larger, the principles remain the same.

Essential Layout Principles

The most important thing when designing an 800 sq ft floor plan is to think about flow and function. Here are some core concepts that will help:

  • Open Concept Design: Keeping walls minimal allows light to travel through the space, making it feel bigger. A kitchen island can serve as a room divider while maintaining visual connection.
  • Multi-functional Furniture: Look for pieces that do more than one job. A dining table that folds away, a sofa bed, or a coffee table with hidden storage can save precious square footage.
  • Vertical Storage: Don't forget to use the wall space. Tall shelving units, hanging organizers, and mounted storage can dramatically increase your usable space without taking up floor area.
  • Zoning: Even in small spaces, you can create distinct areas. A rug under a dining table helps define that zone, or perhaps a small bookshelf creates a reading nook.
  • Smart Storage Solutions

    800 sq feet floor plan 2

    Storage in small spaces isn't just about having more cabinets—it's about organizing better. You want to maximize every available surface.

  • Under-bed Storage: This is often overlooked but provides excellent storage for seasonal items or extra bedding.
  • Overhead Storage: Install shelves high up where you can reach with a ladder. These spots are perfect for books, decorative items, or less-used belongings.
  • Hidden Storage: Look for furniture with built-in compartments. A side table with secret drawers, or a coffee table that opens to reveal storage, can be game-changers.
  • Kitchen Organization: In a small kitchen, you need to be strategic. Consider pull-out shelves, over-the-door hooks, and vertical spice racks. Every inch matters here.
  • Lighting and Visual Tricks

    Light plays a crucial role in making small spaces feel larger. Natural light is always best, but artificial lighting can also work wonders. Here's how to enhance your 800 sq ft space visually:

  • Layered Lighting: Combine ambient, task, and accent lighting. A central ceiling light provides general illumination, while table lamps or wall sconces offer focused light for reading or cooking.
  • Mirrors: Strategic placement of mirrors can make walls appear farther away. A large mirror on one wall can make a small room feel twice its size.
  • Light Colors: Paint walls in light colors like white, cream, or soft gray. These hues reflect light back into the room instead of absorbing it.
  • Consistent Materials: Using similar textures and finishes throughout the space creates a sense of continuity, making the area feel unified rather than fragmented.
  • Designing Your Living Areas

    800 sq feet floor plan 3

    The heart of any home is the living space, and in 800 sq ft, it needs to be versatile and efficient. Consider these elements:

  • Flexible Seating: Rather than a traditional sofa setup, try a few smaller seating options that can be moved around. This flexibility allows you to reconfigure the space based on your needs.
  • Integrated Dining: A small dining table that doubles as a workspace can be very practical. Just make sure it fits comfortably in the space.
  • Entertainment Zone: If you enjoy watching TV or movies, ensure there's adequate space around the television. You might even consider mounting it on the wall to save floor space.
  • Work-from-home Setup: Many people now work from home, so incorporating a small desk area is essential. This could be tucked into a corner or built into a larger furniture piece.
  • Practical Tips for Daily Life

    Beyond the physical layout, small spaces require a mindset shift. Here are some real-world considerations:

  • Declutter Regularly: One of the biggest benefits of small spaces is that they force you to keep only what you truly need. This practice extends beyond the home into daily habits.
  • Invest in Quality Pieces: When you have limited space, it's worth spending a bit more on well-made furniture that will last longer. A quality chair or table that you love is more valuable than multiple cheap alternatives.
  • Plan for Guests: Even though space is tight, you can still welcome visitors. A folding table, a few extra chairs, or a couch that converts to a bed can help.
  • Maintenance Matters: With fewer spaces, keeping things clean becomes more manageable. A tidy environment feels more spacious, so establish routines for regular cleaning.
  • Real-Life Examples and Inspiration

    800 sq feet floor plan 4

    Looking at actual 800 sq ft floor plans can give you concrete ideas for your own space. Many designers and homeowners have shared their creative solutions online. Some common themes include:

  • Loft-style Bedrooms: Using the height of the room to create a sleeping loft above a living area. This can be done with a simple staircase or ladder.
  • Murphy Beds: These fold up against the wall during the day, freeing up floor space for other activities.
  • Kitchenette Integration: Many small homes feature a compact kitchen area that includes a stove, sink, and refrigerator in a single unit.
  • Bathroom Innovations: Modern small bathrooms often incorporate features like walk-in showers, wall-mounted toilets, and compact sinks to maximize usability.
  • Budget-Friendly Design Strategies

    You don't need to break the bank to make your 800 sq ft space beautiful and functional. Here are cost-effective approaches:

  • DIY Projects: Simple projects like painting cabinets, building shelves, or repurposing old furniture can add character and function.
  • Thrift Shopping: Second-hand stores and online marketplaces often have excellent finds for small spaces. Look for vintage pieces that can be updated.
  • Multipurpose Items: Spend on items that serve multiple functions. A bench with storage underneath is both seating and storage.
  • Strategic Purchasing: Buy furniture that's slightly larger than needed if it means you won't need to buy additional pieces later. Sometimes it's better to have a little extra space than to run out of room quickly.
  • Future-Proofing Your Design

    800 sq feet floor plan 5

    Even though you're working with a fixed space, your needs might change over time. Planning ahead helps avoid costly redesigns later. Consider:

  • Modular Furniture: Choose pieces that can be easily rearranged or modified as your lifestyle changes.
  • Scalable Storage: Make sure your storage solutions can grow with your needs. This might mean choosing taller shelves or adjustable units.
  • Technology Integration: As gadgets become more integrated into our lives, ensure your space can accommodate new devices without looking cluttered.
  • Flexibility in Layout: Avoid permanent fixtures that might limit future changes. A room divider made of sliding doors can be removed if needed.
  • The Psychology of Small Spaces

    Living in a confined area affects more than just your physical space—it influences your mental well-being too. Understanding this relationship can help you create a space that supports your happiness.

  • Minimalism and Mental Clarity: Small spaces naturally encourage a minimalist approach, which can reduce stress and promote focus.
  • Personal Connection: With less space, each item becomes more meaningful. This can lead to a stronger emotional bond with your home.
  • Comfort Through Simplicity: Sometimes, simplicity brings comfort. A clean, organized space can feel more peaceful than a cluttered one.
  • Adaptation and Growth: Working within limitations can teach resilience and creativity. Many people find that their problem-solving skills improve when faced with spatial constraints.
  • An 800 square feet floor plan may seem limiting at first, but it's actually an opportunity to design something intentional and efficient. The key lies in embracing the constraints rather than fighting them. By focusing on smart layouts, clever storage solutions, and thoughtful design choices, you can create a space that feels both functional and inviting. Remember, it's not about how much space you have—it's about how well you use what you have. Whether you're moving into a new place or redesigning your current space, these principles can guide you toward a more satisfying living situation. The beauty of small spaces is that they force us to prioritize what really matters, creating homes that are not just physically smaller but emotionally richer.