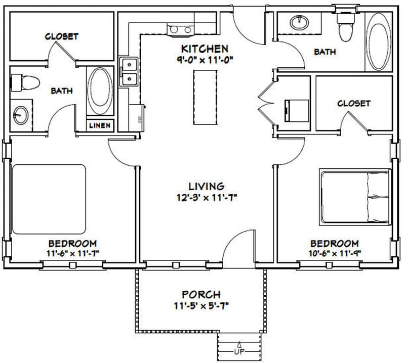
Every home tells a story, and the floor plan is its opening chapter. For many families, the two bedroom, two bathroom layout strikes just the right balance between spaciousness and practicality. Whether you're building a new home or renovating an existing space, understanding how to craft the perfect 2BR/2BA floor plan can transform your living experience.
There's something deeply satisfying about a home that feels both intimate and generous. Two bedroom, two bathroom floor plans have become the gold standard for family housing because they offer enough room for privacy while remaining manageable in terms of maintenance and energy costs. These layouts work for young couples, growing families, and even empty nesters looking for a comfortable, low-maintenance lifestyle. The beauty lies in their versatility - they can be designed to accommodate everything from home offices to guest suites, all within a compact footprint that makes them ideal for various neighborhoods and price ranges.
Essential Design Principles
When crafting a two bedroom, two bathroom floor plan, several fundamental principles guide successful outcomes. First and foremost, consider the flow between spaces. A well-designed floor plan allows natural movement from the kitchen to living areas, and from bedrooms to bathrooms without unnecessary backtracking. Think about traffic patterns - where will people naturally move throughout the day? The kitchen should feel connected to dining and living spaces, while bedrooms benefit from being positioned away from high-traffic areas.

Consider the orientation of your home as well. South-facing windows bring warmth and light, especially beneficial for bedrooms and living rooms. North-facing rooms tend to be cooler, making them suitable for storage or utility areas. The placement of your two bathrooms becomes crucial too - one near the bedrooms for convenience, another accessible from common areas. Many homeowners find success with a master suite that includes its own bathroom, leaving the second bathroom for guests or additional family members.
Layout Options That Work
There are several classic approaches to arranging a two bedroom, two bathroom layout, each with unique advantages:
Each configuration offers distinct benefits depending on your family's needs, lifestyle preferences, and available lot size.

Bathroom Placement Considerations
The placement of your two bathrooms significantly impacts daily life. Placing one bathroom adjacent to the bedrooms creates immediate convenience for morning routines and bedtime rituals. The second bathroom, however, should be strategically positioned for accessibility - perhaps near the entryway or living areas for guests.
Some homeowners prefer having both bathrooms on the same side of the house for easy access during busy mornings. Others opt for a split arrangement, with one bathroom serving the main living area and another tucked away for private use. When considering fixtures, think about water pressure, drainage, and future renovations. Modern bathrooms often include features like double vanities, walk-in showers, and smart technology that enhance daily experiences.
Consider the size and shape of each bathroom space carefully. A larger master bathroom might accommodate a soaking tub and separate shower, while a secondary bathroom could feature a more streamlined design that saves space and money. Both bathrooms should ideally have adequate ventilation to prevent moisture issues and maintain fresh air circulation.

Maximizing Storage and Privacy
Storage solutions in two bedroom, two bathroom homes often determine whether a space feels cluttered or organized. Built-in closets, linen storage, and under-sink storage in bathrooms are essential elements that keep homes neat without sacrificing aesthetics. Consider how much clothing, linens, and personal items need to be stored.
Privacy remains a key concern when designing bedroom layouts. Each bedroom should provide sufficient separation from other areas, with doors that close properly. Windows should offer views that don't compromise privacy, or consider adding privacy glass or window treatments. If you have a small home, using half walls or decorative screens can create visual separation without feeling cramped.
Think about how you use your space daily. Do you need a home office? A laundry area? Perhaps a mudroom near the entrance? Incorporating these elements early in the planning process ensures they fit comfortably within your two bedroom, two bathroom structure.

Lighting and Flow Optimization
Natural lighting plays a huge role in how a two bedroom, two bathroom home feels. Large windows, skylights, and strategic placement of light sources can make a small space feel airy and welcoming. Consider the direction of windows and how they interact with the time of day. Morning light is especially valuable for bedrooms, while afternoon sun might be better suited for living areas.
Flow between rooms matters more than you might think. An open concept design can make a small home feel larger, but it requires careful consideration of how different activities occur simultaneously. Kitchen prep areas shouldn't interfere with bedroom quiet time, and living spaces should remain functional for guests without disrupting family routines.
The path between spaces should be intuitive and unobstructed. Hallways should be wide enough for furniture movement, and doorways should allow easy passage. Sometimes a small change in layout - moving a bathroom slightly or adjusting the position of a doorway - can dramatically improve how a home functions.

Practical Tips for Realistic Planning
Creating a successful two bedroom, two bathroom floor plan involves balancing dreams with reality. Here are some practical strategies:
Remember that no floor plan is perfect for everyone. What works beautifully for one family might not suit another. The key is finding a balance between your priorities and the realities of space constraints.
A two bedroom, two bathroom floor plan represents more than just square footage - it's about creating a space where life happens naturally. The right design considers how you want to live, work, and relax. Whether you're designing a new home or reimagining an existing space, remember that the best layouts are those that reflect your values and needs. Take time to think through every detail, from the placement of your favorite chair to the location of your morning coffee maker. These thoughtful decisions create the foundation for a home that truly feels like yours. After all, your floor plan isn't just about rooms - it's about the stories you'll tell in each space, the memories you'll make, and the way you'll live every single day.