Whether you're planning a new build, remodeling an existing space, or simply dreaming about your next home purchase, understanding two bedroom floor plans is crucial. These layouts shape how we live, work, and interact with our families every single day.
Two bedroom homes represent a sweet spot in residential design. They offer enough space for a growing family while remaining manageable in terms of maintenance and cost. Think about it - you've got a master suite with its own private bathroom, plus a second bedroom that could be a child's room, guest room, or even a home office. The possibilities are endless. But how do you actually make the most of this space? Let's explore the ins and outs of two bedroom floor plans.
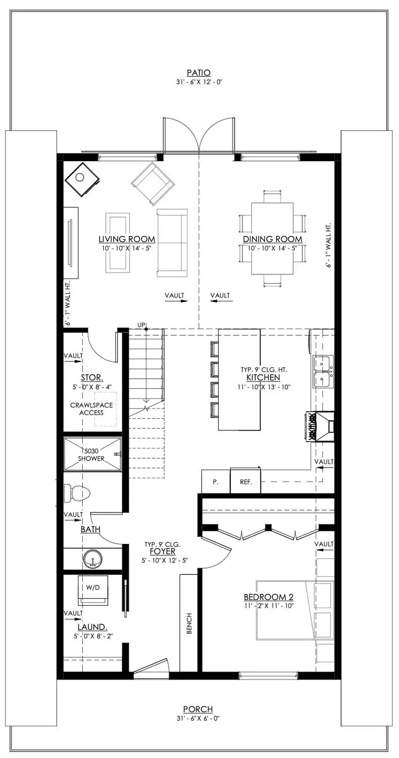
Understanding the Basics of Two Bedroom Layouts
A typical two bedroom home usually features one main bedroom with a private bathroom and another bedroom that might share a bathroom with the first. This arrangement gives homeowners flexibility. You might have a master suite with a walk-in closet and double vanity, while the second bedroom could serve as a quiet study or a place for guests to stay. The key is balance - you want each area to feel distinct yet connected to the whole house. Consider how you move through your space. Do you prefer open concepts or separate areas? What activities happen in each room? These questions will guide your decisions.
Popular Two Bedroom Floor Plan Styles

There are several classic styles that dominate two bedroom home designs:
Each style brings different benefits. Traditional layouts are straightforward and familiar. Open concepts make spaces feel larger and more connected. Split-level designs can add visual interest and are often practical for homes on sloped lots. L-shaped layouts work well when you want to maximize usable space in smaller lots.
Essential Features Every Two Bedroom Home Needs
What makes a two bedroom floor plan truly functional?
Consider how you use your space daily. Do you need a dedicated workspace? A cozy reading nook? These elements help determine what features matter most to you.

Space Optimization Techniques
Maximizing every square foot matters, especially in two bedroom homes where space is precious. Here are some smart strategies:
These techniques help you get more out of your space without feeling cramped. It's all about making thoughtful choices that serve multiple purposes.
Practical Tips for Different Family Situations
The right floor plan depends heavily on your current and future needs:

Every situation is unique, so think about what matters most to you now and what might change in the future. That's where good design really shines.
Cost Considerations and Budget Planning
Building or renovating a two bedroom home involves many financial factors:
Start with a realistic budget and prioritize your must-haves. Sometimes small changes can make a big difference in how your home feels and functions.
Modern Trends in Two Bedroom Designs

Current trends in two bedroom floor plans show a shift toward more flexible and sustainable living:
These trends reflect changing lifestyles and priorities. They focus on creating homes that support modern living while remaining timeless in their appeal.
Common Mistakes to Avoid
Even experienced homeowners can fall into certain traps when designing or choosing two bedroom floor plans:
Learning from others' experiences can save you time and money. Take advice seriously and don't be afraid to ask questions.

Making Your Floor Plan Work for You
The best two bedroom floor plan isn't necessarily the most popular one - it's the one that fits your lifestyle perfectly. Ask yourself:
Answering these questions helps you make better decisions about layout and design. Remember, your home should feel like an extension of yourself, not something that feels forced or awkward.
Final Thoughts on Two Bedroom Home Planning
Two bedroom floor plans offer incredible versatility for a wide range of living situations. Whether you're building a new home, renovating an existing one, or simply dreaming about your ideal space, there are countless ways to make your two bedroom layout work perfectly for you. The key lies in understanding your needs, working with good design principles, and not being afraid to customize your space to match your lifestyle. Every home tells a story - let yours tell the story of who you are and how you want to live.
Designing a two bedroom home is both an art and a science. It requires balancing practical needs with personal preferences, considering today's lifestyle while planning for tomorrow. From choosing the right layout to incorporating modern trends, every decision shapes how you'll live in your space. Remember, the perfect floor plan isn't about following trends - it's about creating a place that truly serves you. With thoughtful planning and attention to detail, your two bedroom home can become the foundation for countless happy memories and comfortable days ahead.