Whether you're planning a new home or remodeling an existing space, understanding 2 bedroom bath house plans is crucial. These layouts can make or break your daily routine, affecting everything from morning routines to family gatherings. Think about it - how many times have you wished your bathroom was just a little bigger? Or that your bedroom had more space for your growing collection of books?
When it comes to designing homes, few layouts capture the sweet spot between functionality and comfort quite like 2 bedroom bath house plans. These designs work beautifully for families, couples, or anyone looking for a cozy yet spacious living environment. They offer the perfect balance of private spaces while keeping common areas inviting. The key lies in smart planning and understanding how each element works together to create a harmonious living experience. Picture waking up to a sun-drenched master suite, with easy access to a shared bathroom, while your guest room remains perfectly positioned for privacy.

Understanding the Basics of 2 Bedroom Layouts
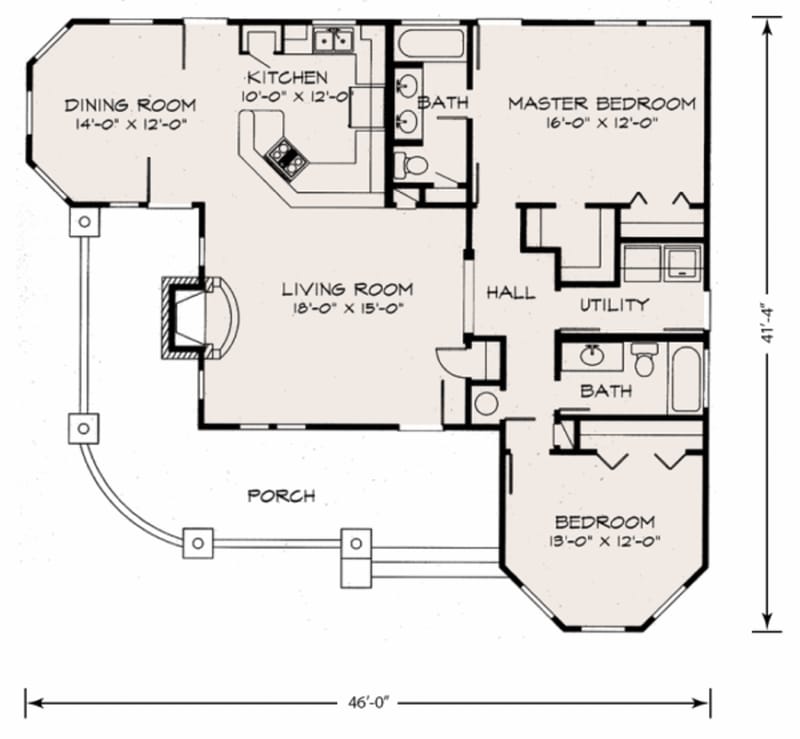
A typical 2 bedroom bath house plan usually includes two bedrooms, two full bathrooms, and a combination of living spaces. The most common arrangement places the master bedroom on one side of the house, often with its own en-suite bathroom. This setup provides privacy and convenience for the primary occupants. The second bedroom typically sits across from or near the main bathroom, making it ideal for guests, children, or a home office. Many homeowners find that this configuration allows them to maximize their square footage effectively. It's important to consider traffic flow when arranging these spaces. You want to avoid having people walking through your bedroom to reach the bathroom. That's why many designers place the master bedroom away from high-traffic areas, creating a peaceful retreat within the home.

Popular Design Styles and Configurations
There are several popular approaches to 2 bedroom bath house plans. The traditional style features a linear layout where rooms flow in a straight line from front to back. This design works well for homes built on smaller lots, maximizing every inch of available space. Another approach is the open-concept style, which removes walls between living areas to create a more fluid, airy feel. Many modern interpretations combine both styles, offering a blend of privacy and openness. Consider how you actually live in your home. Do you entertain frequently? Do you prefer quiet mornings? These lifestyle factors should guide your design choices. Some people love the idea of a breakfast nook adjacent to the kitchen, while others might prioritize a separate dining area. The beauty of 2 bedroom bath plans is their versatility.

Key Features for Modern Living Spaces
Today's 2 bedroom bath house plans often incorporate features that enhance daily life. Smart storage solutions are essential, especially when space is limited. Built-in shelving, under-stair storage, and multi-functional furniture can make a huge difference. Consider walk-in closets for the master bedroom - they transform how you organize your wardrobe and make getting dressed more enjoyable. The bathroom deserves special attention too. Modern fixtures, adequate lighting, and thoughtful layouts can turn a simple bathroom into a spa-like retreat. Natural light plays a significant role in making small spaces feel larger. Large windows, skylights, or even glass doors can dramatically change the atmosphere of your home. These elements don't just look good - they affect mood and energy levels.

Practical Considerations for Family Life
When designing for families, several practical aspects become crucial. The location of bathrooms becomes even more important when children are involved. Having a bathroom close to bedrooms helps with morning routines and reduces chaos. Many parents appreciate a powder room or half-bath near the entryway for guests. Storage needs increase significantly with families. Think about how much clothing, toys, and household items you'll need to store. A well-designed 2 bedroom bath house plan accounts for these requirements. Consider including a linen closet, perhaps near the main bathroom. This makes it easier to keep towels and bedding organized. Also, think about safety features, especially if you have young children. Non-slip surfaces, rounded corners, and appropriate height for fixtures can make a big difference in preventing accidents.

Cost-Effective Planning Strategies
Budget-conscious homeowners can still enjoy quality 2 bedroom bath house plans. Start by prioritizing the most important spaces - your bedroom and bathroom will likely see the most use. Allocate more budget there, then find creative ways to make other areas functional without breaking the bank. Consider using similar materials throughout different rooms to maintain visual continuity while saving costs. For example, you might choose a wood-look tile for both bathrooms and kitchen floors. Repurposing existing elements can also save money. If you already have a favorite dining table, consider designing around it rather than replacing it. Sometimes the best design decisions involve working with what you have rather than starting completely fresh. Remember that quality materials in key areas often pay dividends in the long run.
Maximizing Space in Smaller Homes
Even in compact 2 bedroom bath houses, smart planning can create a sense of spaciousness. Multi-functional rooms serve multiple purposes, such as a study that doubles as a guest room. Vertical storage solutions can dramatically increase usable space without taking up floor area. Loft spaces, if available, can provide additional storage or even a small reading nook. Mirrors are powerful tools for making spaces appear larger. Strategic placement of mirrors can reflect light and create the illusion of more space. Consider the flow of traffic when planning your layout. You want to avoid narrow hallways or cramped corners. Every inch should contribute to a comfortable living experience. Creative storage solutions, like hidden compartments or under-bed storage, can keep clutter out of sight while maximizing utility.
Designing your 2 bedroom bath house plan is more than just choosing where to put walls and doors. It's about creating a space that supports your lifestyle and brings joy to everyday moments. Whether you're building a new home or renovating an existing one, the right layout can transform your living experience. Remember that flexibility matters - your home should evolve with your needs over time. The key is to start with your priorities and build from there. Don't overlook the small details that make a big difference: proper lighting, thoughtful storage, and comfortable traffic flow. A well-planned 2 bedroom bath house isn't just about square footage - it's about creating a sanctuary where you truly want to spend your time. Take your time with the process, and trust that the right layout will emerge naturally as you consider what matters most to you.