Picture this: a cozy home with two bedrooms, a spacious loft area, and enough room to breathe. That's exactly what 2 bedroom house plans with loft offer. These designs have become increasingly popular because they combine practicality with character. Whether you're planning a new build or looking to renovate, understanding how to make the most of these layouts can transform your living experience.
When it comes to home design, few layouts capture the imagination quite like the 2 bedroom house plan with loft. This setup offers something special – it's not just about having two bedrooms, but creating a versatile space that adapts to modern lifestyles. The loft area brings a sense of grandeur and flexibility that traditional floor plans often lack. It's the kind of design that allows families to grow, work from home, or entertain guests without feeling cramped. The beauty lies in its ability to provide privacy while maintaining open, airy spaces.
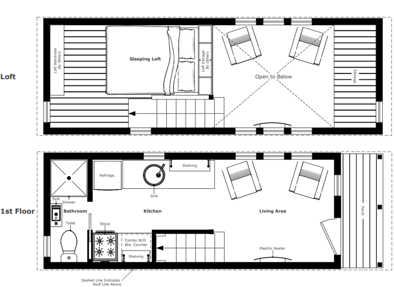
What Makes a Loft Special in 2 Bedroom Homes

A loft in a 2 bedroom house isn't just an extra room – it's a game changer. These elevated spaces add vertical dimension to your home, making it feel larger than it actually is. The key is how lofts can serve multiple purposes.
The trick is designing the loft with both function and aesthetics in mind. You want it to feel like a true part of your home, not just an afterthought. Consider the lighting carefully – natural light makes all the difference. And don't forget about safety features like proper railings and secure access points.
Popular Layouts and Design Styles

There are several ways to approach a 2 bedroom house plan with loft. Some designs feature a central loft area, while others integrate it into one of the bedrooms. Let's look at some common approaches:
The classic ranch-style layout works particularly well with lofts. The long, low profile naturally accommodates the extra height. Modern minimalist designs also shine with loft additions, keeping everything clean and uncluttered. Think of how a well-designed loft can make a small home feel like a mansion.
Space Optimization Tips

Maximizing every inch matters in a 2 bedroom house with loft. Here are some smart strategies:
One thing many homeowners forget is that the loft area needs to be comfortable year-round. That means good insulation, proper ventilation, and maybe even a small window for fresh air. The loft shouldn't feel like a cold attic – it should feel like a cozy extension of your living space.
Cost Considerations and Budget Planning

Building or remodeling a 2 bedroom house with loft can vary significantly in cost. The biggest factor is whether you're adding the loft to an existing home or building from scratch. Here's what to expect:
A typical 2 bedroom house with loft might cost between $200,000 and $400,000 depending on location and finishes. Factor in the loft area – it usually adds about 20% to the overall cost. However, the added value and functionality often justify the investment. Many people find that the extra space increases their home's resale value.
Practical Benefits for Families

Families benefit tremendously from 2 bedroom house plans with loft. Here's why:
Consider a young family with two kids. One child might use the loft as a creative space for art projects, while another uses it for quiet reading. The parents get their own private area too, perhaps a home office or relaxation space. It's about creating zones within one home that work for everyone.
Designing for Different Lifestyle Needs
Not all 2 bedroom house plans with loft are created equal. Your lifestyle should guide your decisions:
The key is to think about how you'll actually use the space. Will you want to host guests in the loft? Do you need it for storage? What activities will take place there? These questions help shape the final design. Sometimes, the most practical solution is the simplest one – a few well-placed windows and good lighting can make all the difference.
A 2 bedroom house plan with loft represents more than just architectural choice – it's a lifestyle decision. These homes offer the perfect balance of privacy and openness, function and beauty. Whether you're planning a new build or renovating an existing space, the loft area brings versatility that enhances daily life. The secret to success lies in thoughtful design that considers how you actually live, work, and play. When done right, a 2 bedroom house with loft becomes more than just a place to live – it becomes a reflection of your values and dreams. The key is to embrace the possibilities and let your personal style shine through every detail.