Picture this: you walk through your front door and immediately feel like you're entering a sanctuary. The open concept flows seamlessly from one area to another, while two separate master retreats provide privacy and peace. This isn't just a dream - it's becoming a reality for many homeowners seeking both functionality and elegance.
When it comes to home design, few layouts capture the imagination quite like the U-shaped floor plan with two master suites. These homes offer something special - they combine spaciousness with intimacy, creating a perfect balance between social areas and private retreats. Whether you're planning your next home purchase or designing a new build, understanding how these layouts work can make all the difference. What makes this particular configuration so appealing? Let's explore the nuances that make U-shaped designs with dual master suites stand out in today's housing market.

Understanding the U-Shaped Layout
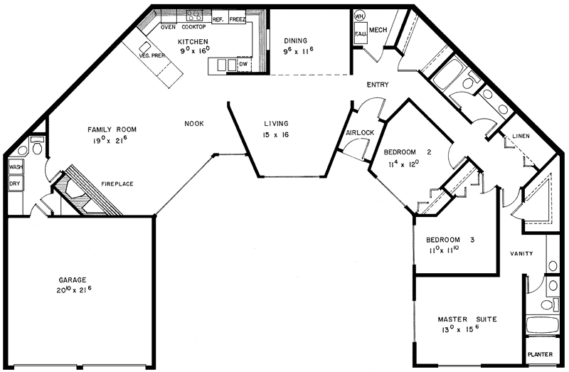
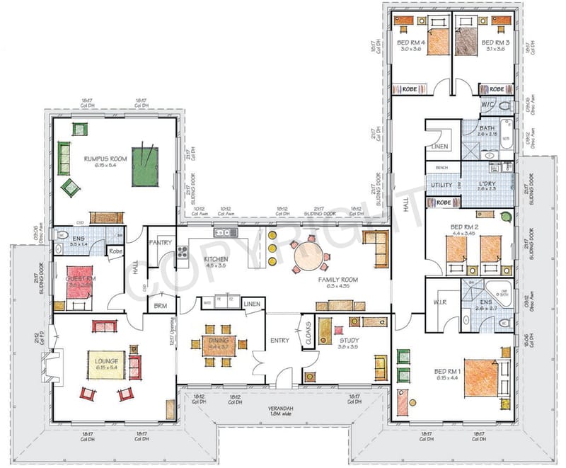
A U-shaped floor plan gets its name because the main living spaces form a curved or U-like shape when viewed from above. Think of it as three walls meeting at a central point, often creating a natural gathering area in the middle. This design allows for excellent traffic flow and creates distinct zones within the home. The beauty of this layout becomes even more apparent when you consider how it can accommodate two master suites - one on each side of the central hub. It's like having two separate worlds within one cohesive structure, each with its own character yet connected by shared spaces. The U-shape naturally separates the public areas from the private sleeping quarters, which is why it's so popular among families who want both togetherness and solitude.

Benefits of Dual Master Suites
Having two master suites offers numerous advantages that go beyond simple luxury. Consider the practical benefits first: imagine having separate bathrooms, walk-in closets, and private entrances for different family members. This arrangement works wonderfully for couples with different schedules or families with teenagers who need their own space. The psychological comfort of having your own retreat cannot be overstated. Many homeowners find that this setup reduces stress and increases overall satisfaction with their living situation. It's also ideal for multi-generational households where parents might prefer to stay close while maintaining their own privacy. The flexibility this provides is remarkable, especially when considering future needs like aging in place or accommodating guests.

Design Flexibility and Flow
One of the most appealing aspects of U-shaped floor plans with dual master suites is the incredible design flexibility they offer. The central area can serve as a family room, dining space, or kitchen hub, depending on your lifestyle preferences. The curved nature of the U-shape allows for creative solutions like built-in bookcases that follow the curve, or a breakfast bar that becomes the focal point. Natural light plays beautifully with these designs, especially when large windows are positioned strategically along the outer walls. The flow between spaces feels effortless, almost like walking through a well-orchestrated dance. Designers often utilize the central area to create visual interest while ensuring that both master suites maintain their sense of privacy and seclusion.

Practical Considerations and Challenges
Of course, no home design is without its challenges. One major consideration is the cost factor - U-shaped layouts with two master suites typically require more square footage and materials than standard designs. You'll also need to think carefully about plumbing placement, as having two full bathrooms requires careful planning. The structural requirements for this type of layout can be more complex, potentially affecting foundation costs. Another challenge involves maintaining consistent heating and cooling throughout the space. Some homeowners report that the central area can become a 'hot spot' during summer months. However, with proper HVAC planning and smart insulation choices, these issues are manageable. The key is working with experienced architects and builders who understand how to optimize these unique floor plans.

Popular Features and Amenities
Modern U-shaped homes with dual master suites often feature several standout elements that elevate the living experience. Walk-in closets that span the entire width of each suite are common, providing ample storage space. Many include sitting areas or reading nooks that offer quiet spaces within the larger suite. En-suite bathrooms frequently feature luxurious amenities like soaking tubs, separate showers, and double vanities. The central living area often includes features like a stone fireplace or built-in entertainment systems that bring everyone together. Some designs incorporate outdoor access directly from the master suites, allowing for seamless indoor-outdoor living. Smart home technology integration is also popular, with automated lighting, climate control, and security systems enhancing convenience and safety.
Choosing the Right Layout for Your Needs
Not every U-shaped floor plan will suit every family's needs. Before committing to this design, consider your lifestyle and priorities. If you value privacy and independence, the dual master suite approach offers excellent separation. For families with young children, the central gathering area provides a natural space for interaction. Couples who enjoy entertaining might appreciate the open concept that flows easily from kitchen to living areas. Consider the size of your lot and local building codes as well - some areas may have restrictions on certain architectural features. The orientation of your home relative to sun exposure and prevailing winds can significantly impact energy efficiency and comfort. Consulting with professionals who specialize in this type of design can help you make informed decisions that align with both your budget and your vision.
The U-shaped floor plan with two master suites represents more than just a design choice - it's a lifestyle statement. These homes offer the best of both worlds: spacious, connected living areas and intimate private retreats. While they do come with additional considerations regarding cost and complexity, the benefits often outweigh the challenges for those seeking premium living arrangements. Whether you're looking to buy or build, understanding the fundamentals of this layout helps you make confident decisions about your future home. The key is finding the right balance between your personal needs and the practical realities of construction and maintenance. With thoughtful planning and quality execution, a U-shaped home with dual master suites can truly become your dream sanctuary.