Imagine walking into a home that feels spacious and welcoming, even though it's only 1000 square feet. That's the magic of thoughtful floor planning. These compact homes aren't just about saving money or fitting into tight spaces. They're about creating intentional living experiences where every inch matters.
In a world where housing costs continue to rise and urban populations grow, 1000 square foot homes have become more than just a trend – they're a lifestyle choice. These smaller dwellings pack a punch when it comes to functionality and design. Whether you're downsizing, starting fresh, or simply want to live more efficiently, understanding how to maximize space within these constraints becomes crucial. Think about it: you have roughly the same amount of space as a typical studio apartment, but with the potential for more defined areas and better flow.
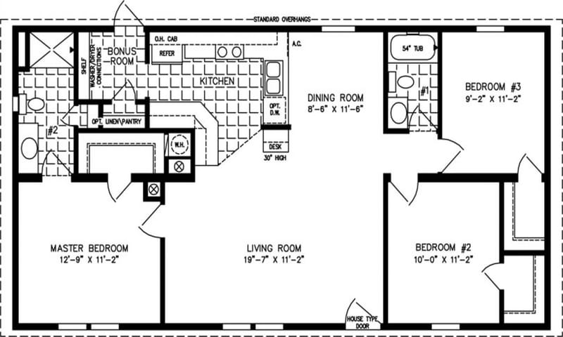
Understanding the Compact Layout

A 1000 square foot space might seem limiting, but it's actually quite versatile when planned properly. The key lies in understanding how to balance open areas with defined rooms. Consider that 1000 square feet equals about 30 feet by 33 feet – that's enough room for a kitchen, dining area, living space, bedroom, bathroom, and even a small office. But how do you make all of that work? It starts with thinking vertically and horizontally. Instead of traditional walls, consider using furniture arrangements, lighting, and color to create different zones. For example, a kitchen island can serve as a divider between cooking and dining areas while providing extra counter space.
Essential Room Configurations
When designing a 1000 square foot floor plan, certain layouts tend to work better than others. Here are some popular configurations:

Each arrangement offers unique advantages. An open concept allows for easy entertaining and keeps children safe during family activities. Split-level designs offer privacy while maintaining connection between spaces. Loft layouts can create dramatic focal points and additional storage opportunities.
Smart Storage Solutions
Storage is where 1000 square foot homes really shine or struggle. The trick isn't just about having more storage – it's about smart storage. Built-in shelving can double as room dividers while keeping items visible and accessible. Under-stair storage, window seat benches with hidden compartments, and multi-functional furniture pieces like ottomans with storage all play important roles. Consider how much storage you actually need versus how much you think you might want. You'll be surprised how much less stuff you really need once you start organizing strategically. A well-designed closet system can make the difference between feeling cramped and feeling spacious.

Lighting and Visual Flow
Lighting makes a huge difference in how spacious a room feels. Natural light is always best, but strategic artificial lighting can transform a small space. Layered lighting – ambient, task, and accent – creates depth and dimension. Picture windows, skylights, and light wells can make walls feel farther apart. Mirrors are powerful tools for creating the illusion of more space. They reflect light and give the eye something to follow. Think about how light moves through your space throughout the day. This helps you plan where to put important areas and how to connect different parts of your home.
Multi-Purpose Design Elements

In a 1000 square foot home, one room often serves multiple functions. A dining area might double as a workspace during the week. A living room could accommodate guests for overnight stays. The bedroom might also function as a quiet reading nook. This flexibility requires careful consideration of furniture choices and layout. Modular furniture that can be reconfigured easily is a game-changer. Consider whether a dining table can fold away when not in use, or if a coffee table can be moved to create a more open space. The goal is to maintain functionality while preserving the feeling of openness.
Practical Tips for Real Living
Here are some essential strategies that make 1000 square foot homes truly livable:

Remember, the most successful small homes aren't just about size. They're about intentionality. Every element should serve a purpose, and every decision should enhance the overall experience of living there.
Common Mistakes to Avoid
Many people approach small space design with the wrong mindset. They try to cram everything in, assuming that bigger is always better. This leads to clutter and stress. Other common errors include:
The biggest mistake is trying to recreate a larger home inside a smaller one. Instead, focus on creating distinct zones that serve their intended purposes without sacrificing flow. Think of your space as a canvas where each element contributes to the whole picture.
Designing a 1000 square foot home is both an art and a science. It requires understanding that less doesn't mean sacrifice – it means intentionality. When done right, these homes can feel surprisingly spacious and comfortable. The secret lies in thoughtful planning, smart choices, and accepting that sometimes simplicity is the most sophisticated approach. Whether you're building from scratch or renovating an existing space, remember that every square foot matters. The goal isn't to fill every inch with furniture, but to create a space that supports your lifestyle. After all, a home should make life easier, not more complicated. And in a 1000 square foot package, that's definitely possible.