A 2000 square foot home offers the sweet spot between spacious comfort and manageable maintenance. It's big enough to feel luxurious but small enough to keep costs reasonable. Whether you're planning your first home or upgrading your current space, understanding how to maximize every square foot matters.
When you think about housing, there's something special about 2000 square feet. It's not tiny, but it's not overwhelming either. This size gives families room to breathe while keeping utility bills reasonable and maintenance manageable. Think of it like finding the perfect pair of jeans - not too tight, not too loose, just right. Every inch counts when you're working within this space, and smart planning can make all the difference in how your home feels and functions.
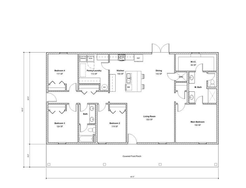
Understanding 2000 Square Foot Layouts
Breaking down a 2000 square foot home means looking at how you want to organize your daily life. Most layouts fall into three main categories:

Each approach has its own benefits. Open-concept spaces feel larger and more connected, great for entertaining. Traditional layouts offer privacy and clear boundaries between different activities. Minimalist designs prioritize function over form, creating clean, uncluttered spaces.
Consider how many people will live in your home and what their routines look like. A family with kids might need more open spaces for play and activity. Couples or empty nesters might prefer more intimate settings.
Popular Room Arrangements
Most 2000 square foot homes follow common room configurations that balance practicality and comfort. Here are the most effective setups:

One popular arrangement features a large open kitchen-dining-living area that serves as the heart of the home. This setup works well because it allows for easy interaction between family members and guests. The kitchen often becomes the center of social activity, especially during meal times and gatherings.
Another common approach puts bedrooms on one side of the house and living spaces on the other. This creates a quiet zone for sleeping and private activities, while keeping common areas accessible for daily routines.
Kitchen and Dining Considerations
The kitchen is often where families spend the most time together, so it deserves careful attention in any 2000 square foot plan. Here's what to consider:

Many homeowners find that a kitchen island provides both extra prep space and casual seating. It's a versatile element that can serve multiple purposes. Some people prefer a more formal dining area with a separate table, while others want something more casual and integrated with the kitchen.
Think about your cooking habits and how much food you typically prepare. Do you entertain frequently? Will you need space for guests to help cook? These factors influence whether you want a large island or a smaller, more intimate setup.
Bedroom and Bathroom Planning
Bedrooms and bathrooms are where you'll spend the most personal time, so getting them right matters. In a 2000 square foot home, you typically have room for:

A master bedroom suite with a private bathroom and walk-in closet is a luxury many people desire. But even smaller bedrooms can feel spacious and comfortable with good lighting and thoughtful design. Consider the height of ceilings and how natural light flows through the space.
For bathrooms, think about flow and convenience. A shared bathroom in the hallway works well for younger children or guests. However, having a dedicated bathroom for the master bedroom provides privacy and reduces morning rush conflicts.
Storage and Functional Spaces
Smart storage solutions make a huge difference in how manageable your 2000 square foot home feels. Here's how to think about it:

Many people overlook the importance of good storage until they start filling their home. That's when you realize how much space you actually need. Built-in storage isn't just about hiding things away - it's about creating visual harmony and maximizing usable space.
Consider whether you need a dedicated office or if a corner of the living room would work. Some families convert a spare bedroom into a study or creative space. Others prefer a home office that's part of the main living area, allowing for easy supervision of children or pets.
Maximizing Space Efficiency
With 2000 square feet, every square foot needs to earn its keep. Here are some strategies to get the most out of your space:
Sometimes the biggest gains come from simple changes. A room that can serve multiple purposes saves space and money. A dining room that can also function as a family room during the week and a party space on weekends gives you flexibility without extra cost.
Natural light makes a dramatic difference in how spacious a room feels. Large windows, skylights, and light-colored walls can make a small space feel much bigger than it actually is. Consider how you want to use each room throughout the day and night.
A 2000 square foot home offers incredible opportunities to build a space that truly fits your lifestyle. It's large enough to provide comfort and flexibility, but small enough to maintain manageable costs and upkeep. The key is thinking about how you want to live rather than simply focusing on square footage.
Remember that floor plans are just starting points. What matters most is how the space supports your daily routines, brings people together, and reflects your personal style. Whether you prefer open layouts, traditional arrangements, or something completely unique, the right design can transform your home from just a place to live into a true sanctuary.
Take time to visualize how you'll use each area. Consider not just today, but tomorrow and beyond. A well-thought-out 2000 square foot plan can be the foundation for years of happy memories and comfortable living.