When you're thinking about building or buying a home, the 3 bedroom 2 bathroom floor plan often stands out as that sweet spot between spaciousness and efficiency. It's not just about the numbers – it's about how those rooms come together to support your lifestyle. Whether you're planning a new build, remodeling an existing space, or simply dreaming about future living arrangements, understanding what makes these layouts special can save you time, money, and a lot of headaches.
Picture this: you've finally saved enough for a house, and you're ready to start planning the perfect place to call home. You've probably heard that 3 bedrooms and 2 bathrooms is the golden number for most families, but why exactly? It's not just some arbitrary rule – there's actually a reason these numbers resonate with so many people. Let's take a closer look at what makes 3 bed 2 bath home plans such a popular choice, and what you should consider when choosing one that fits your life.
Why 3 Bedrooms and 2 Bathrooms Work for Families
There's something magical about having three bedrooms in a home. It gives everyone their own space while keeping the family close together. Think about it – you've got a main bedroom for parents, and two additional bedrooms that can serve different purposes. One might be a kid's room, another could double as a study or play area, and the third might be a guest room that sees regular use.
The bathroom ratio strikes a perfect balance too. Two baths mean you don't have to wait in line to get ready in the morning, especially during busy school days. Having one full bathroom and one half-bath creates flexibility. The main bathroom can be your personal sanctuary, while the second one handles daily needs like quick morning routines and after-school cleanup.

This configuration works well for various family sizes and lifestyles. Whether you're raising young kids, caring for aging parents, or hosting friends regularly, this setup offers enough space to feel comfortable without being overwhelming.
Popular Layout Styles and Design Approaches
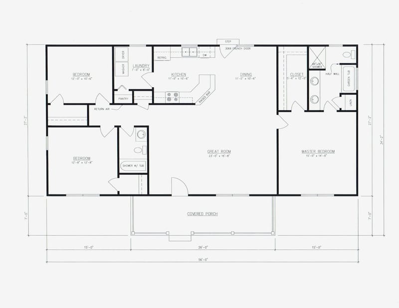
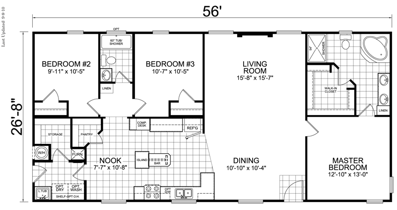
When it comes to 3 bed 2 bath homes, there are several classic layouts that have stood the test of time. The traditional front-to-back layout places the bedrooms along the back of the house, with the kitchen, dining, and living areas in front. This arrangement keeps the family areas quiet and private, while giving the bedrooms more natural light.
Another favorite is the side-by-side arrangement, where all three bedrooms sit next to each other. This is great for families with children who want to be close to each other. The master suite is usually positioned separately, often at the opposite end of the home for privacy.
Open concept designs are becoming increasingly popular. These homes blend the kitchen, dining, and living spaces into one large area. They're perfect for entertaining and create a sense of spaciousness that makes smaller homes feel larger.

Modern trends favor minimalism and smart storage solutions. Built-in cabinets, hidden pantries, and clever organizational systems help keep clutter at bay while maintaining clean lines. Many designers now incorporate multi-functional rooms that can change roles based on the season or family needs.
Key Considerations When Choosing a Layout
Not every 3 bed 2 bath plan is created equal. Here are some important factors to think about:
Consider your daily routine. If you work from home, you might need a dedicated office space. If you entertain often, you'll want a kitchen that flows into the living area. Think about whether you prefer a large master suite or a more modest bedroom that can serve multiple purposes.
Also factor in the local climate. Homes in hot regions benefit from cross ventilation, while cold climates need better insulation and heating distribution.

Space Optimization Tips for Smaller Homes
Even if you're working with a smaller footprint, a 3 bed 2 bath layout can still feel spacious with some smart planning. Multi-purpose furniture is your best friend. A dining table that folds away into a desk, or a sofa that converts to a guest bed, maximizes utility without sacrificing style.
Vertical storage solutions are game-changers. Tall bookcases that reach the ceiling, wall-mounted shelves, and even vertical garden walls can add visual interest while keeping things organized. These ideas help you make the most of every inch.
Consider the kitchen layout carefully. An island not only provides extra prep space but can also act as a casual breakfast bar. Open shelving in the kitchen brings items within easy reach while adding a touch of warmth.
Light colors and mirrors can make small spaces appear larger. Light wood tones, white walls, and strategic mirror placement all contribute to that airy feeling. Natural materials like stone, wood, and plants add character without overwhelming the senses.

Budget-Friendly Design Solutions
You don't need to break the bank to create a beautiful 3 bed 2 bath home. Here are some ways to save money without sacrificing quality:
Focus on the big ticket items first – the kitchen, bathrooms, and main living areas. These are where you spend most of your time, so investing in quality materials there will pay off in comfort and resale value.
Remember that sometimes less is more. A simple, clean design tends to be more timeless than overly decorated spaces that quickly go out of style.
Making Your Home Feel Personal and Comfortable

Ultimately, the best 3 bed 2 bath plan is one that feels like you. It's not just about square footage or number of rooms – it's about creating a space where you and your family truly thrive.
Start with your priorities. Do you love cooking? Then invest in a kitchen that inspires you. Are you a reader? Maybe you want a cozy reading nook. Do you enjoy entertaining? A welcoming entryway and open living areas will set the tone for gatherings.
Don't forget about outdoor spaces. Even a small patio or balcony can become a favorite spot for morning coffee or evening relaxation. Plants bring life to indoor spaces, and they don't require a lot of maintenance.
Personal touches matter. Family photos, heirloom pieces, and items that tell your story create a home that feels uniquely yours. These details make a space feel lived-in and loved rather than simply functional.
The key is to think about what makes your family happy and then build around those preferences. What matters most to you and your household? That should guide your decisions when choosing a 3 bed 2 bath home plan.
A 3 bed 2 bath home plan isn't just about having the right numbers – it's about crafting a space that supports your way of life. Whether you're looking to buy, build, or renovate, remember that the best floor plan is one that reflects your values and meets your practical needs. Take time to consider how you actually live, what makes you feel comfortable, and what your family requires. The right 3 bed 2 bath layout will make daily life easier and create lasting memories in your home. It's not just about the space itself, but how you fill it with purpose and joy. Every family's needs are different, so don't settle for a generic solution. Find the plan that makes you feel like you're coming home to somewhere you truly belong.