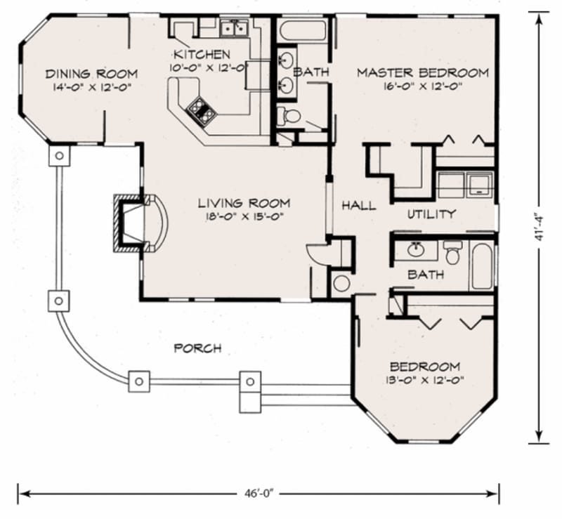
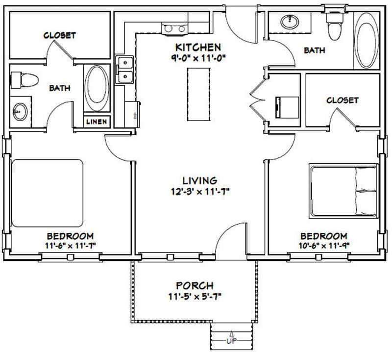
When it comes to home planning, few configurations capture the hearts of buyers quite like a well-designed 2 bedroom 2 bath house plan. These layouts offer just the right balance of space and efficiency, making them ideal for young families, first-time homeowners, or anyone seeking a comfortable living arrangement without the overwhelm of too many rooms.
Picture this: you're standing in a cozy kitchen, sunlight streaming through large windows, while the gentle hum of daily life fills the air. This isn't just any ordinary home - it's a thoughtfully designed 2 bedroom 2 bath house plan that balances comfort with functionality. These layouts have become increasingly popular because they address the real needs of modern families and individuals. Whether you're planning a new build, remodeling an existing space, or simply dreaming about your next home purchase, understanding what makes a good 2 bedroom 2 bath design is essential.
Understanding the Basics of 2 Bedroom 2 Bath Layouts

At its core, a 2 bedroom 2 bath house plan typically features two bedrooms and two bathrooms, with the possibility of additional spaces like a living area, dining room, or kitchen. The key to a successful layout lies in how efficiently these spaces work together. Think about it - every square foot counts when you're working within a limited footprint. The best designs maximize natural light, ensure privacy between bedrooms, and create flow between common areas. Many homeowners find themselves drawn to open-concept layouts that blend the kitchen, dining, and living spaces into one cohesive area. Others prefer more traditional arrangements where each room has its distinct purpose. What matters most is finding a configuration that suits your lifestyle and preferences.
Popular Design Styles for 2 Bedroom 2 Bath Homes
There's no one-size-fits-all approach when it comes to 2 bedroom 2 bath house plans. Different styles appeal to different tastes and needs:

Each style brings its own charm to the 2 bedroom 2 bath concept. The modern minimalist might feature a sleek kitchen with high-end appliances and a spacious master suite with walk-in closets. Meanwhile, a traditional family home could showcase hardwood floors, crown molding, and perhaps a formal dining room. The possibilities are endless, and the right choice often depends on your personal aesthetic and how you intend to use the space.
Essential Features to Look For
Not all 2 bedroom 2 bath house plans are created equal. Here are some must-have features that make a layout truly functional:

These elements combine to create homes that not only look beautiful but also serve their inhabitants well. A thoughtful kitchen island can double as a breakfast bar and provide extra seating. Ample closet space in both bedrooms prevents the stress of running out of storage. And cleverly placed windows can bring the outdoors in, making even small spaces feel larger.
Space Optimization Strategies
One of the biggest challenges in 2 bedroom 2 bath house plans is maximizing utility without sacrificing comfort. Here are some smart approaches:

The key is to think creatively about how you use space. Sometimes a small hallway can become a reading nook, or a tiny closet can house a full-size washer and dryer. These solutions require careful planning but can dramatically improve your quality of life.
Cost Considerations and Budget Planning
Building or buying a 2 bedroom 2 bath home involves several financial factors that deserve attention:

A realistic budget helps guide decisions throughout the process. It's wise to set aside 10-15% of your total budget for unexpected expenses. Remember, the cheapest option isn't always the best long-term investment. Quality materials and thoughtful design often pay dividends in reduced maintenance and increased resale value. Consider starting with a basic layout and adding upgrades later as your budget allows.
Practical Tips for Choosing the Right Plan
Selecting the perfect 2 bedroom 2 bath house plan requires both intuition and careful analysis:
Take time to walk through floor plans virtually or visit model homes if possible. Pay attention to how traffic flows through the space, where natural light enters, and how the rooms relate to each other. A well-thought-out plan will feel intuitive to navigate, even if you haven't seen it before. Trust your instincts, but also gather input from family members who will actually use the space.
The journey to finding the perfect 2 bedroom 2 bath house plan is both exciting and rewarding. Whether you're building your dream home from scratch or renovating an existing space, the key lies in balancing practical needs with personal preferences. Remember that the best layouts aren't necessarily the most expensive or the most complex - they're the ones that truly work for how you live. Take your time with the planning process, consider all your options, and don't hesitate to seek professional guidance when needed. With careful thought and attention to detail, you'll end up with a space that feels like exactly what you've been looking for. After all, your home should reflect not just your taste, but your life. So go ahead, explore those floor plans, visualize your perfect space, and start building the home that truly fits your story.