When it comes to home planning, few configurations capture the perfect blend of comfort and functionality quite like a 3 bedroom 2 bathroom floor plan. It's the golden middle ground that appeals to families, young professionals, and anyone looking for smart space utilization without feeling cramped. Whether you're building from scratch or renovating an existing space, understanding how to maximize every square foot in a three-bedroom, two-bathroom layout can transform your living experience.
Picture this: you're walking into your dream home, and everything feels just right. The bedrooms are spacious enough for privacy, the bathrooms offer comfort without being overwhelming, and the common areas flow seamlessly from one to another. That's exactly what a well-designed 3 bedroom 2 bathroom floor plan can deliver. These layouts have become incredibly popular because they strike that rare balance between having enough room for family life and keeping things manageable in terms of maintenance and heating costs. You'll find them in everything from single-family homes to townhouses and even some condos. But what makes them work so well? Let's break it down together.

Understanding the Basics
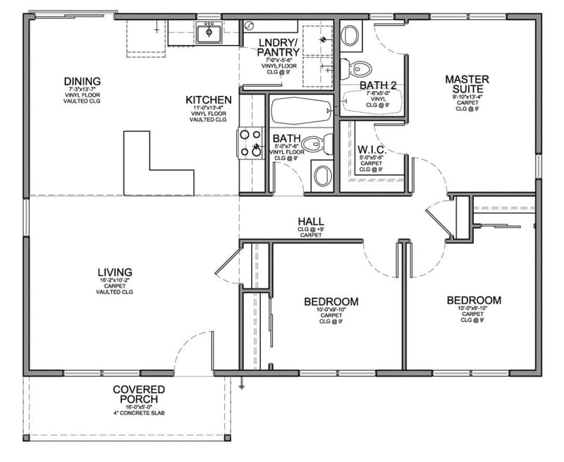
A 3 bedroom 2 bathroom floor plan means you have three separate sleeping spaces and two full bathrooms. This setup typically includes a master suite with its own private bathroom, and two additional bedrooms that might share a bathroom or have their own. The key to success lies in how you arrange these spaces to serve your lifestyle. Think about who will be using the house most often, what activities happen during different times of day, and how much privacy each family member needs. For instance, if you have teenagers, you might want to place their bedrooms away from the master suite. If you work from home, you'll probably want a dedicated workspace that doesn't interfere with family time. These aren't just numbers on paper – they represent real-life decisions about how you want to live.

Popular Layout Styles
There are several classic arrangements that architects and designers love to work with when creating 3 bedroom 2 bathroom floor plans. The most common style is the L-shaped layout, where the bedrooms form one side of the home and the kitchen and living areas take up the other. Another favorite is the linear arrangement, where rooms flow in a straight line from front to back. Some homeowners prefer a central hub approach, where the main living areas are in the middle with bedrooms branching off on either side. Each style has pros and cons. The L-shape offers good separation between public and private spaces, while the linear layout maximizes natural light. The central hub gives everyone easy access to shared areas. Consider which works best with your lot size, local climate, and personal preferences.

Master Suite Considerations
The master bedroom is often the crown jewel of a 3 bedroom 2 bathroom floor plan. It deserves special attention because it's typically where you spend the most time relaxing and unwinding. A good master suite usually includes a generous closet, ideally with built-in storage solutions, and a private bathroom with features like a soaking tub or separate shower. Some people add a walk-in closet or even a small sitting area. When planning the master suite, consider how you want to use the space. Do you need a desk for working from home? Would a reading nook be perfect? These details make all the difference in creating a truly comfortable retreat. Remember, this isn't just about square footage – it's about quality of life.

Bathroom Design Tips
Two bathrooms in a 3 bedroom home offer flexibility that many people overlook. One bathroom can be designed for daily use with quick access from the main living areas, while the second might be more luxurious and suitable for special occasions. When designing these spaces, think about traffic flow. The main bathroom should be easily accessible to multiple family members, while the secondary bathroom might be better tucked away for privacy. Consider using similar materials throughout to create a cohesive feel, but allow each bathroom to have its own character. For example, the master bathroom might feature high-end finishes, while the guest bathroom could focus on clean lines and practicality. The key is balancing uniformity with individual personalities.

Space Optimization Strategies
Maximizing every inch in a 3 bedroom 2 bathroom floor plan requires some creative thinking. Smart storage solutions can make a huge difference – think vertical storage, hidden compartments, and multi-functional furniture. For example, a hallway can double as a storage area with built-in shelves, or a spare room can serve as a home office that converts into a guest room. Sometimes, the smallest changes make the biggest impact. A sliding door instead of a hinged one can save valuable space, while a Murphy bed can turn a guest room into a full bedroom when needed. These aren't just tricks – they're practical solutions that help families make the most of their available space.
Practical Design Considerations
Beyond aesthetics, there are several practical factors that influence how a 3 bedroom 2 bathroom floor plan works in real life. Natural lighting is crucial – aim to position windows strategically to bring in as much sunlight as possible. The kitchen and dining area should flow naturally into the living room, especially if you entertain guests regularly. Consider how you move through the house daily. Will you need to carry groceries from the garage to the kitchen? Does the laundry room need to be near the bedrooms? These aren't just theoretical questions – they're about making your life easier. Also, remember that the bathroom closest to the bedrooms often becomes the most used, so it should be both functional and convenient. Making thoughtful choices early in the planning process saves headaches later on.
A 3 bedroom 2 bathroom floor plan represents more than just measurements on paper – it's about crafting a space that supports your lifestyle and grows with your needs. Whether you're planning a new build, remodeling an existing home, or simply trying to optimize your current layout, the principles remain the same. Focus on flow, prioritize functionality, and remember that the best designs are those that make everyday life easier and more enjoyable. With careful planning and attention to detail, your 3 bedroom 2 bathroom home can become the perfect sanctuary for family life, work-from-home needs, or whatever path you choose to follow. The key is understanding that good design isn't about following trends – it's about creating a space that feels uniquely yours.