When you're planning a new home or considering a move, the layout of your living space matters more than you might think. A well-designed 3 bedroom 2 bathroom floor plan can transform your daily routine, enhance family life, and even increase your home's value. Whether you're a growing family, a young professional looking for space, or someone who values privacy, understanding how to maximize every square foot is crucial. These layouts aren't just about having three bedrooms and two bathrooms – they're about creating functional spaces that work for your lifestyle.
A 3 bedroom 2 bathroom floor plan represents one of the most popular and versatile home designs in modern housing. It strikes that sweet spot between spaciousness and efficiency, offering enough room for families while remaining manageable in terms of maintenance and cost. Think about it – three bedrooms mean you can accommodate children, guests, or a home office, while two bathrooms ensure everyone has their own space without constant scheduling conflicts. The beauty of these layouts lies in their flexibility. You can adjust the size and positioning of rooms to suit your needs, whether you prefer a master suite with a walk-in closet or a more open-concept living area. This guide will walk you through everything from basic layout options to practical considerations that make these floor plans work for real people in real situations.
Understanding the Basic Structure
At its core, a 3 bedroom 2 bathroom floor plan is built around a central concept: maximizing utility while maintaining comfort. The typical configuration usually features a main living area, often connected to a kitchen or dining space, with bedrooms arranged strategically around it. Most common arrangements include:
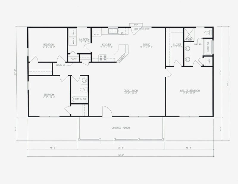
The key to a successful floor plan isn't just the number of rooms, but how they connect to each other. For instance, having the master bedroom on the opposite side of the house from the other two bedrooms creates better privacy. This kind of strategic placement means you can have your kids' bedrooms on one side and your parents' guest room on the other, all while keeping the main living areas easily accessible to everyone. Many homeowners find that this type of arrangement makes morning routines smoother, especially when you have young children or elderly family members.

The bathroom placement also plays a significant role. When one bathroom sits near the bedrooms and another near the main living area, it creates natural traffic flow and reduces congestion during busy times. Consider how you move through your home daily – do you prefer a more open feel, or do you value privacy? These choices shape how you'll want to lay out your space.
Popular Layout Variations
There's no single "right" way to arrange a 3 bedroom 2 bathroom home, but certain patterns have proven particularly effective for different lifestyles:
Open Concept Style: This approach removes walls between the kitchen, dining, and living areas, creating a seamless flow. The result is a home that feels larger than its actual dimensions. In this style, the master suite typically sits at the far end of the house, away from the main activity zones. This setup works beautifully for social families who entertain frequently, allowing the cook to interact with guests while preparing meals. The downside is that noise from the kitchen can travel to the bedrooms, so soundproofing becomes important.
Traditional Separated Design: Here, the kitchen and dining area are separate from the living spaces, often with a hallway separating them. Bedrooms are grouped together on one side of the house, with the bathrooms positioned to serve them directly. This layout offers more privacy and control over sound levels. It's ideal for families with teenagers or anyone who values quiet mornings and peaceful evenings.

Split-Level Arrangement: Some homes feature a split-level design where the bedrooms are on one level and the main living areas on another. This can be especially useful in homes with sloped lots or basement levels. The master bedroom often sits on the upper level, providing additional privacy and views. However, it may require more stair climbing for some family members.
Multi-Story Options: Two-story designs allow for more efficient use of vertical space. The upstairs typically houses the bedrooms and bathrooms, while the downstairs contains the main living areas. This arrangement is excellent for families who want to keep the main level more accessible for guests and daily activities. It also helps separate private family time from public areas.
Space Optimization Strategies
Maximizing every inch of your 3 bedroom 2 bathroom floor plan requires smart thinking about how you use space. Here are some effective approaches:
These strategies aren't just about making your home look nice – they're about making your life easier. When you can find what you need quickly and efficiently, you save time and reduce stress. Think about your daily routine and plan accordingly. If you're a morning person, maybe position your master suite near the front of the house. If you work from home, consider placing your office near the entrance so you can quickly transition between personal and professional spaces.

Bathroom Planning Considerations
The bathroom configuration in a 3 bedroom 2 bathroom floor plan deserves careful thought because these spaces are used frequently and need to balance functionality with comfort.
Main bathroom placement typically serves the master bedroom and should include features like a separate shower and bathtub, double vanities, and adequate storage. This bathroom often becomes a retreat where you can relax after a long day.
Secondary bathroom usually serves the other bedrooms and should prioritize convenience and efficiency. It might feature a smaller tub or a combination shower/bath unit, depending on space constraints and budget.
Key considerations include:

Many homeowners overlook the importance of proper lighting in bathrooms. Natural light is great, but good artificial lighting – especially around mirrors – can make a huge difference in daily routines. A dimmer switch allows you to adjust the atmosphere for different activities. Also, don't forget about storage. Even small bathrooms can benefit from clever solutions like medicine cabinets with extra shelving or corner shelves that maximize unused space.
Practical Tips for Different Life Stages
As your family grows and changes, your 3 bedroom 2 bathroom floor plan needs to adapt. Here's how to think about it:
For young families: Prioritize safety and accessibility. Keep the third bedroom as a flexible space that can become a playroom, study, or guest room. Consider having a small bathroom near the kids' bedrooms for easy nighttime access.
For empty nesters: The master suite might benefit from upgrades like a spa-like bathroom or a dedicated sitting area. The third bedroom could become a hobby room or fitness area.

For multi-generational households: You might need to reconfigure how the bedrooms are used. Perhaps the master bedroom becomes a guest suite, while the other bedrooms are designed for adult children or aging parents.
For downsizers: These floor plans often work well for people moving to smaller homes or retirement communities. The layout can be adapted to focus on essential spaces and eliminate unnecessary areas.
The most important thing is to consider what's realistic for your current situation and what might change in the next few years. If you're planning to have more children, perhaps invest in a room that can easily be converted into a nursery. If you're working from home, make sure your office space is quiet and private. These decisions can be made early, but they're worth revisiting periodically as circumstances shift.
Cost and Value Factors
Building or renovating a 3 bedroom 2 bathroom home involves several financial considerations. The cost varies significantly based on location, materials, and complexity of the design:
However, these investments typically pay off in resale value. Homes with well-designed 3 bedroom 2 bathroom layouts often sell faster and for higher prices than those with fewer bedrooms or bathrooms.
Consider these factors when planning:
The key is balancing your immediate needs with long-term value. Sometimes investing in high-quality materials upfront saves money later in repairs and replacements. For example, choosing durable flooring that matches your lifestyle can prevent costly updates down the road. Also, remember that the best floor plan isn't necessarily the cheapest one – it's the one that fits your life and supports your family's needs.
A 3 bedroom 2 bathroom floor plan isn't just about numbers and measurements – it's about creating a space that reflects your lifestyle and meets your family's evolving needs. The right layout can make mornings easier, provide privacy when you need it, and offer flexibility as your life changes. Whether you're building a new home or remodeling an existing one, taking time to think through the details pays dividends in daily comfort and long-term satisfaction. Remember, there's no one-size-fits-all solution. What matters most is finding a design that works for you today and can grow with you tomorrow. The investment you make in thoughtful planning now will influence your daily experiences for years to come. So take your time, consider all the possibilities, and choose a layout that makes your life better rather than more complicated. After all, your home should support your happiness, not get in the way of it.