When you're working with 1800 square feet, every inch matters. This isn't just about fitting furniture in a space – it's about creating a home that feels spacious, functional, and truly yours. Whether you're buying your first place, downsizing, or simply looking to optimize your current layout, understanding how to maximize this size can transform your living experience.
Imagine walking into a house that feels perfectly sized for your life. Not too cramped, not too empty, just right. That's what 1800 square feet offers – a sweet spot that balances comfort with efficiency. It's large enough to have multiple rooms, yet small enough to feel cozy and manageable. Think of it as the Goldilocks zone of housing sizes, where you get the best of both worlds. This size category is increasingly popular because it strikes that perfect balance between space and cost, making it ideal for families, couples, and even solo dwellers who want room to breathe without the burden of excessive maintenance.

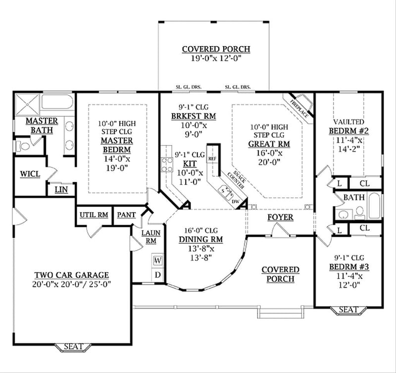
Understanding the 1800 Square Feet Layout
Breaking down 1800 square feet into practical layouts helps you visualize what's possible. A common approach divides this space into three main zones: living areas, sleeping spaces, and utility areas. The living areas typically span around 600-700 square feet, which could include a combined living and dining area or separate rooms. Bedrooms generally take up 400-500 square feet total, with one or two bedrooms often being the sweet spot for most households. The remaining space handles kitchens, bathrooms, hallways, and storage. For example, a typical 1800 square foot home might feature a 20x20 great room, two 12x12 bedrooms, a 10x12 kitchen, and 200 square feet of bathrooms and hallways. This kind of breakdown makes it easier to picture how different layouts work in practice.

Essential Design Principles
Smart design choices can make or break your 1800 square foot experience. Open floor plans are particularly effective because they create visual space and allow for flexible use of rooms. Consider using light colors on walls and ceilings to amplify the feeling of spaciousness. Built-in storage solutions like shelving, cabinets, and drawers help keep clutter out of sight while maximizing usable space. Multi-functional furniture such as ottomans with storage or Murphy beds can serve multiple purposes. A well-thought-out layout can make a 1800 square foot home feel much larger than its actual measurements suggest. These principles aren't just about aesthetics – they're about making your daily routine more pleasant and efficient.

Room-by-Room Optimization Strategies
Each room in a 1800 square foot home deserves careful consideration. The living room should be designed as the heart of the home, with enough space for conversation and entertainment. A kitchen that's too small can create stress during meal prep, so aim for at least 10x12 feet of cooking space. Bedrooms benefit from good lighting and thoughtful organization – consider walk-in closets if space allows. Bathrooms, though smaller, should still offer privacy and functionality. Storage is crucial in compact spaces, so utilize vertical space with tall shelves and under-stair storage. For instance, a cleverly designed pantry in the hallway can provide easy access to groceries without taking up precious kitchen space.

Popular Layout Configurations
There are several tried-and-true layouts that work well within 1800 square feet. The open-concept style combines living, dining, and kitchen areas into one flowing space, creating a sense of expansiveness. The traditional layout separates these areas into distinct rooms, which works well for those who prefer defined spaces. A split-level design can add visual interest while maintaining good flow between rooms. Some homes feature a master suite with attached bathroom and walk-in closet, freeing up other bedrooms for guests or children. Another popular arrangement places the kitchen and dining area adjacent to a living room, creating a natural flow for family gatherings and social events. These configurations show how creativity and smart planning can make even modest square footage feel luxurious.

Storage Solutions That Actually Work
Storage challenges are common in 1800 square foot homes, but there are smart ways to tackle them. Vertical storage solutions like tall bookcases and wall-mounted shelves can dramatically increase storage capacity without eating into floor space. Under-bed storage containers are perfect for seasonal items and extra bedding. Kitchen cabinets should extend to the ceiling to maximize vertical storage. Consider hidden storage options like built-in benches with storage underneath or hollowed-out furniture pieces. For example, a hallway with built-in shelving can store everything from coats to books without requiring additional furniture. The key is to think beyond obvious storage locations and find creative spots throughout the home.
Making the Most of Natural Light
Natural light transforms a 1800 square foot home from merely adequate to absolutely welcoming. Large windows, skylights, and glass doors can dramatically brighten interior spaces. Light-colored flooring and walls reflect light better than dark tones, making rooms appear larger and more airy. Consider how sunlight moves through your home throughout the day when positioning furniture and selecting window treatments. A south-facing living room gets plenty of morning sun, while east-facing bedrooms benefit from gentle sunrise light. The strategic placement of mirrors can also bounce light around the space, making even small rooms feel brighter and more open. When you're designing or reconfiguring a 1800 square foot home, never underestimate the power of light to improve the overall feel of your living environment.
The journey to mastering 1800 square feet isn't about doing less – it's about doing more with what you have. This size gives you enough room to express yourself, create comfortable living spaces, and build a home that truly suits your lifestyle. Whether you're planning a new construction, renovating an existing space, or simply rearranging your current home, remember that thoughtful design and smart choices can make all the difference. The goal isn't to fill every corner with furniture – it's to create intentional spaces that enhance your daily life. With the right approach, 1800 square feet becomes not just a limitation, but a canvas for building the perfect home that works for you.