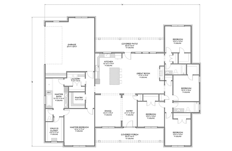
When you're planning your dream home, few layouts capture the balance between comfort and functionality quite like a 5 bedroom 3 bath floor plan. Whether you're hosting family gatherings, working from home, or simply enjoying quiet moments with loved ones, these designs offer something special. They're versatile enough for growing families, perfect for multi-generational living, and practical for those who love entertaining guests. But what exactly makes a great 5 bedroom 3 bath layout? Let's explore.
A 5 bedroom 3 bath floor plan isn't just about numbers on paper – it's about creating spaces that reflect your lifestyle and meet your family's needs. These homes typically offer generous room counts that allow for privacy, flexibility, and comfort. You might find yourself using one bedroom as a home office, another as a guest room, while still having space for kids' play areas or a cozy family room. The challenge lies in designing each area to work together seamlessly. Think of it as creating a symphony of rooms rather than just individual spaces. What matters most isn't just the size, but how well each part flows into the next. A good floor plan should feel effortless, even when you're juggling multiple activities at once.
Understanding the Basics of 5 Bedroom 3 Bath Layouts

At its core, a 5 bedroom 3 bath floor plan means you have five separate sleeping areas and three full bathrooms. This setup works wonderfully for families with children, elderly parents, or anyone who values personal space. The key is understanding how to balance the different zones effectively. For example, bedrooms can be grouped together for privacy, or scattered throughout the house for convenience. Some layouts feature a main suite with private bathroom, while others distribute bathrooms more evenly across the home. Consider how many people will actually live there and what their daily routines look like. Will you be working from home? Do you entertain often? These questions help shape the best configuration.
Popular 5 Bedroom 3 Bath Floor Plan Styles
There are several common styles that architects and designers favor when creating 5 bedroom 3 bath layouts:

Each style brings different benefits. Traditional layouts offer easy navigation, while open concepts create a sense of spaciousness. Separated wings can be ideal for multi-generational households, and split-level designs add architectural interest and practicality.
Key Features to Look for in a Good Layout
A solid 5 bedroom 3 bath floor plan includes several essential elements:

The kitchen, in particular, deserves special attention. It's often the heart of the home, so it should be both beautiful and practical. A good kitchen layout considers workflow, appliance placement, and adequate counter space. Storage should be easily accessible and thoughtfully designed to prevent clutter.
How to Optimize Space in Your 5 Bedroom 3 Bath Home
Maximizing space in a 5 bedroom 3 bath floor plan requires smart thinking and strategic planning. Here are some ways to make every square foot count:

Think about how you want to use each room. Are you planning to host dinner parties regularly? Then maybe a large dining area with a breakfast nook makes sense. Or perhaps you need a quiet workspace away from the hustle and bustle of daily life. The right layout supports your lifestyle choices.
Cost Considerations When Planning Your Home
Building or buying a 5 bedroom 3 bath home involves various costs beyond the basic purchase price. These include:

Keep in mind that while bigger homes cost more, they can also appreciate in value faster than smaller ones. However, always factor in maintenance costs too. More bathrooms, larger kitchens, and extra bedrooms all require ongoing upkeep. Budget accordingly for future repairs, renovations, and upgrades.
Real-World Examples and Inspiration
Looking at actual 5 bedroom 3 bath floor plans can give you a clearer picture of what's possible. Here are some inspiring examples:
These examples show how the same basic layout can be transformed through different aesthetics. The key is choosing a style that fits your personality and lifestyle. Don't let the numbers intimidate you – a well-designed 5 bedroom 3 bath home can feel intimate and welcoming, regardless of its size.
A 5 bedroom 3 bath floor plan offers incredible flexibility and potential for creating a home that truly works for you. Whether you're planning a new build or looking to renovate, remember that the best layout is one that reflects your daily life and future needs. Focus on flow, functionality, and personal touches that make each space feel intentional. Don't overlook the importance of light, air circulation, and natural views – these elements transform a good house into a great place to live. Take time to think about how you want to use your space, what features matter most to you, and what kind of atmosphere you want to create. With careful planning and thoughtful design, your 5 bedroom 3 bath home can become a true sanctuary that grows with your family over time.