Every family deserves a home that fits their lifestyle perfectly. When you're thinking about building or buying a house, the layout becomes crucial. A 4 bedroom 3.5 bath house plan isn't just about having enough rooms - it's about creating spaces where memories happen. These homes offer that sweet spot between comfort and functionality, giving families room to breathe while maintaining practical design elements.
Picture this: you're walking into your new home after a long day. The open kitchen flows into the living area, your kids have their own private space, and everyone has easy access to bathrooms. That's exactly what a well-designed 4 bedroom 3.5 bath house plan can deliver. These layouts aren't just popular for good reason - they've proven themselves time and again as ideal for growing families, empty nesters, or anyone who values both privacy and togetherness. Whether you're planning to build or simply want to understand what makes these designs work so well, this guide will walk you through everything you need to know. We'll cover everything from basic floor plan layouts to practical considerations that make or break a home's success.
Understanding the Basics of 4 Bedroom 3.5 Bath Layouts

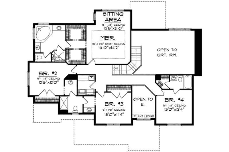
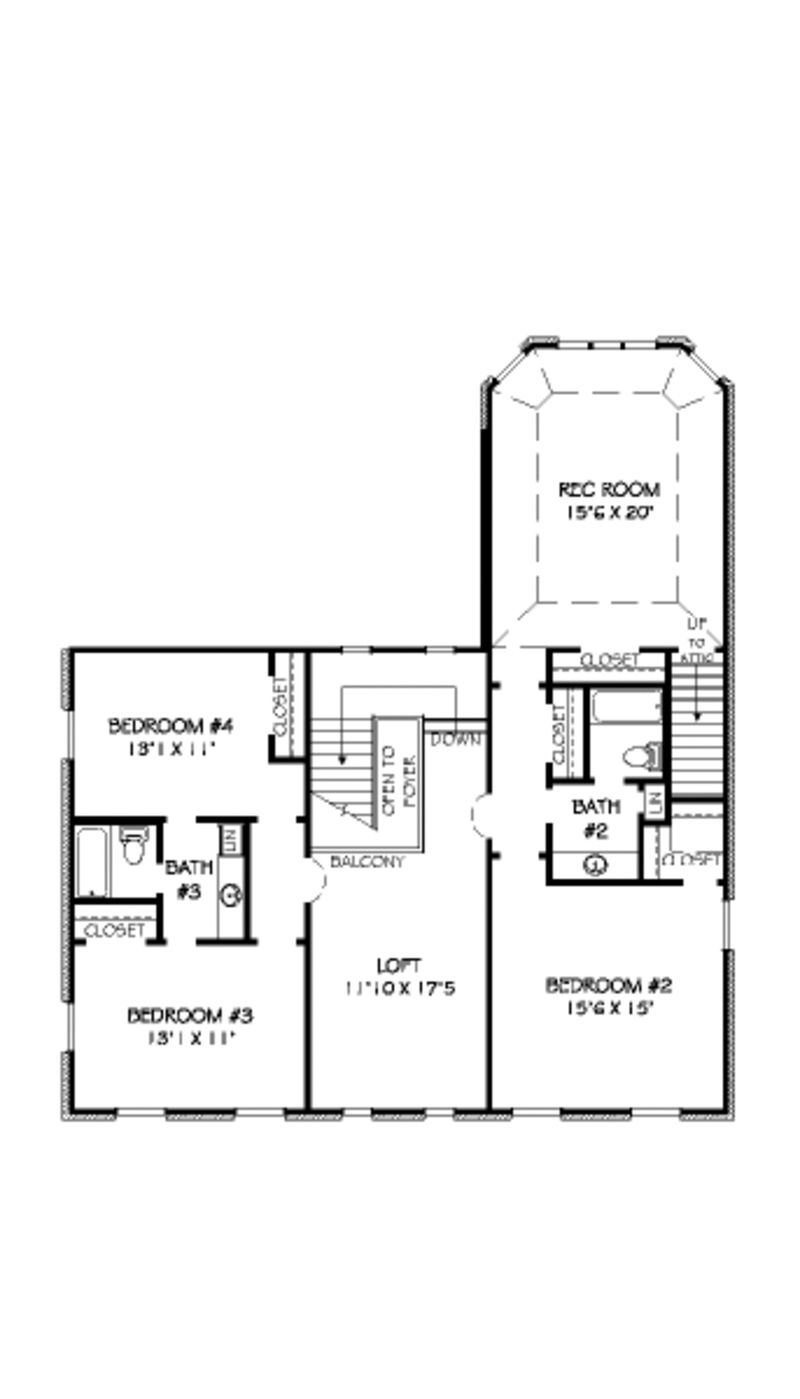
A 4 bedroom 3.5 bath house plan means four bedrooms and three and a half bathrooms. The half bath typically serves guests or provides easy access for visitors. But here's the thing - it's not just about counting rooms. The real magic happens when you consider how those spaces connect and function together. Think of it like a symphony. Each room plays its part, but they all need to work in harmony. The master suite often takes center stage, usually featuring its own bathroom and walk-in closet. Then there's the shared bedroom space for younger children, and maybe a guest room or home office tucked away. What makes these plans special is their flexibility. They accommodate different family needs while still feeling cohesive. Some designs put the master suite on one side of the house, others prefer it in the middle. It really depends on your lifestyle and what matters most to you.
Popular Floor Plan Configurations
There are several ways to arrange a 4 bedroom 3.5 bath house plan, each with unique benefits:

Each style brings different advantages. Which one suits your family best? Consider your daily routines, how much privacy you need, and whether you entertain frequently. Sometimes a simple change in orientation can transform your entire experience in the house.
Key Features That Define Quality 4 Bedroom Homes
Not every 4 bedroom 3.5 bath plan is created equal. Here are the standout features that make a difference:

These features don't just make a house feel nice - they make it work better for your life. When you think about what matters most, these elements often become deal-breakers.
Bathroom Considerations and Trends
The bathrooms in a 4 bedroom 3.5 bath house plan deserve attention too. Here's what you should know:

Think of bathrooms as retreat spaces. They should feel refreshing, not cramped or outdated. The right choices here can increase your home's appeal and value.
Practical Design Tips for Maximum Functionality
Here are some real-world tips that make a huge difference:

These aren't just suggestions - they're strategies that make houses feel lived-in rather than designed. Every detail matters, from the placement of outlets to the height of cabinets.
Cost Considerations and Value Factors
Building or buying a 4 bedroom 3.5 bath house plan involves more than just the price tag. Here's what affects cost:
Remember, the cheapest option isn't always the best investment. Sometimes spending a little extra upfront on smart design pays dividends down the road. Consider what features matter most to you and prioritize accordingly. Your budget should support your lifestyle, not limit it.
Choosing the Right Plan for Your Family
This is where things get personal. No two families are alike, so no single plan fits everyone perfectly. Ask yourself:
Don't rush into decisions. Take time to walk through different layouts, talk to professionals, and imagine your life in each space. Sometimes the most practical choice isn't obvious at first glance. The right plan should feel like a natural extension of who you are and who you want to become.
A 4 bedroom 3.5 bath house plan represents more than just square footage - it's about creating a space where life happens naturally. Whether you're building a new home or renovating an existing one, understanding the nuances of these layouts empowers you to make informed decisions. The key isn't just having enough rooms, but designing spaces that support your family's unique rhythm. From the flow of traffic to the placement of bathrooms, every element contributes to your daily happiness. The right design considers not just today's needs but tomorrow's possibilities. Remember, a house is more than shelter - it's a foundation for memories, relationships, and personal growth. Choose wisely, and you'll find that the investment in thoughtful design pays off in countless small moments of joy and practicality. Your perfect 4 bedroom 3.5 bath home is waiting to be designed, built, or discovered.