Every home tells a story, and the floor plan is the first chapter. For many families and individuals, the two-bedroom, one-bath layout represents the sweet spot between comfort and efficiency. It's not just about square footage—it's about how every inch works for you. Whether you're planning a new build or reimagining your current space, understanding how to optimize this classic layout can transform your daily routine and overall living experience.
When it comes to housing layouts, few configurations capture the balance between practicality and comfort quite like the two-bedroom, one-bath floor plan. This setup isn't just about having two bedrooms and a bathroom—it's about creating a functional living environment that supports your lifestyle. Think about it: you have enough space for guests, family members, or even a home office, while maintaining an efficient flow that makes daily tasks simple. The key lies in thoughtful design choices that maximize utility without sacrificing aesthetics or comfort. Whether you're a young professional, a growing family, or someone looking to downsize smartly, this layout offers versatile solutions for modern living.

The Foundation of Functionality
At its core, a well-designed two-bedroom, one-bath floor plan prioritizes function over form. The kitchen, dining area, and living spaces should flow naturally together, creating a seamless transition between social and private areas. Consider how often you'll move through different rooms during a typical day. A kitchen that opens directly to a living room or dining area makes meal preparation and cleanup much easier. You might also want to think about the positioning of your bathrooms and bedrooms. Often, placing the primary bedroom and bathroom near each other creates a peaceful retreat, while the secondary bedroom can serve as a guest room or study. These decisions shape not just the look of your home, but how you live in it. Sometimes, small changes in layout can make a huge difference in daily life.

Maximizing Space Through Smart Design
Space isn't always about size—it's about how you use it. In a two-bedroom, one-bath layout, every square foot counts. That's why smart design choices become crucial. Consider using multi-functional furniture like storage ottomans or Murphy beds that can be tucked away when not in use. Built-in shelving can provide extra storage while keeping the visual clutter minimal. Open-concept layouts are popular because they make smaller spaces feel larger. However, don't overlook the power of strategic room division. Using half walls or decorative screens can create distinct zones within a single space without completely separating areas. Another clever trick is utilizing vertical space—tall bookcases, high ceilings, or even lofted areas can add usable space while maintaining the sense of openness. When planning your layout, ask yourself: what activities happen in each room, and how can those activities work together?

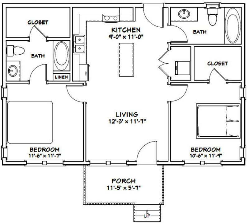
Bathroom Planning and Placement
The bathroom may be small, but it's often one of the most important rooms in your home. In a two-bedroom, one-bath floor plan, the placement and design of this space significantly impacts daily routines. Ideally, the main bathroom should be centrally located to minimize walking distance for all household members. But if space constraints exist, consider placing it near the primary bedroom for privacy and convenience. For smaller bathrooms, maximizing efficiency means careful consideration of fixtures. A compact shower/tub combo might save space, while a walk-in shower could provide luxury without taking up too much room. Storage is also critical—think about where towels, toiletries, and other items will go. A well-planned bathroom can make morning routines more pleasant and reduce stress in the household. Sometimes, investing in quality fixtures pays off in both daily usability and long-term satisfaction.

Bedroom Layouts That Work
Your bedrooms are personal sanctuaries, and their layout should reflect your individual needs. In a two-bedroom, one-bath configuration, the primary bedroom usually gets priority in terms of size and location. This room should offer privacy and comfort, ideally with access to a private bathroom or at least a shared space that feels separate. The secondary bedroom can serve multiple purposes—guest room, home office, or children's play area. Consider the flow of traffic when designing bedroom layouts. You don't want to walk past a sleeping area every time you enter the house. Also, think about lighting and natural views. Bedrooms with good light and fresh air tend to be more restful and energizing. Some people prefer a quiet corner for reading or working, while others might need a space that can accommodate a full-size bed and additional furniture. The key is matching the layout to your lifestyle.

Kitchen and Living Area Integration
In a two-bedroom, one-bath home, the kitchen and living areas often serve as the heart of the house. These spaces should connect naturally, allowing for easy conversation and interaction. An open kitchen design can make cooking feel less isolated and more social. If you enjoy entertaining, consider a breakfast nook or island that encourages guests to join in the action. The living room should flow seamlessly into these areas, perhaps through a hallway or doorway that allows movement between spaces. Storage solutions in these areas are important—they should be both functional and aesthetically pleasing. Think about how you use these spaces regularly. Do you cook frequently? Do you host gatherings? Understanding your habits helps determine whether you need a large kitchen island or simply a cozy dining area. Sometimes, the simplest arrangements work best for busy lifestyles.
Practical Tips for Customization
Every home is unique, and your two-bedroom, one-bath floor plan should reflect that uniqueness. Start by listing your priorities—what matters most to you in your daily routine? Perhaps it's a dedicated workspace, a quiet reading nook, or a place for guests to feel comfortable. Once you've identified these needs, you can begin customizing your layout accordingly. Consider flexible spaces that can change with your needs over time. A room that doubles as a guest bedroom might later become a home gym. Don't forget about lighting—natural light versus artificial can dramatically affect how a space feels. Adding window seats, reading corners, or even a small sitting area can make a significant difference. Finally, remember that some flexibility in layout is okay. Sometimes, the most successful homes are those that evolve naturally over time rather than being rigidly planned from the start.
Designing a two-bedroom, one-bath floor plan isn't just about drawing lines on paper—it's about creating a living space that truly supports your life. Every element, from the placement of the bathroom to the flow between the kitchen and living areas, plays a role in how comfortable and efficient your home feels. The key is balancing practicality with personal preference, ensuring that your chosen layout serves your lifestyle today and adapts to your needs tomorrow. Whether you're building from scratch or renovating an existing space, thoughtful attention to layout details can make a lasting difference in your everyday happiness. Remember, the best floor plans aren't necessarily the most expensive—they're the ones that make you feel at home.