Every homebuyer dreams of finding the perfect floor plan, and few layouts capture hearts quite like a well-designed 3 bedroom 2 bathroom house blueprint. Whether you're planning a new build or renovating an existing space, understanding how these blueprints work can save you time, money, and countless headaches down the road.
When you think about the ideal family home, chances are a 3 bedroom 2 bathroom layout comes to mind. This configuration strikes a sweet spot between functionality and efficiency, offering enough space for a growing family while remaining manageable for smaller households. But what makes a good blueprint? How do you ensure your chosen design works for your lifestyle? These questions deserve thoughtful answers, especially when you're looking at blueprints that could shape your daily routines for years to come.
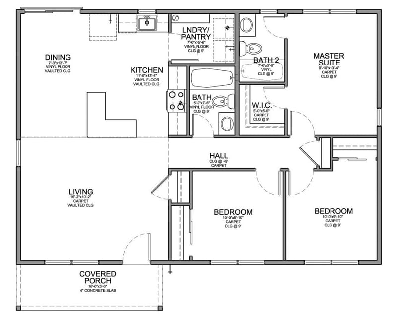
Why Choose a 3 Bedroom 2 Bathroom Layout?

There's something special about a 3 bedroom 2 bathroom house that makes it appealing to so many different types of families. Let's break down why this particular combination works so well. First, it provides flexibility for various living situations. Maybe you have teenagers who need their own private space, or perhaps you're planning to add a home office or guest room later on. The extra bedroom gives you options.
The two-bathroom setup offers convenience without being overly extravagant. It means less fighting over morning routines and more peace during busy weekdays. Plus, if you have guests coming over, everyone can freshen up without feeling cramped.
This layout also tends to be more affordable than larger homes, but still offers substantial usable space. You get good value for your investment, which is important when you consider all the other expenses involved in homeownership.

Essential Features to Look For
When examining any 3 bedroom 2 bathroom blueprint, there are several key elements that make all the difference:
Popular Layout Styles

Not all 3 bedroom 2 bathroom blueprints look the same, and that's part of what makes them so versatile. Here are some of the most popular arrangements:
Traditional Layout: This classic style places the master bedroom at one end of the house, with two additional bedrooms on the opposite side. The bathrooms are typically located near the bedrooms they serve. This creates clear zones and easy navigation.
Open Concept Design: Many modern homes blend the kitchen, dining, and living areas into one large space. This approach maximizes light and makes entertaining easier. The bedrooms are usually positioned to provide privacy while maintaining good traffic flow.

Split Bedroom Plan: In this arrangement, the master suite is separated from the other bedrooms. Often, the master is placed at the far end of the house while the children's rooms are grouped together. This setup is excellent for couples who prefer separate sleeping spaces.
U-Shaped Layout: Sometimes called a 'L-shaped' design, this pattern uses the corner of the lot to create a curved floor plan. It often includes a central gathering area and can offer unique views and lighting opportunities.
Space Optimization Tips

Maximizing every inch of your 3 bedroom 2 bathroom house requires smart thinking. Here are some strategies that can make a huge difference:
Common Mistakes to Avoid
Even experienced designers sometimes fall into traps when creating or selecting house blueprints. Here are some pitfalls to watch out for:
How to Work With Professionals
If you're serious about getting the right 3 bedroom 2 bathroom house blueprint, working with qualified professionals can make all the difference. Architects bring technical knowledge, while interior designers focus on aesthetics and usability. Both can help you avoid costly mistakes and create a space that truly fits your lifestyle.
Start by discussing your priorities and budget. Are you more concerned with energy efficiency, outdoor space, or maximizing storage? Professional input can help you make informed decisions early in the process.
Don't forget to review sample blueprints before making final selections. Seeing actual layouts helps visualize how your family will actually live in the space. And remember, a good designer will listen to your concerns and adapt their suggestions based on your feedback rather than pushing their own preferences.
A well-thought-out 3 bedroom 2 bathroom house blueprint isn't just about square footage – it's about creating a place where you and your family can thrive. When you carefully consider layout, functionality, and personal preferences, you're investing in a foundation that will serve you for decades. The key lies in balancing practicality with comfort, ensuring that every room contributes to your daily happiness rather than becoming a source of frustration. Whether you're designing from scratch or updating an existing space, taking time to understand what makes a great blueprint will pay dividends in both satisfaction and long-term value.