In a world where housing costs soar and space becomes a premium, the humble 3 bedroom 2 bath small house plan has emerged as a beacon of practicality and affordability. These compact yet thoughtful designs prove that you don't need acres of land or a mansion to live well. Whether you're a young family looking for their first home, a retiree wanting to downsize, or someone who simply appreciates smart design, these layouts offer something special.
Imagine waking up in a cozy home where every inch serves a purpose, where the kitchen flows seamlessly into the living area, and where three bedrooms feel spacious rather than cramped. That's exactly what 3 bedroom 2 bath small house plans promise. They're not just about saving money on construction costs – they're about creating homes that feel intentional and lived-in. These designs have become increasingly popular because they address real needs: affordable homeownership, manageable maintenance, and efficient use of space. In fact, according to recent housing trends, over 60% of new home buyers are now considering smaller homes as their ideal living situation. This shift isn't just about economics; it's about lifestyle choices that prioritize quality over quantity.
The Magic of Compact Living
There's something deeply satisfying about a well-designed small house. It forces you to think differently about how you live, how you entertain, and how you organize your belongings. The key is understanding that small doesn't mean simple. These homes often feature clever storage solutions, multi-functional rooms, and thoughtful layouts that make the most of limited square footage.

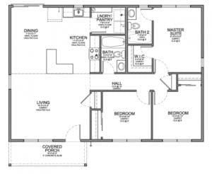
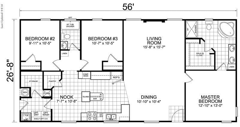
Consider the layout of a typical 3 bedroom 2 bath plan. The master suite usually sits at one end of the house, providing privacy and quiet. The two remaining bedrooms might share a hallway or be positioned strategically to maximize natural light. The bathroom configuration often includes a separate shower and bathtub, offering flexibility for different family needs. Many of these designs incorporate open-concept living areas that make the space feel larger than it actually is.
A good example might be a home measuring around 1,200 to 1,400 square feet. That's enough room for a comfortable kitchen, dining area, living room, three bedrooms, two bathrooms, and even a small study or laundry room. The beauty lies in how each element works together to create a cohesive whole rather than a collection of separate spaces.
Smart Design Features That Make a Difference
When it comes to small house plans, certain features stand out as game-changers:

These elements work together to create homes that feel luxurious despite their modest size. Think about how a well-planned kitchen island can serve as breakfast bar, homework station, and social gathering spot all at once. Or how a cleverly designed bathroom with a walk-in shower and double vanity can make morning routines smoother for the whole family.
Cost Considerations and Value Proposition
One of the biggest draws of 3 bedroom 2 bath small house plans is the cost advantage. Construction costs typically run between $150 to $250 per square foot, which is significantly less than building a larger home. But the savings don't stop there. Smaller homes also mean:
However, it's important to note that while these homes save money upfront, they require careful planning to ensure you don't regret the limitations later. For instance, a kitchen that's too narrow might cause problems when hosting guests. A bathroom that lacks proper ventilation could become a nightmare during humid weather. The key is finding a balance between economy and comfort.

Many builders offer pre-designed plans that can save you hundreds of dollars in architectural fees. These templates often come with proven layouts that have been tested by real families. Some even provide options for customization, allowing you to add features like a garage, extra storage, or a covered porch without starting from scratch.
Popular Layout Variations
Not all 3 bedroom 2 bath small house plans are created equal. Different families have different needs, and designers have responded with various configurations:
Some designs feature a large primary bedroom suite that includes a walk-in closet and private bathroom, while others might split the bedrooms across multiple levels. The versatility of these plans means you can find something that suits your lifestyle perfectly. For example, a couple with young children might prefer a layout with the bedrooms near the main living area for easy supervision, whereas empty nesters might opt for a quieter arrangement with the master suite isolated from the other bedrooms.

Practical Tips for Choosing the Right Plan
Selecting the perfect 3 bedroom 2 bath small house plan requires some serious consideration:
Remember, the best plan isn't necessarily the most expensive one. Sometimes the most straightforward design works better than a complex one with lots of bells and whistles. Look for layouts that feel comfortable to you and your family. Try walking through the proposed floor plan mentally, imagining yourself moving through the space day after day.
Real-Life Success Stories

The true test of any house plan comes from real families who have lived in them. Take the Johnsons, for example, who built a 1,350 square foot home with three bedrooms and two baths in a quiet suburban neighborhood. Their master suite includes a private bathroom with a soaking tub and a walk-in closet that feels like a luxury spa. The second bedroom is adjacent to the family room, making it perfect for their teenage son's study and gaming area. Their third bedroom serves as a guest room that also functions as a home office when needed.
Another family, the Garcias, chose a split-level design that allowed them to have a private master suite while keeping the kids' bedrooms on the same level as the family room. This setup made it easier for them to supervise their children and also meant the parents could easily hear if the kids needed anything during the night. They were able to add a small deck off the family room that became their favorite outdoor space for meals and relaxation.
These stories show that when you choose the right plan for your specific needs, even a small home can feel like a big, comfortable place to call home. The key is matching the layout to your lifestyle, not just trying to fit a standard design into your life.
The appeal of 3 bedroom 2 bath small house plans extends far beyond their modest size. They represent a growing movement toward mindful living, where quality matters more than quantity. These homes offer practical benefits like lower costs and easier maintenance, but they also provide something more intangible: a sense of control over your living environment. When you know every corner of your home intimately, when you've planned every detail to suit your family's needs, you develop a deeper connection to where you live.
Whether you're considering building a new home or simply dreaming about your next move, these compact designs offer a compelling alternative to traditional large houses. They challenge us to think differently about space, function, and what we really need to be happy. The magic isn't in the numbers on the blueprint – it's in how well the plan fits your life. So take your time, consider your priorities carefully, and remember that the best small house is the one that makes you feel at home, not just in your physical space, but in your entire being.