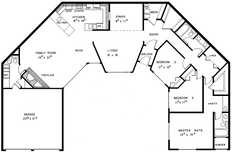
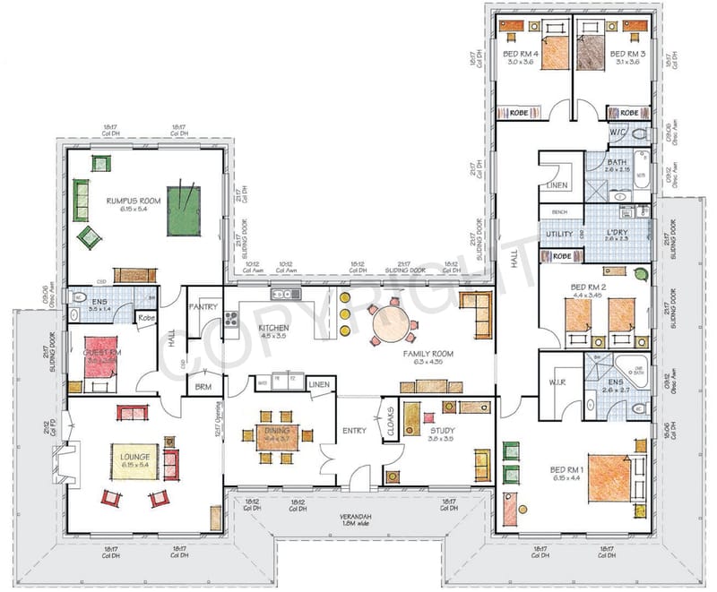
Imagine walking into a home where every room flows seamlessly into the next, where privacy meets openness, and where two master retreats offer the ultimate comfort. That's what u-shaped floor plans with two master suites can deliver. These architectural marvels combine functionality with elegance, creating spaces that feel both spacious and intimate. Whether you're planning a new build or redesigning an existing space, understanding how to properly incorporate this layout can transform your living experience.
When it comes to modern home design, few layouts capture the balance between luxury and practicality quite like the u-shaped floor plan with two master suites. This design approach creates a unique flow that maximizes both privacy and connectivity within a single dwelling. Picture this: you enter through a welcoming foyer, then navigate around a central element that defines different zones. The beauty lies in how this arrangement naturally separates family areas from private retreats while maintaining visual continuity. The strategic placement of two master bedrooms allows each family member to enjoy their own sanctuary, complete with en-suite bathrooms and walk-in closets. This configuration isn't just about aesthetics—it's about creating functional spaces that support daily life while providing the luxury of personal retreats.

Understanding the U-Shaped Layout Concept
The u-shaped floor plan gets its name from the way it curves around a central element, much like the letter 'u'. This design creates natural boundaries between different areas of the home while maintaining open sightlines. In homes with two master suites, this shape allows for a sophisticated separation of private spaces. The curved approach means that traffic flow becomes more intuitive, reducing congestion in high-traffic areas. The central element often serves as a focal point—perhaps a kitchen island, a fireplace, or even a garden courtyard. This design philosophy emphasizes the importance of flow and connection, ensuring that each area feels distinct yet part of a cohesive whole. The curved nature also provides opportunities for creative architectural features, such as built-in seating areas or unique window placements.

Strategic Placement of Master Suites
Placing two master suites in a u-shaped layout requires careful consideration of several factors. The most common approach positions one suite on each side of the central element, creating a balanced symmetry. This arrangement offers excellent privacy since each master bedroom is separated from the main living areas. Consider the orientation of windows and views when positioning these spaces. Ideally, one master suite faces a quiet backyard or garden, while the other might overlook a more active area like a street or pool. The placement should also account for noise levels from adjacent rooms. For instance, placing a master suite away from the kitchen helps reduce morning disturbances. Additionally, think about future needs—will the master suites need access to similar amenities? This might influence whether they're positioned on the same side or opposite sides of the house.

Flow and Connectivity Between Spaces
One of the greatest advantages of the u-shaped design is how it naturally guides movement throughout the home. The curved path encourages exploration and creates interesting circulation patterns. When designing with two master suites, consider how people will move between spaces. The central area becomes a natural gathering point, whether it's a kitchen island, dining area, or living room. This creates a sense of community while preserving individual privacy. The flow should be intuitive—no one should have to backtrack or navigate through inconvenient spaces. Think about how families typically move through their homes during daily routines. Morning routines might require quick access to bathrooms, while evening activities might favor quieter, more intimate spaces. The u-shape allows for these varied needs without compromising the overall design integrity.

Maximizing Natural Light and Views
Lighting plays a crucial role in how u-shaped floor plans feel and function. Strategic window placement can dramatically affect the ambiance of a space. With two master suites, you want to ensure that each bedroom receives adequate natural light. Position windows to take advantage of morning sun in one suite while avoiding direct afternoon glare in the other. Consider using skylights or clerestory windows to bring light deeper into the home. The central element often serves as a light well, especially if it includes a courtyard or atrium. This design feature can illuminate multiple areas simultaneously, creating a sense of spaciousness. Even in smaller homes, clever use of reflective surfaces and light-colored materials can enhance the effect of natural lighting. The curved nature of the design also allows for creative window treatments that complement the architectural flow.

Practical Considerations for Daily Living
While the aesthetic appeal of u-shaped floor plans with two master suites is undeniable, practical aspects cannot be overlooked. Storage solutions become particularly important in these designs. Each master suite needs ample closet space, and the central area often serves as a hub for shared storage. Consider incorporating built-in shelving or custom cabinetry that maintains the clean lines of the design. The kitchen's location relative to both master suites affects daily convenience. If possible, position the kitchen so that one master suite has easy access to food preparation areas, while the other might benefit from proximity to a breakfast nook or casual dining area. Bathroom placement also matters—having a shared bathroom in the central area provides convenience for guests, while private en-suite facilities offer personal privacy. These decisions directly impact how comfortable and efficient daily life becomes in the home.
Cost Considerations and Design Flexibility
Building or renovating with a u-shaped floor plan can involve various costs depending on the scope of work. The complexity of the curved elements often increases construction expenses compared to standard rectangular layouts. However, the investment typically pays off through increased property value and improved lifestyle satisfaction. When planning, consider whether you want to maintain traditional construction methods or explore modern alternatives like prefabricated elements. The flexibility of the u-shape allows for customization based on budget constraints. You might start with the basic layout and add elements over time. For example, you could build the core u-shape first and expand later with additional rooms or features. The design also offers opportunities for energy efficiency improvements, such as better insulation due to fewer exterior walls and optimized heating/cooling distribution.
The u-shaped floor plan with two master suites represents more than just a design choice—it's a lifestyle decision that balances privacy with connectivity. When thoughtfully planned, this layout creates spaces that feel both grand and intimate, offering each family member their own sanctuary while maintaining family cohesion. The curved flow of the design naturally guides daily activities, making even complex household routines feel effortless. From maximizing natural light to optimizing storage solutions, every aspect of this layout supports practical living. Whether you're building a new home or remodeling an existing space, considering a u-shaped floor plan with dual master suites can provide the perfect foundation for your ideal living environment. The key is to embrace the design's potential for both form and function, creating a space that truly serves your family's needs while reflecting your personal style.