Picture this: your family gathered around the kitchen island, kids playing in the backyard, and everyone relaxing in their own private spaces. That's exactly what a well-designed 3 bedroom 3 bath house plan can make possible. These layouts offer the perfect balance between spaciousness and efficiency, creating homes that feel both cozy and grand. Whether you're planning your first home or upgrading to a larger space, understanding how to maximize every square foot matters more than you might think.
When it comes to designing a home that truly works for your family, few floor plans capture the sweet spot between comfort and functionality quite like the classic 3 bedroom 3 bath layout. This configuration isn't just about having three bedrooms - it's about creating thoughtful spaces that support modern family life. From the way light flows through each room to how traffic moves between areas, every element matters. You might wonder why this particular setup has remained so popular over decades, but there's good reason behind the enduring appeal. These plans give families room to breathe while keeping everything connected in sensible ways. Let's explore what makes them special and how you can make one work perfectly for your unique situation.
Understanding the Classic 3/3 Layout

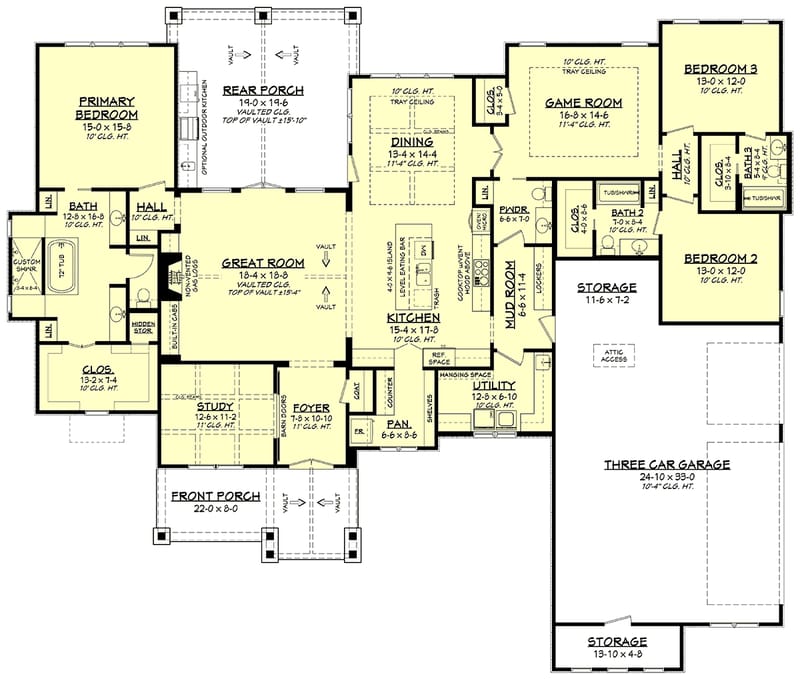
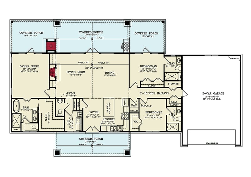
The 3 bedroom 3 bath house plan represents one of the most versatile and sought-after configurations in residential architecture. At its core, this layout provides three separate sleeping areas plus three full bathrooms, offering incredible flexibility for different family needs. Think about how many times you've heard someone say they want "a home that feels spacious but not empty." That's exactly what this setup delivers. The three bedrooms typically feature different sizes and orientations, allowing for master suite privacy, children's rooms that can grow with their needs, and potentially a guest room for visitors. Meanwhile, three bathrooms mean no more frantic morning rush to get ready. Each family member can move through their routine without stepping on anyone else's toes. The key advantage? You're not just adding rooms - you're creating distinct zones that serve different purposes. A master suite with ensuite bathroom can feel like a retreat, while the other bedrooms provide comfortable spaces for younger children or guests. This arrangement also works beautifully for multi-generational living, giving older family members their own private space while maintaining easy access to shared areas.
Popular Design Variations
Not all 3/3 layouts are created equal, and that's what makes them so exciting to work with. Here are some of the most common approaches that architects and homeowners love:

Each of these variations offers different benefits, and the best choice depends on your lifestyle, family size, and personal preferences. Consider what matters most to you - quiet mornings in your master suite, or active family gatherings in open spaces?
Space Optimization Strategies
Maximizing every inch of your 3/3 house plan requires smart thinking about how you use your space. Here are practical ways to make the most of your layout:

These considerations aren't just about aesthetics - they're about creating a home that works for your daily life. Every decision impacts how smoothly your family moves through their days.
Kitchen and Living Area Integration
One of the biggest trends in modern 3/3 house plans is bringing the kitchen and living spaces together in seamless ways. This approach transforms your home from a collection of separate rooms into a unified family environment. When you have a large kitchen island, a breakfast bar, or even a small dining area built right into the living space, it creates natural gathering points. The key is balancing openness with definition. You want the space to feel connected but still maintain its individual character. For example, a kitchen with a breakfast bar can serve as a casual dining area during breakfast and evening meals, while also functioning as a place for kids to do homework or for adults to have informal conversations. The living area can flow naturally into this space, creating a sense of movement and connection that makes the whole house feel more spacious. Many homeowners find that when they open up these connections, their families spend more time together in the central areas. It's not just about the physical space - it's about encouraging interaction and creating memories in the places where family life happens.

Bathroom Design Considerations
Three bathrooms in a 3/3 house plan offer incredible opportunities to customize each space for different needs. The master suite bathroom often gets the most attention because it's typically the largest and most luxurious area. Think about features like a soaking tub, separate shower, double vanities, and walk-in closets. But don't overlook the other two bathrooms - they're crucial for daily function. The second bathroom, usually located near the middle bedrooms, should be designed for quick access and easy maintenance. It might include a standard tub/shower combination and a compact vanity. The third bathroom, often near the front of the house or in the basement, can serve as a guest bathroom or utility room. Consider how much privacy you want in each space. The master bathroom deserves special attention with quality fixtures and materials. Meanwhile, the other bathrooms benefit from durable finishes that can handle daily wear and tear. Storage is another important factor - you'll want plenty of cabinet space and maybe even a linen closet or shower niche for towels and toiletries. Don't forget about accessibility features if aging in place is part of your long-term plan.
Outdoor Space Integration

A great 3/3 house plan considers how indoor and outdoor spaces connect seamlessly. This connection enhances both the home's appeal and functionality. Many families spend significant time outdoors, whether it's in a backyard, deck, or patio area. The key is designing pathways that make moving between inside and outside natural and convenient. For instance, having a covered porch or entryway that leads directly to a deck creates a smooth transition from the house to the garden. Consider how your outdoor spaces complement your indoor layout. If you have a large family, you might want a backyard that accommodates both quiet relaxation and active play. Perhaps you have a pool, a fire pit area, or a vegetable garden that extends the living experience beyond the walls of your home. The relationship between indoor and outdoor spaces affects everything from energy efficiency to your family's daily habits. When you design for this integration from the start, you create a home that truly feels like a living space rather than just a building. The flow between inside and outside areas can make your home feel more expansive and connected to nature.
Budget and Cost Factors
Building or renovating a 3/3 house plan involves several cost considerations that vary based on your location, materials, and design choices. Generally speaking, this type of layout falls somewhere in the mid-range category for housing costs, but it's important to understand where expenses can add up. The foundation and framing represent major upfront costs, but they're fixed regardless of your interior details. The real budget drivers often come from finishes and custom features. High-end kitchen appliances, premium flooring materials, and luxury bathroom fixtures can quickly increase overall costs. However, there are smart ways to manage these expenses. For instance, choosing energy-efficient appliances can save money on utility bills for years to come. Similarly, investing in quality insulation and windows can reduce heating and cooling costs significantly. Consider prioritizing your spending based on what matters most to your family. If you entertain frequently, spending more on the kitchen and living areas might be worth it. If you value quiet mornings in your master suite, focus on that bathroom and bedroom design. Working with a contractor early in the process helps ensure you understand all potential costs and can make informed decisions about where to allocate your budget.
Making Your Plan Work for Your Family
Every family is different, which means every 3/3 house plan needs to reflect your unique lifestyle and priorities. Start by considering your current and future family needs. Do you have young children who will grow up in this space? Will you eventually need a home office or extra space for elderly parents? The beauty of a 3/3 layout is its adaptability. You might begin with three bedrooms that are equally sized, but later convert one into a home office or study. Or perhaps you want to keep the master suite private now but allow for a larger family room in the future. Think about how you use your space today and how that might change. The key is flexibility within structure. Some families prefer the traditional approach with clearly defined spaces, while others want open, flowing areas that can adapt to changing needs. Consider your family's daily routines and how they impact your home choices. Are you a family that eats dinner together regularly? Then having a kitchen that connects easily to the dining and living areas makes sense. Do you work from home? Then having dedicated space for that activity might be essential. The best 3/3 house plan is one that reflects your values and supports your way of life, not just the standard template.
The 3 bedroom 3 bath house plan continues to be a favorite among families because it strikes that perfect balance between spaciousness and practicality. It's not just about the numbers - it's about creating a home that grows with your family and supports their daily rhythms. Whether you're designing from scratch or renovating an existing space, focusing on flow, functionality, and personal preferences will lead to the best results. Remember that your home should reflect your lifestyle, not just meet generic expectations. Take time to consider how you want to live in your space, and let that guide your design choices. The investment you make in thoughtful planning today will pay dividends in comfort and satisfaction tomorrow. A well-executed 3/3 layout can become the foundation for years of happy memories, family traditions, and shared experiences. The key is starting with a solid understanding of what makes these plans work so well, then adapting them to fit your unique needs. With careful consideration and creative thinking, you can build or choose a 3/3 house plan that truly feels like home.