In today's housing market, the demand for spacious, luxurious homes continues to grow. One particularly popular design trend involves 2 bedroom house plans that feature two master suites. These homes offer families the perfect blend of privacy, comfort, and sophisticated living spaces. Whether you're planning a new build or renovating an existing space, understanding how to properly incorporate dual master suites can transform your home into a true retreat.
When you think about the ultimate in home luxury, what comes to mind? For many people, it's having private retreats within their own home. That's exactly what two master suites can provide. These layouts allow each family member to have their own personal sanctuary, complete with walk-in closets, private bathrooms, and spacious areas for relaxation. The beauty of this design lies not just in the individual spaces, but in how they work together to create a harmonious living environment. This guide will walk you through everything from layout considerations to practical benefits, helping you understand why these homes are becoming increasingly sought after.

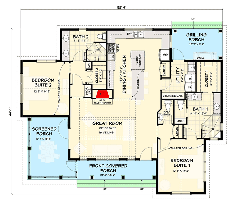
Understanding the Layout Basics
The foundation of any successful dual master suite design starts with careful consideration of space and flow. When planning a 2 bedroom house plan with two master suites, you're essentially creating two distinct living zones within one structure. Think of it like designing two separate apartments within one building. Each suite needs its own entrance, or at minimum, a clear separation from the rest of the home. This separation can be achieved through strategic placement of walls, doorways, and even furniture arrangements. The key is ensuring that while each suite feels private and exclusive, they still contribute to the overall cohesiveness of the home. Consider placing the master suites on opposite sides of the house, or perhaps one on the main floor and one upstairs. This creates natural boundaries and helps prevent noise transfer between the two areas. Many architects recommend using a hallway or central area as a buffer zone, allowing for shared spaces like a kitchen or living room that both suites can access.

Space Planning and Dimension Requirements
Creating functional master suites requires careful attention to dimensions and proportions. Each suite should ideally be at least 300 square feet to feel truly spacious, though many homeowners prefer 400+ square feet for maximum comfort. The standard size range for a master suite is typically 30x30 feet or larger. When designing these spaces, consider the essential elements: a bedroom area, ensuite bathroom, walk-in closet, and perhaps a sitting area or desk space. These rooms must be proportionally balanced to avoid feeling cramped or overly large. A common mistake is making one suite significantly larger than the other, which can create imbalance in the overall home design. Think about how you'll use each space. Do you need a large master bathroom with double vanities? Perhaps a separate shower and soaking tub? Will there be a sitting area for reading or working? These details shape the actual square footage requirements and influence how you'll lay out the suites.

Design Considerations for Privacy and Flow
Privacy is the cornerstone of dual master suite homes. This means thoughtful placement of doors, windows, and architectural features. You want each suite to feel completely separate from the other, yet still part of the same home. One effective approach is to position the suites with their backs facing each other, creating a natural barrier. This might mean placing one suite with its bedroom facing the front of the house and the other facing the back. Windows also play a crucial role in privacy. Consider using different window styles or orientations for each suite to ensure no direct line of sight between them. Another important factor is traffic flow. The home should have clear pathways that don't force visitors or family members to pass through private areas. Think about where people enter the home, where they'll go to reach each suite, and how the kitchen and common areas relate to these private spaces. Good flow means that guests can move around the house easily without disrupting anyone's privacy.

Practical Benefits and Lifestyle Advantages
Beyond the aesthetic appeal, there are numerous practical advantages to choosing a 2 bedroom house plan with dual master suites. For families with teenagers, this setup provides much-needed independence while maintaining family connections. Each teen can have their own space for studying, relaxing, and storing personal items without feeling crowded or restricted. This arrangement works particularly well for households with multiple generations living together. Grandparents or adult children can enjoy their own private quarters while remaining close enough to participate in family activities. The lifestyle benefits extend beyond simple privacy. Having two master suites often means more flexibility in how you organize your daily routine. One person can sleep in one suite while another gets ready in the other, avoiding the common morning rush and chaos. It also allows for better management of household responsibilities. Each suite can be dedicated to different functions - one for quiet relaxation and one for active lifestyle pursuits.

Cost Analysis and Budget Considerations
Building or remodeling to accommodate two master suites does come with additional costs, but the investment often pays off in terms of comfort and property value. The cost difference between a single master suite and two can range anywhere from 10% to 25% more, depending on the complexity of the design and materials used. This includes not just the construction costs, but also the added plumbing, electrical work, and custom finishes required for two full bathrooms and walk-in closets. However, when you consider that these homes typically sell for higher prices than standard two-bedroom layouts, the return on investment can be significant. The key is to prioritize your budget based on what matters most to you. Are you willing to spend more on premium finishes in one suite over the other? Do you need extra features like a private balcony or garden access for one suite? These decisions impact both your lifestyle satisfaction and financial investment. Working with a designer early in the process helps ensure that every dollar spent contributes to your desired outcome.
Popular Design Styles and Modern Trends
Modern 2 bedroom house plans with dual master suites embrace various design aesthetics, from contemporary minimalist approaches to traditional luxury finishes. Contemporary designs often focus on clean lines, open floor plans, and high-end materials. Think sleek cabinetry, polished concrete floors, and abundant natural light. Traditional styles might incorporate rich wood tones, ornate fixtures, and classic architectural details. The choice often depends on your personal preferences and the local market trends. Current trends favor biophilic design elements, incorporating natural materials and views of outdoor spaces into the master suites. Many homeowners are choosing to include features like skylights, large windows, or even small patios that connect the indoor and outdoor environments. Smart home technology integration is also becoming standard, with features like automated lighting, climate control, and security systems seamlessly built into the design. The key is finding a style that reflects your personality while maintaining the functionality and comfort that make these homes special.
A 2 bedroom house plan with two master suites represents more than just a design choice - it's a lifestyle decision that prioritizes privacy, comfort, and personal space. Whether you're planning a new construction project or looking to renovate an existing home, understanding the nuances of dual master suite design can help you create a space that truly meets your family's needs. The key lies in balancing individual privacy with family connection, considering practical aspects like flow and functionality, and investing thoughtfully in features that enhance your daily life. With proper planning and design, these homes can become the perfect blend of luxury and livability. As housing trends continue to evolve, the demand for homes with dual master suites shows no signs of slowing down. They represent the future of personalized, comfortable living where every family member can have their own special place within the same home. The investment in such a layout pays dividends in both daily satisfaction and long-term property value.