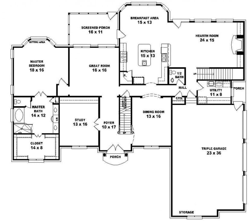
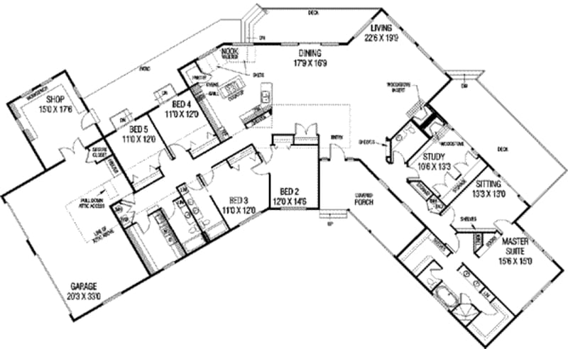
When you're planning your dream home, the floor plan becomes the foundation of everything else. A 5 bedroom 3 bath layout offers the perfect balance between spaciousness and practicality. Whether you're hosting family gatherings or need quiet spaces for work-from-home arrangements, these floor plans can accommodate it all.
A well-designed 5 bedroom 3 bath floor plan isn't just about square footage. It's about creating a space that feels lived-in, functional, and truly yours. These layouts have become increasingly popular because they offer flexibility without overwhelming you with too much space. Think about it – how many of us have been in homes where the bedrooms felt cramped or the bathrooms were too small? That's exactly what a good floor plan solves. We're going to walk through what makes these designs work so well, and how you can customize them to fit your unique lifestyle.
Understanding the Basics of 5 Bedroom 3 Bath Layouts
At its core, a 5 bedroom 3 bath floor plan means you get five separate sleeping areas plus three full bathrooms. This might sound like a lot, but it's actually quite manageable when designed properly. The key is understanding how to distribute these spaces efficiently.
The typical 5 bedroom 3 bath home ranges from 2,500 to 3,500 square feet, depending on the size of each room and the overall architecture. You'll often see this layout in ranch-style homes, colonial designs, or modern open-concept layouts. The bathroom configuration can vary – some have two full baths on one side of the house and one on the other, while others spread them out more evenly.

Let's break it down simply:
Where to Place Your Primary Bedroom Suite
The primary bedroom suite is usually the most important part of any 5 bedroom 3 bath layout. It needs privacy, comfort, and plenty of space. Most homeowners prefer placing it on the opposite end of the house from the other bedrooms.
Why? Because it provides maximum privacy for your master suite. You want to avoid having kids running through to get to their rooms, right? The ideal location is typically at the back of the house or on the second floor if you have multiple levels.
Here's how to think about it:

Some people love a master suite with a private bathroom, while others prefer a shared bathroom. Both options work, but they impact how you arrange the rest of your home. For example, if your master suite has its own bathroom, you might place the other bedrooms nearby to keep everyone close to the main bathroom.
Bathroom Placement Strategy
Now let's talk about those three bathrooms. How you position them can make or break your daily routine. Here are some smart approaches:
This distribution helps prevent traffic jams in the bathroom area during busy mornings. If you have young children, you'll appreciate having a bathroom closer to their bedrooms.
A few things to consider:

One popular approach is to put the main bathroom on the first floor near the living areas, with the master suite bathroom on the second floor. This way, everyone has easy access to a bathroom, and the master suite stays private.
Kitchen and Living Area Integration
The heart of your home isn't just the kitchen – it's the connection between the kitchen, dining area, and living spaces. In a 5 bedroom 3 bath layout, these areas should flow together naturally.
Think about how you move through your home daily. Where do you eat? Where do you relax? Where do you cook? These questions guide the design decisions. Many modern 5 bedroom 3 bath homes feature an open-concept kitchen with breakfast bar or island.
Key considerations:

A well-planned kitchen with good sightlines to the living area creates a welcoming atmosphere. You can also add a breakfast nook or family room that connects to the kitchen. This setup works great for families who want to stay connected while cooking or eating.
Smart Bedroom Arrangement Tips
Arranging your bedrooms effectively is crucial for maximizing both privacy and functionality. Let's look at some tried-and-true methods:
For example, if you have teenagers, they might benefit from bedrooms closer to the bathroom and garage. Younger children might prefer bedrooms near the main living areas for easier supervision.
Other helpful strategies:

Some people choose to make one bedroom a multi-purpose space – maybe a guest room that doubles as a home office or playroom. Others prefer to keep bedrooms strictly for sleeping and relaxation.
Maximizing Storage and Flexibility
Storage is often overlooked, but it's essential in any 5 bedroom 3 bath home. These layouts give you plenty of opportunities for clever storage solutions. Walk-in closets, linen closets, and built-in storage systems can transform how you organize your belongings.
Consider these storage ideas:
Flexibility matters too. You might want a bonus room that can serve as a home gym, library, or craft space. This kind of adaptable space becomes more valuable as your needs change over time.
Another smart move is to include a mudroom or entryway with hooks and cubbies. It keeps your home organized and prevents clutter from spreading throughout the house. The key is planning ahead for how you'll use each space as your family grows and changes.
Designing a 5 bedroom 3 bath floor plan isn't just about following rules – it's about creating a space that reflects your life. Every element, from the placement of your bathrooms to the flow between rooms, should support how you actually live. When you think about it, these layouts aren't just about square footage or number of rooms. They're about creating a foundation for memories, routines, and daily happiness.
The beauty of a well-thought-out 5 bedroom 3 bath home is that it adapts to your changing needs. Whether you're raising kids, working from home, or entertaining guests, the right layout supports it all. So take your time, consider your lifestyle, and remember that the best floor plan is one that makes you feel comfortable and happy every day.