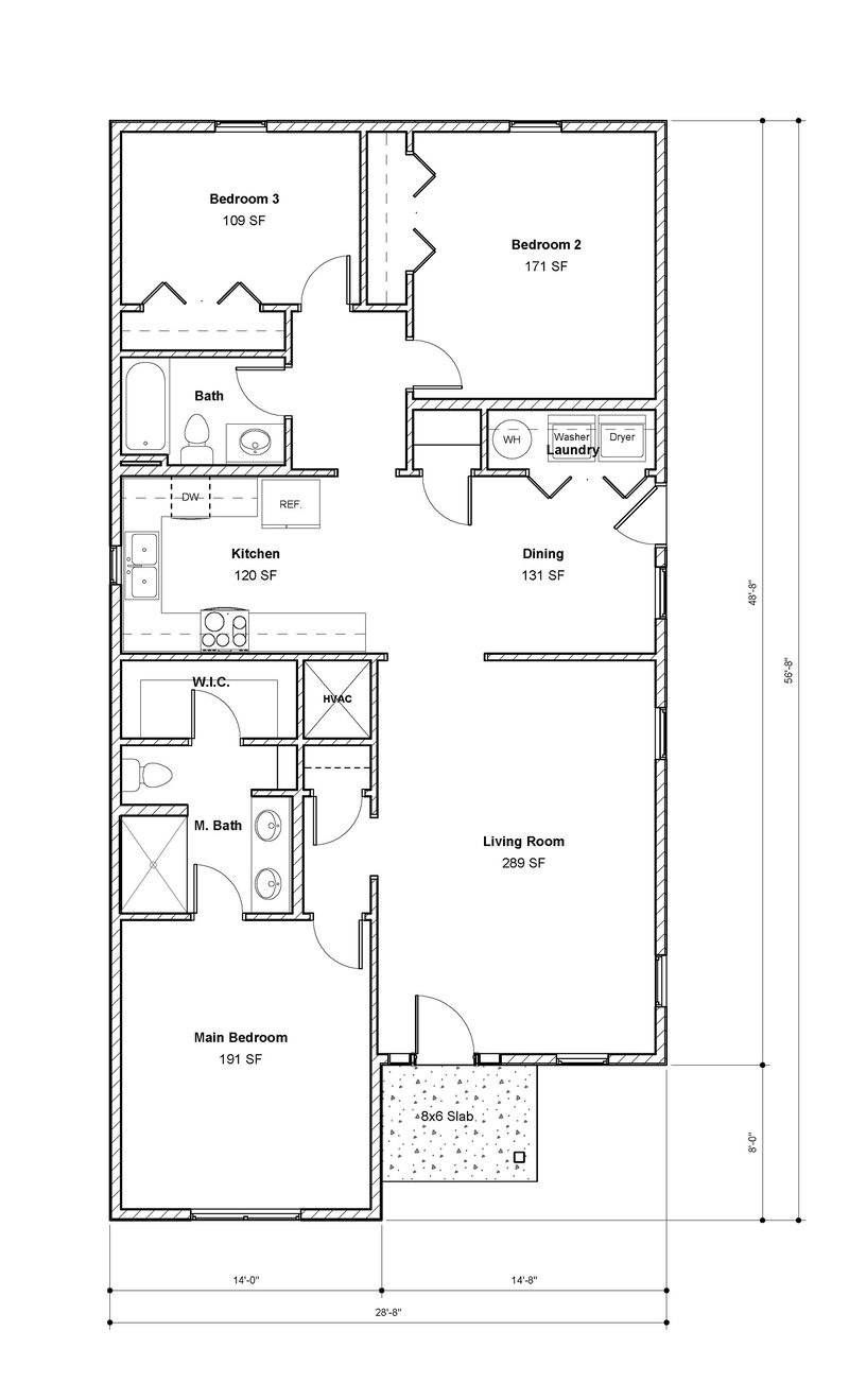
Every family has different needs, but when it comes to home design, few layouts strike that perfect balance between comfort and practicality quite like the classic 3 bedroom 2 bath floor plan. It's not just about square footage—it's about how those rooms work together to support your daily life. Whether you're planning a new build, renovating, or simply dreaming about your next home, understanding what makes a great floor plan can save you countless hours of frustration and help you make smarter decisions.
Why does the 3 bedroom 2 bath layout seem to be everyone's go-to choice? Maybe it's because it offers enough space for growing families without becoming overwhelming. Maybe it's the way it naturally divides a home into distinct zones—the sleeping areas, the common spaces, and the private areas. Whatever the reason, this configuration has become the backbone of countless homes across America and beyond. It's versatile enough for young couples, ideal for growing families, and adaptable for aging in place. But what exactly makes a good 3 bedroom 2 bath floor plan stand out from the rest?
Understanding the Core Elements

At its heart, a good 3 bedroom 2 bath floor plan needs to get three things right: flow, function, and flexibility. Flow means moving through the house feels natural, like you're not constantly fighting against the layout. Function refers to each room doing its job well—your bedrooms should feel private, the kitchen should be practical, and the bathrooms should be convenient. Flexibility ensures that as your family grows or changes, the space can adapt. These elements work together like a symphony, where each instrument plays its part to create harmony. For instance, placing the master suite away from the children's bedrooms creates privacy and quiet. Positioning the kitchen near the dining area makes mealtime easier. Having a separate bathroom for guests or family members prevents congestion during busy mornings.
Key Design Considerations
Before diving into the specifics, consider what matters most to you. Do you entertain often? Then the living areas need to be open and welcoming. Are you a home cook? Then your kitchen should be the heart of the home. Do you work from home? You'll want dedicated space for that. Let's break down some important design choices:

These aren't just design details—they're lifestyle decisions that shape how you live day to day.
Master Suite Layout Strategies
The master suite is often the crown jewel of a 3 bedroom 2 bath home. It deserves special attention because it's your personal retreat. A well-designed master suite typically includes:

Some people prefer a more traditional setup where the master bedroom is at the far end of the house, while others want it closer to the main living areas for easy access. The key is ensuring that privacy and convenience work hand-in-hand. Consider how you'll use the space. If you're a morning person, you might want your master suite facing east to catch the sunrise. If you prefer evening relaxation, maybe a view of the backyard or garden is more appealing.
Balancing Family Spaces
With two bathrooms and three bedrooms, there's always a delicate dance to strike between having enough space and avoiding wastefulness. Here are some ways to make smart choices:

Many modern families find that having a third bedroom that can serve multiple purposes provides great value. Perhaps it's a guest room that doubles as a home office, or a playroom that becomes a teen study. This kind of versatility is crucial in today's world where family needs change frequently.
Practical Tips for Maximizing Space
Here are some real-world strategies that help make the most of your 3 bedroom 2 bath floor plan:

These aren't just tricks—they're proven methods that have helped thousands of families make their homes work better. Sometimes it's the little touches that make all the difference.
Modern Trends in 3 Bedroom 2 Bath Homes
Today's homeowners are looking for more than just basic functionality. They want their homes to reflect their values and lifestyles. Some current trends include:
These aren't just passing fads—they represent how people actually live now. The most successful floor plans incorporate these elements thoughtfully rather than forcing them in.
A 3 bedroom 2 bath floor plan isn't just about counting rooms—it's about creating a foundation for your life. It's about balancing privacy with togetherness, functionality with aesthetics, and practicality with dreams. Every family has different needs, but the principles remain the same: thoughtful design, careful consideration of how you live, and a willingness to adapt as circumstances change. Whether you're building your first home, remodeling your current space, or simply thinking ahead, remember that the best floor plans are those that grow with you. The key isn't perfection—it's finding what works for your unique situation. After all, a home should feel like a comfortable extension of yourself, not just a collection of rooms.