Imagine waking up each morning in a home that's both cozy and functional, where every inch serves a purpose. Picture three comfortable bedrooms, a kitchen that cooks delicious meals, and enough space to truly live well - all within a footprint that might surprise you. This isn't just a pipe dream anymore. It's a growing movement that's changing how we think about home ownership. In a world where housing costs continue to climb and space becomes increasingly precious, the humble 3 bedroom tiny home plan is offering a fresh perspective on what it means to have a place to call home.
The idea of living in a tiny house might seem counterintuitive at first glance. After all, most of us have been taught that bigger is better when it comes to our living spaces. But there's something deeply appealing about the concept of intentional living. When you strip away the excess, you often find that what remains is exactly what matters most. A 3 bedroom tiny home represents a sweet spot for many families and individuals who want to embrace minimalism while maintaining the practical needs of their lifestyle. These homes aren't just about size - they're about purpose, efficiency, and creating a space that supports how you actually live your life.
What Makes a 3 Bedroom Tiny Home Special?

A 3 bedroom tiny home isn't simply a regular house scaled down. It's a carefully crafted design that balances functionality with comfort. These homes typically range from 600 to 1,200 square feet, though some innovative designs push beyond those boundaries. What sets them apart is their thoughtful layout and clever use of space. You'll find that these homes often feature multi-functional rooms, vertical storage solutions, and creative architectural elements that maximize every available inch. For families, having three bedrooms means everyone gets their own private space, which can be a game-changer for households with children or working professionals who need dedicated areas for different activities. The challenge lies in creating an environment where everyone feels comfortable and has room to breathe - literally and figuratively.
Design Principles That Work
Successful 3 bedroom tiny home plans follow several core principles that make them livable and enjoyable. First and foremost is the concept of open floor plans. Instead of traditional room divisions, these homes often feature flowing spaces that serve multiple purposes. A living area might double as a dining space during the day and transform into a sleeping area at night. Second is smart storage solutions. Think built-in cabinets that reach to the ceiling, under-stair storage, and hidden compartments that keep things organized without cluttering the visual space. Thirdly, consider the flow of movement within the home. Every doorway, hallway, and transition should feel natural and intuitive. Finally, lighting plays a crucial role. Natural light can make even the smallest space feel expansive, while strategic artificial lighting helps create different moods and functions throughout the day. Many designers incorporate skylights, large windows, and layered lighting systems to achieve this effect.

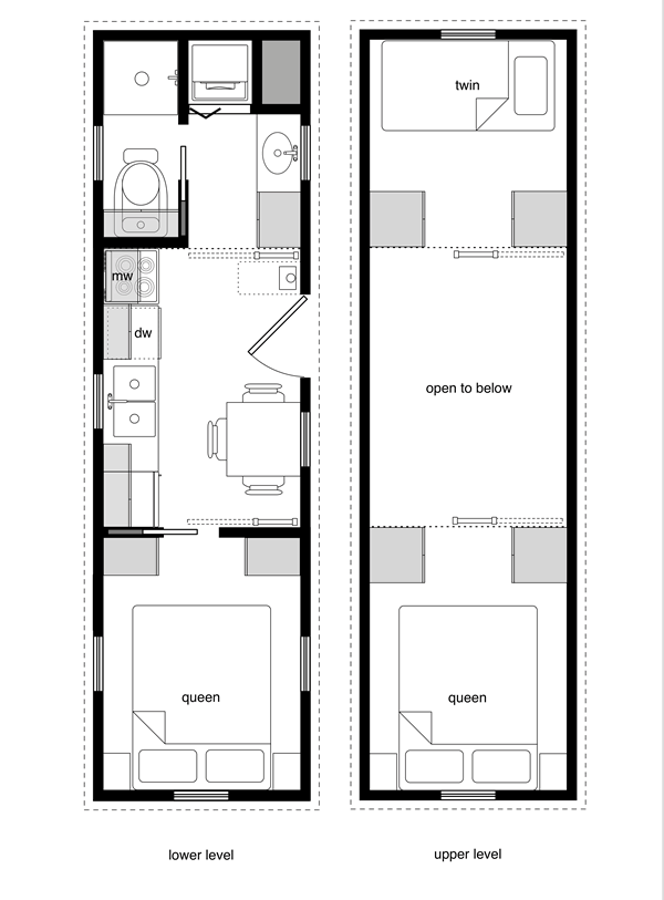
Key Layout Considerations
When planning a 3 bedroom tiny home, certain layout decisions become critical. The placement of bedrooms often determines the home's success. Some designs put all three bedrooms on the same level, while others use lofted sleeping areas or split-level configurations. Lofted bedrooms can free up ground-level space for common areas, but they require careful consideration of access and safety. Kitchen placement is equally important. In most cases, kitchens are positioned near the front or center of the home to facilitate easy access and create a sense of openness. Bathrooms need to be strategically located for convenience while maintaining privacy. Often, they're placed in a central location or at opposite ends of the home. The living area usually becomes the heart of the space, designed to be flexible enough to accommodate various activities throughout the day. These spatial relationships determine how comfortable and functional the home will feel on a daily basis.
Popular Design Styles and Their Benefits

There are several popular design approaches for 3 bedroom tiny homes, each with its own advantages. The modern minimalist style emphasizes clean lines, neutral colors, and simple forms. This approach works exceptionally well in small spaces because it reduces visual clutter and creates a sense of calm. Rustic farmhouse designs bring warmth and character through natural materials like wood and stone. These homes often feature exposed beams, shiplap walls, and vintage-inspired fixtures that create a cozy atmosphere. Contemporary designs blend modern aesthetics with functional features, often incorporating smart technology and sustainable materials. Industrial chic homes use raw materials like steel and concrete alongside reclaimed wood to create a unique look that appeals to many young professionals. Each style offers different benefits, but all share the common goal of making the most of limited space while creating a home that reflects the owner's personality and lifestyle.
Practical Challenges and Solutions
Building a 3 bedroom tiny home presents unique challenges that homeowners must address. One major concern is compliance with building codes and zoning laws. Many areas have restrictions on tiny home construction that vary significantly from one jurisdiction to another. Before beginning any project, it's essential to research local regulations thoroughly. Another issue involves financing options. Traditional mortgage lenders may not offer loans for tiny homes, especially if they're built on wheels or don't meet standard construction requirements. Alternative financing methods like personal loans, credit unions, or specialized tiny home lenders might be necessary. Storage becomes another challenge - how do you fit everything you need in such a small space? Creative solutions like Murphy beds, hidden storage, and multi-purpose furniture help solve this problem. Finally, resale value can be tricky since the market for tiny homes is still developing. However, well-designed homes with quality materials and thoughtful layouts tend to hold their value better than poorly planned alternatives.

Cost Considerations and Budget Planning
Budgeting for a 3 bedroom tiny home requires careful attention to detail and realistic expectations. Construction costs can range anywhere from $20,000 to $80,000 depending on materials, complexity, and location. The foundation alone can cost between $5,000 and $15,000, while basic finishes might add another $10,000 to $25,000. Materials selection plays a significant role in overall costs. Sustainable options like bamboo flooring or reclaimed lumber can reduce expenses while adding character. Labor costs vary widely by region, with some areas offering lower rates for construction work. Many people choose to build their own homes to save money, but this requires significant time investment and skill development. It's also worth considering ongoing costs like utilities, maintenance, and insurance. While tiny homes generally cost less to operate due to smaller heating and cooling needs, they may require special insurance policies that can be more expensive than standard homeowner's coverage.
Real-Life Examples and Inspiration

Looking at actual 3 bedroom tiny home examples provides valuable insight into what's possible. One particularly inspiring case features a family of four living in a 750-square-foot home with a master suite, two children's bedrooms, and a shared bathroom. They achieved this through clever use of vertical space, including a loft area for one child and a Murphy bed that folds into the wall during the day. Another example showcases a single person who designed a 900-square-foot home with a separate office space that doubles as a guest room. The kitchen features a breakfast bar that serves as additional seating and workspace. These real-world applications demonstrate that with proper planning and creativity, even the most challenging space constraints can be overcome. They also show how individual preferences and lifestyles shape the final design choices, proving that there's no one-size-fits-all approach to tiny home living.
Future Trends in Tiny Home Design
The tiny home movement continues to evolve rapidly, bringing new innovations and possibilities. Smart home technology integration is becoming increasingly common, allowing residents to control lighting, temperature, and security through mobile apps. Solar panels and energy-efficient appliances are now standard features in many new builds, reducing environmental impact and utility costs. Modular construction techniques promise to make building faster and more affordable. Some companies are experimenting with prefabricated components that can be assembled on-site quickly. Sustainability remains a driving force behind many design decisions, with more people choosing eco-friendly materials and renewable energy sources. As urbanization increases and land costs rise, we're likely to see more innovative solutions for maximizing space in smaller footprints. The future looks bright for those seeking alternative housing options that combine affordability with functionality.
A 3 bedroom tiny home represents more than just a shrinking of living space - it's a reimagining of what home can be. These homes prove that size doesn't determine comfort or happiness. With thoughtful planning, creative design, and a willingness to embrace intentional living, anyone can enjoy the benefits of a compact yet fully functional dwelling. Whether you're a family looking to reduce costs, a retiree seeking simplicity, or someone who appreciates the beauty of minimalism, there's likely a 3 bedroom tiny home design that fits your vision. The key is understanding that this isn't about sacrifice - it's about prioritizing what truly matters in your daily life. As the movement continues to grow, we're discovering that sometimes the best way to expand your horizons is to start by shrinking your footprint. The journey toward smaller, smarter living is one that many find deeply rewarding, offering a path to financial freedom, environmental responsibility, and genuine satisfaction with less.