Picture this: you've found the perfect lot, you've chosen your favorite architectural style, and now you're ready to bring your dream home to life. But wait - how do you actually translate those visions into reality? That's where 3 bedroom 2 bathroom house blueprints come in. These detailed plans aren't just pieces of paper with lines and measurements. They're the foundation upon which your future memories will be built. Whether you're planning a cozy family home, a starter house, or a vacation retreat, understanding the nuances of these floor plans can save you time, money, and countless headaches.
When people think about home design, they often focus on the flashy features - the gourmet kitchen, the master suite, or the backyard oasis. But what really matters is the blueprint. It's the backbone of every successful construction project. For many families, a 3 bedroom 2 bathroom layout strikes the perfect balance between space and efficiency. It's spacious enough for growing children and guests, yet intimate enough for daily life. These blueprints aren't just about rooms and walls. They're about creating functional spaces that support your lifestyle, your budget, and your future plans. Every square foot matters, and every doorway tells a story about how you want to live.

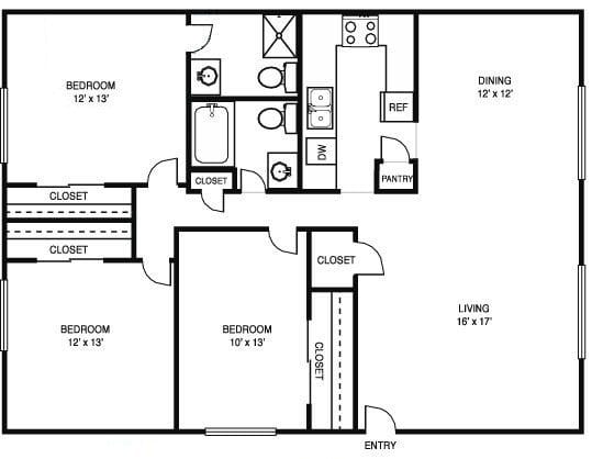
The Classic 3 Bedroom 2 Bathroom Layout
The traditional 3 bedroom 2 bathroom house blueprint has been a staple for decades because it works. This setup typically features one large bedroom with a private bathroom, and two smaller bedrooms sharing a common bathroom. Think of it as the perfect middle ground between a studio apartment and a sprawling mansion. The master bedroom usually sits at the far end of the house, offering privacy and quiet. The two shared bedrooms are positioned together, often with a small hallway between them and the main bathroom. This arrangement makes sense for families with young kids, elderly parents, or anyone needing extra space for guests. Many architects still rely on this classic pattern because it addresses fundamental needs while remaining flexible enough for various lifestyles.

Space Optimization Strategies
One of the most important aspects of good blueprint design is maximizing every inch. With limited square footage, clever solutions can make all the difference. Consider a split-bedroom design where the master suite is separated from the other bedrooms. This reduces noise and provides better privacy. Built-in storage solutions in hallways, under staircases, or even within the bathroom can transform unused areas into functional spaces. Another smart move is using open-concept living areas that flow seamlessly from the kitchen to the dining room and living room. This creates the illusion of larger spaces and makes entertaining easier. The key is thinking about traffic flow - where people move through the house and how that affects daily routines.

Practical Design Considerations
Before diving into any blueprint, consider your family's actual needs. Do you have teenagers who need their own space? Are you planning to work from home? What's your family's daily routine like? These questions shape the best layout. For instance, if you're a morning person, having your kitchen close to the main entrance might make sense. If you prefer to cook in the evening, maybe a separate dining area works better. The placement of the bathroom is also crucial. Having a bathroom near the bedrooms reduces morning chaos and makes the house feel more comfortable. Some homeowners prefer the master bathroom to be separate from the others, while others find it convenient to have a shared bathroom for the kids and guest room. The right decision depends entirely on your lifestyle and preferences.

Popular Variations and Modern Trends
While the classic 3 bedroom 2 bathroom layout remains popular, modern trends are introducing new possibilities. Open-concept designs are becoming increasingly common, especially in newer homes. These layouts eliminate walls between the kitchen, dining, and living areas, creating a more social atmosphere. Some homeowners opt for a flex room that can serve multiple purposes - a home office, playroom, or guest bedroom. Others choose to incorporate a study or library that doubles as a reading nook. The trend toward smart home technology also influences modern blueprints. Features like smart lighting, automated thermostats, and integrated entertainment systems are now standard considerations. These elements can dramatically change how a house feels and functions.

Budget-Friendly Blueprint Solutions
Not everyone has unlimited funds for their dream home, and that's perfectly okay. Smart blueprint choices can help stretch your budget further. Start with the basics - keep the layout simple and avoid unnecessary hallways or complex shapes. A straightforward rectangular design costs less than an L-shaped or irregularly shaped house. Choose materials wisely. You don't need to spend extra on premium flooring throughout the entire home. Consider using the same flooring material in high-traffic areas and different options elsewhere. The kitchen and bathrooms are often the biggest expenses, so plan carefully. Sometimes a smaller kitchen island or a simple vanity can look elegant without breaking the bank. Remember, it's not about the size of the house - it's about making the most of what you have.
Choosing the Right Professional
When it comes to getting your blueprint right, you want someone who understands both design and construction. Look for architects or designers who specialize in residential projects and have experience with 3 bedroom 2 bathroom layouts specifically. Ask to see examples of their previous work, especially similar homes in your neighborhood or area. Don't just focus on price - consider the designer's communication skills and whether they listen to your needs. A good professional will ask questions about your lifestyle, your family's habits, and your future goals. They should be able to explain how each design choice impacts your daily life. The blueprint process isn't just about drawing lines - it's about understanding how you live and helping you create a space that supports your life, not the other way around.
A well-designed 3 bedroom 2 bathroom house blueprint isn't just about aesthetics - it's about creating a home that works for you. Every detail matters, from the positioning of the bedrooms to the flow between rooms. Take your time with the planning phase. It's easy to rush through this step, but the decisions you make now will affect your daily life for years to come. Remember that these blueprints are a roadmap, not a rigid rulebook. While they provide structure and guidance, they should reflect your unique lifestyle and preferences. Whether you're building your first home, renovating an existing space, or simply dreaming about what could be, the right blueprint gives you the foundation for a successful outcome. The investment in thoughtful planning pays dividends in comfort, functionality, and peace of mind. Your future self will thank you for taking the time to get it right from the start.