Every family has their own vision of the perfect home. For many, that dream includes three bedrooms and two bathrooms. But what makes a 3 bedroom 2 bath house truly special? It's not just about square footage or number of rooms. It's about how those spaces work together to create comfort, functionality, and style that suits your lifestyle.
When you're planning your next home purchase or construction project, the 3 bedroom 2 bath layout consistently ranks among the most popular choices. Why? Because it strikes that perfect balance between spaciousness and practicality. These homes offer enough room for growing families, guests, or even a home office, while remaining manageable in terms of maintenance and cost. Whether you're looking for a modern minimalist design or a cozy traditional feel, the 3 bedroom 2 bath format provides the canvas for countless possibilities. This guide will walk you through everything you need to know about creating and choosing the best 3 bedroom 2 bath house designs that fit your needs and dreams.
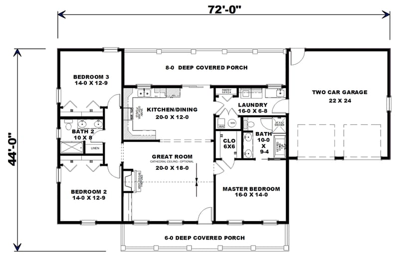
The Classic 3 Bedroom 2 Bath Layout

The traditional 3 bedroom 2 bath floor plan typically features a master suite with its own bathroom, plus two additional bedrooms and a shared bathroom. This arrangement makes sense for most families. Picture a home where one bedroom serves as a parent's retreat with private access to a bathroom, while the other two rooms might accommodate children or guests. The shared bathroom becomes a central hub of activity, often serving as the family's morning routine area. Many homeowners find this configuration ideal because it allows for privacy while keeping common areas efficient. The master bedroom usually sits at the far end of the house, away from the main living areas, providing that peaceful sanctuary everyone deserves.
Smart Room Placement Strategies
Where you place each room can make or break your home's functionality. Consider these placement tips:

These simple rules can transform a good house into a great one. A well-planned layout means less rushing in the mornings and more time for what matters most. Sometimes it's the small details that make the biggest difference.
Modern Trends in 3 Bedroom 2 Bath Homes
Today's homeowners are redefining what a 3 bedroom 2 bath house can be. Open-concept living areas have become increasingly popular, allowing families to gather in one large space rather than feeling separated by walls. Smart home technology integration is another major trend, with built-in systems for lighting, temperature control, and security seamlessly woven into the design. Many modern 3 bedroom 2 bath homes feature energy-efficient appliances and sustainable materials that reduce environmental impact while cutting costs. The kitchen often becomes the heart of the home, with islands that serve multiple purposes and high-end finishes that make cooking and entertaining more enjoyable. These trends show how traditional layouts can evolve to meet contemporary needs.

Maximizing Space Efficiency
Space is precious, especially when you're working within a fixed footprint. Here's how to make every inch count:
Think about how you actually live versus how you think you'll live. The most successful designs are those that reflect real-life habits rather than theoretical perfection. A cleverly designed closet can save you hours of daily organization, while a well-thought-out pantry can transform meal prep from chore to pleasure.

Bathroom Design Considerations
Bathrooms deserve special attention since they're both functional and personal spaces. For a 3 bedroom 2 bath home, consider these elements:
Many homeowners overlook the importance of proper ventilation, but it's vital for preventing mold and maintaining air quality. Think about how you want to start your day - do you prefer a relaxing soak in the tub or a quick shower? The answer might influence your bathroom layout decisions.

Cost-Effective Design Solutions
Creating your dream 3 bedroom 2 bath home doesn't have to break the bank. Here are some budget-conscious approaches:
Working with a skilled designer can help you prioritize where to spend more and where to save. Remember, the cheapest option isn't always the most economical over time. Sometimes investing in better insulation or energy-efficient windows pays dividends through lower utility bills. Think of your home as an investment that should grow in value over time.
The 3 bedroom 2 bath house design offers something special: the sweet spot between spaciousness and manageability. Whether you're building your first home or upgrading your current space, these layouts provide flexibility that adapts to changing family needs. From smart room placement to modern amenities, the key is finding a balance that works for your lifestyle. The best house designs aren't just about following trends or meeting checklist requirements. They're about creating a space where memories happen, routines are comfortable, and everyday life feels effortless. When you choose a 3 bedroom 2 bath home, you're choosing a foundation for your future happiness. Every detail, from the master bathroom to the kitchen island, contributes to the overall experience of living well. The right design makes all the difference in how you spend your days and nights.