Picture this: you're walking through your new home, feeling completely at ease. The kitchen flows beautifully into the living space, there's enough room for guests to stay over, and each bedroom feels like its own peaceful retreat. That's exactly what a well-designed 2 bedroom 2 bathroom house plan can deliver. These layouts are incredibly popular because they strike the perfect balance between comfort and functionality. Whether you're planning a new build, remodeling an existing space, or simply dreaming about your next home purchase, understanding how to optimize this classic configuration is essential.
There's something special about a 2 bedroom 2 bathroom house plan that makes it appealing to such a wide range of people. It's not just about the numbers – though having two bedrooms and two bathrooms does solve many practical problems. This layout works wonderfully for young couples, small families, or even empty nesters looking for a comfortable place to live. The beauty lies in how efficiently these homes utilize space while still providing privacy and comfort. Think about it – when you have two bedrooms, you get that much-needed separation for family members or guests. And two bathrooms? Well, that eliminates those morning chaos moments when everyone's trying to get ready at once. It's the kind of practical thinking that turns good house plans into great ones.

Understanding Different Layout Styles
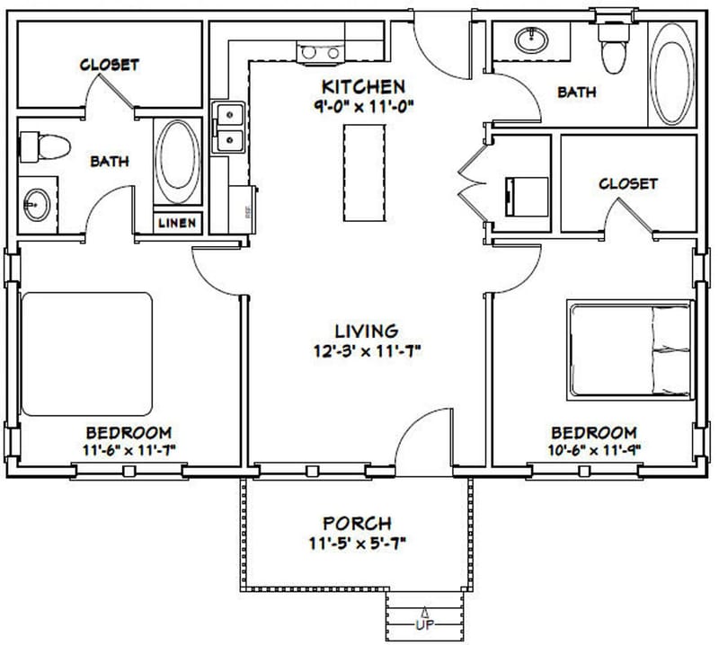
When you look at 2 bedroom 2 bathroom house plans, you'll notice several common styles that work well for different needs and preferences. The most straightforward approach is the traditional layout where both bedrooms are positioned on the same side of the home, typically with the bathrooms nearby. This creates a logical flow and makes sense for families who want their private spaces close together. Another popular option is the open-concept design that blends the kitchen, dining, and living areas. This style can make smaller homes feel more spacious and allows for better interaction between family members. For those who prefer more separation, you might see a design where one bedroom and bathroom are located on one side of the home, while the other bedroom and bathroom are on the opposite side. This setup provides excellent privacy and can be particularly helpful if you're hosting guests or have a home office.

Key Design Elements to Consider
Planning a 2 bedroom 2 bathroom house requires thoughtful consideration of several important elements. First and foremost, think about traffic flow. How will people move through your home? The kitchen should ideally connect smoothly to the main living areas, and the bedrooms should be easily accessible from the hallway or central area. Consider the placement of windows and natural light sources. Good lighting can transform how a space feels, especially in bedrooms where you want to wake up refreshed and energized. Storage is another crucial factor. Where will you keep clothes, linens, and daily essentials? Built-in closets and storage areas within the bedrooms can maximize your available space. Also, don't overlook the importance of the master suite. Even in a 2 bedroom layout, having one bedroom designed as a primary suite with its own private bathroom often provides the most comfort and luxury.

Space Optimization Strategies
Maximizing every square foot becomes especially important when designing a 2 bedroom 2 bathroom house plan. One effective technique is using multi-functional furniture and spaces. For instance, a hallway could serve as a small reading nook or display area. You might consider a bedroom that doubles as a guest room with a Murphy bed or pull-down sleeping area. Another smart approach involves creating flexible spaces that can change function based on your needs. A study or den might serve as an extra bedroom when guests visit, or double as a home office during regular times. The bathroom area also offers opportunities for clever design solutions. Consider using a double vanity to save space while giving both users access to amenities. Sometimes, a small powder room can be converted into a linen closet or storage space when not needed for its primary purpose.

Popular Floor Plan Configurations
There are several proven floor plan configurations that work exceptionally well for 2 bedroom 2 bathroom homes. The U-shaped layout features the kitchen positioned at one end with the bedrooms and bathrooms arranged along the opposite wall. This design allows for efficient workflow in the kitchen while keeping all sleeping areas together. The L-shaped configuration places the kitchen at one corner with the bedrooms and bathrooms extending from another corner. This arrangement often provides more natural light and can create interesting visual dynamics. The open layout combines the kitchen, dining, and living areas into one large space, with the bedrooms and bathrooms positioned in a separate area. This modern approach is very popular for its flexibility and contemporary feel. The split-level design offers a unique approach with one bedroom and bathroom on a lower level and the other bedroom and bathroom on a higher level. This can provide excellent separation for family members while maintaining easy access to shared spaces.

Practical Considerations for Daily Living
The real test of any good house plan comes down to how well it supports daily life. Think about how you actually live and what your routine looks like. Do you need to cook breakfast before leaving for work? Then your kitchen should be convenient and well-lit. Are you someone who likes to entertain? You'll want a dining area that's close to the kitchen and easily accessible. Consider the noise levels in your home. If you have children, having the bedrooms away from high-traffic areas can create a quieter environment. Also, think about future needs. Will you need to accommodate aging parents or elderly relatives? Having accessible features built into the design from the beginning can make a huge difference later on. Don't forget about practical items like laundry facilities. Many 2 bedroom 2 bathroom designs include a utility room or laundry area that's easily accessible from the bedrooms.
Budget-Friendly Design Tips
Building or renovating a 2 bedroom 2 bathroom house doesn't have to break the bank. Start by prioritizing the areas that matter most to you. Perhaps the kitchen and bathrooms are your top priorities, while the living spaces can be simpler. Smart choices about materials and finishes can help stretch your budget further. For example, choosing quality cabinets in the kitchen rather than expensive countertops might give you better value overall. Consider using similar flooring throughout the home to reduce costs and create a cohesive feel. Sometimes the most affordable solution is to simplify the layout rather than add unnecessary features. A clean, simple design often works better in the long run and is easier to maintain. Remember to account for hidden costs like permits, utilities, and unexpected repairs. Budgeting for these extras can prevent surprises later on.
A well-thought-out 2 bedroom 2 bathroom house plan can truly transform how you experience your home. It's not just about the numbers on paper – it's about creating spaces that support your lifestyle and bring joy to your everyday routine. Whether you're building a new home or renovating an existing one, taking time to carefully consider the layout, flow, and functionality will pay dividends for years to come. The key is to think beyond the basic requirements and consider how you actually live. What matters most to you? Is it quiet mornings in the master suite? Or perhaps a welcoming space for friends and family? Whatever your priorities, there's a 2 bedroom 2 bathroom design out there that can meet your needs perfectly. The best approach is to explore various options, talk to professionals, and trust your instincts about what feels right for your life.