When you're searching for the right home, the floor plan often makes all the difference. A 3 bedroom 2 bathroom layout strikes a perfect balance between spaciousness and efficiency. Whether you're planning a new build, remodeling an existing space, or simply dreaming about your next home, understanding these layouts can save you time, money, and countless headaches.
Picture this: you're walking into your new home, feeling that sense of calm and comfort that only comes from knowing every room has its purpose. You've got three bedrooms, two bathrooms, and enough space for family gatherings, quiet reading sessions, and everything in between. That's exactly what a well-designed 3 bed 2 bath floor plan can offer. These layouts aren't just about square footage – they're about creating spaces that work for how you actually live. They're about finding that sweet spot between privacy and togetherness, between functionality and flow.
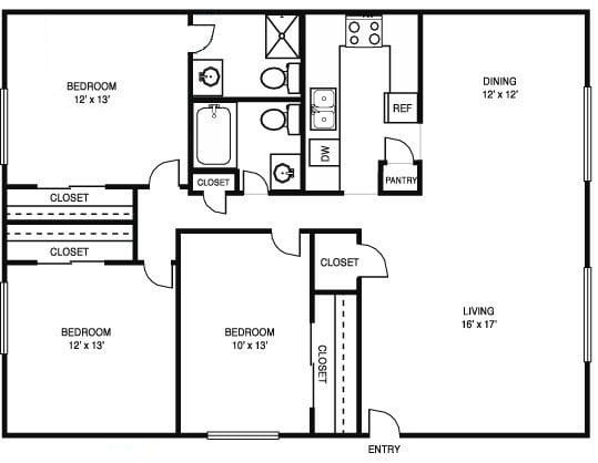
The Classic 3-Bed 2-Bath Layout
The traditional 3 bedroom 2 bathroom house plan is probably the most common layout you'll find. It typically features a central hallway or open living area with bedrooms positioned on either side. This arrangement works beautifully for families with children, as it allows for easy access to all sleeping areas while keeping parents' bedrooms separate from kids'.
Key elements of this style include:
This setup works especially well when one bedroom is designated for guests or a home office, leaving the others for primary occupants. It's also ideal for growing families, giving everyone their own space while maintaining family connections.
Open Concept Versus Traditional Separation

One of the biggest decisions in designing a 3 bed 2 bath home is whether to go with an open concept approach or stick with traditional room separation. Open floor plans have become increasingly popular because they make spaces feel larger and encourage social interaction.
Open concept benefits include:
However, traditional layouts still have their charm. They provide distinct zones for different activities, which is great for families with varying schedules. The separation helps maintain privacy during meal times or when someone needs quiet study time.
Many modern designs blend both approaches, offering open areas for communal activities while preserving private spaces for personal use.
Bathroom Design Considerations
The two bathrooms in a 3 bed 2 bath plan deserve special attention. You'll want to think about how they'll be used and what features will make them functional and comfortable.
Consider these bathroom design elements:

A common mistake is assuming that two bathrooms means everything must be identical. Sometimes it's better to have one luxurious master bathroom with premium fixtures and another more practical option for the rest of the family. Think about your lifestyle and what makes each bathroom feel special.
Bedroom Arrangement Strategies
Where you place your bedrooms can dramatically affect your home's vibe and functionality. There are several ways to arrange three bedrooms in a 3 bed 2 bath layout.
Popular bedroom arrangements include:
The master bedroom usually gets the best location – perhaps facing the backyard or with the most natural light. It should feel like a retreat from the rest of the house. The other bedrooms can vary in size based on their intended use, whether for children, guests, or home offices.
Think about traffic flow too. You don't want to walk through someone's bedroom to get to the bathroom. Good placement creates logical pathways through your home.
Kitchen and Living Area Integration

In modern 3 bed 2 bath homes, the kitchen and living spaces often blend together seamlessly. This integration creates a more fluid environment where cooking and entertaining feel natural.
Important aspects of kitchen-living integration:
The key is maintaining the kitchen's functionality while ensuring it feels part of the main living area. Many homeowners prefer islands that double as prep areas and casual seating. This setup works perfectly for families who enjoy cooking together or hosting small gatherings.
Practical Tips for Maximizing Space
Every inch matters in a 3 bed 2 bath floor plan. Here are some strategies to make the most of your available space:
Don't forget about natural light – large windows and skylights can transform how a space feels. Also, think about how you move through the house daily. Where do you spend most of your time? How do you want to entertain? Answering these questions will guide your layout decisions.
Cost Considerations and Design Choices

Building or renovating around a 3 bed 2 bath floor plan involves various costs and decisions that can impact your budget significantly. Understanding these factors early helps avoid surprises later.
Key cost considerations include:
It's worth noting that some design choices may seem expensive upfront but save money over time. For example, energy-efficient windows might cost more initially, but they reduce heating and cooling bills. Similarly, good quality flooring can last decades and require less replacement than cheaper alternatives.
Consider your priorities when planning. What features matter most to you? Is it a large master bathroom, extra storage space, or perhaps a dedicated home office? Knowing your priorities helps allocate your budget effectively.
Future-Proofing Your Home Layout
Planning for future changes is essential when choosing a 3 bed 2 bath floor plan. Life happens, and your home should adapt to changing needs.
Consider these future-proofing elements:

Many modern homes include adaptable spaces that can become guest rooms, home offices, or play areas depending on your life stage. Think about whether you might want to care for elderly parents, start a business from home, or simply need more space for guests.
Also consider the resale value. A well-thought-out 3 bed 2 bath layout tends to appeal to a wide range of buyers, making it easier to sell later if needed.
Real-World Examples and Inspiration
Looking at actual examples can help bring abstract concepts to life. Real homes with 3 bed 2 bath layouts show how thoughtful design transforms simple spaces into lived-in comfort.
Some inspiring examples include:
Each example demonstrates how the same basic layout can be adapted to different aesthetics and lifestyles. The key is understanding how the space serves the people who will live in it. Whether you prefer rustic charm or sleek modernity, there's a 3 bed 2 bath layout that matches your vision.
Making the Right Choice for Your Family
Ultimately, the best 3 bed 2 bath floor plan depends on your unique situation and preferences. Every family is different, with different needs and priorities.
Ask yourself these questions:
These answers will guide your decision-making process. Some families prioritize quiet bedrooms away from the main living areas, while others want everything connected. Some need a dedicated workspace, others want more entertainment space. There's no single 'right' way – just the right way for you.
Don't rush the decision. Take time to walk through different layouts, imagine how you'd use each space, and consider how the home might change as your family grows or evolves. A thoughtful 3 bed 2 bath plan becomes a foundation for happy memories and comfortable living.
A well-designed 3 bed 2 bath floor plan isn't just about square footage or architectural style – it's about creating a space that truly supports your lifestyle. Whether you're building a new home, renovating an existing space, or simply dreaming about your perfect living situation, understanding these layouts gives you power to make informed decisions. Remember that the best floor plan is one that reflects your daily needs and dreams. Take time to consider all the factors, think about your future, and trust your instincts. After all, this is your home – the place where memories are made and lives unfold. The right 3 bed 2 bath layout will make that journey easier, more enjoyable, and infinitely more satisfying.