Picture this: you're standing in your newly designed home, feeling the perfect balance between comfort and functionality. That's exactly what a well-thought-out 3 bedroom 2 bathroom floor plan can deliver. These layouts aren't just about having three bedrooms and two bathrooms – they're about creating spaces that work for your lifestyle. Whether you're planning a new build or renovating your current home, understanding how to arrange these rooms effectively can transform your living experience.
When it comes to home design, few configurations capture the sweet spot between spaciousness and practicality quite like the classic 3 bedroom 2 bathroom floor plan. This setup has become a staple in residential architecture because it strikes that perfect balance between family needs and efficient space utilization. It's not just about counting rooms – it's about creating flow, maximizing natural light, and ensuring every square foot serves a purpose. Whether you're a growing family, empty nesters looking to downsize, or someone who simply appreciates thoughtful design, understanding the nuances of 3BR 2BA layouts can save you time, money, and countless hours of decision-making.

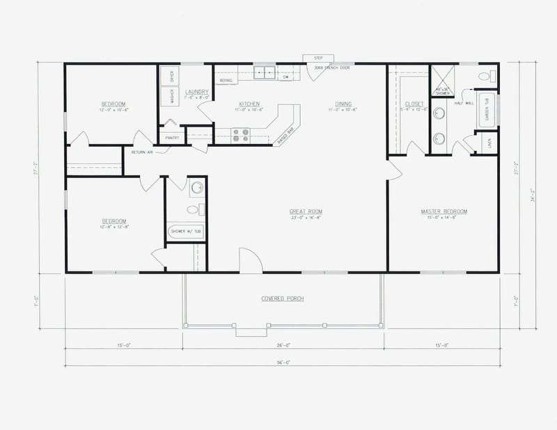
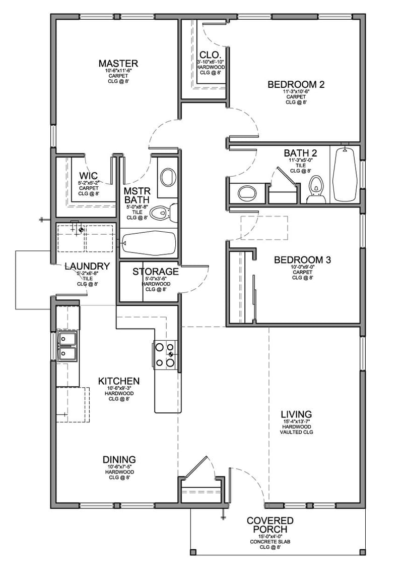
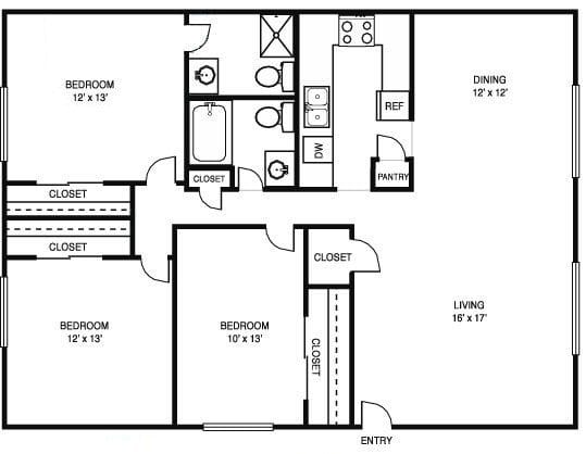
Understanding the Basics of 3BR 2BA Layouts
The fundamental structure of a 3 bedroom 2 bathroom floor plan revolves around creating distinct zones within your home while maintaining open, welcoming spaces. The typical configuration includes three sleeping areas, two full bathrooms, and often a shared common area that ties everything together. What makes these layouts so appealing is their flexibility. You can position the bedrooms strategically based on privacy needs, lighting exposure, or even family dynamics. Some homes place all bedrooms on one side, others spread them across different levels, and some even feature a master suite with its own private bathroom. The beauty lies in how each arrangement addresses different lifestyle preferences while still maintaining the essential 3BR 2BA framework.

Key Design Considerations for Bedroom Placement
Where you place those three bedrooms can make or break your daily routine. Many designers prefer putting the largest bedroom away from high-traffic areas, often using it as a master suite. This creates a peaceful retreat that feels separate from the rest of the house. The second bedroom typically becomes the guest room or child's bedroom, often positioned near the main bathroom for convenience. The third bedroom offers versatility – it might serve as a study, playroom, or additional sleeping space. Consider factors like natural light, noise levels, and privacy when positioning each room. For instance, placing bedrooms on opposite sides of the house can reduce noise transfer, while grouping them together can create a more intimate family wing.

Bathroom Optimization Strategies
Two bathrooms in a 3BR layout offer tremendous advantages for family life. The most common approach divides them between the main living areas and the bedroom wing. A main bathroom near the entryway handles morning routines for everyone, while a secondary bathroom near bedrooms provides private access for family members. Think about accessibility too – if you have aging parents or family members with mobility concerns, consider adding features like grab bars or walk-in showers. Smart placement means keeping one bathroom easily accessible from the main living areas, while the other can serve as a more private retreat. This dual-bathroom system prevents morning chaos and ensures everyone has their own space when needed.

Open Concept vs. Traditional Separation
One of the biggest decisions in 3BR 2BA design involves choosing between open concept and traditional separation styles. Open floor plans create a sense of spaciousness and allow for better interaction between family members. They work particularly well in homes where the kitchen, dining, and living areas flow together seamlessly. However, traditional layouts with defined walls and separate rooms provide more privacy and sound insulation. The choice often depends on your family's social habits and lifestyle. Families who enjoy cooking together might prefer open concepts, while those who value quiet personal time might lean toward separate zones. Many modern designs blend both approaches, creating flexible spaces that can adapt to different activities and moods throughout the day.

Maximizing Storage and Functional Spaces
Efficient storage solutions are crucial in any home, but especially in 3BR 2BA layouts where every inch counts. Built-in closets, walk-in pantries, and clever storage solutions tucked into corners can dramatically increase usable space. Consider incorporating a mudroom or laundry room that doubles as storage and entryway functionality. The kitchen deserves special attention too – ample counter space, organized pantry areas, and smart appliance placement can make meal preparation feel effortless. When designing your layout, think about where items will be used most frequently and ensure those areas are easily accessible. For example, keeping the refrigerator near the dining area and storage cabinets near the kitchen prep zone can streamline daily routines. These thoughtful touches turn a good floor plan into an excellent one.
Practical Tips for Customizing Your Layout
Every family has unique needs, and that's why customization matters so much in 3BR 2BA designs. Start by listing your must-haves – do you need a home office? Will you host guests regularly? Do you have young children who need dedicated play areas? These questions guide the overall flow of your space. Consider adding features like a breakfast nook, a cozy reading corner, or even a small library. Sometimes the best layouts come from thinking outside the box – perhaps converting a hallway into a small sitting area, or creating a multi-purpose room that can serve various functions. Don't forget about outdoor connections too; sliding doors that lead to patios or decks can extend your living space naturally. The key is balancing standard expectations with personal preferences to create something truly yours.
The journey toward finding your ideal 3 bedroom 2 bathroom floor plan isn't just about following trends – it's about crafting a space that reflects your life and supports your daily rhythm. These layouts offer incredible versatility, whether you're building a new home or remodeling an existing one. From strategic bedroom placement to smart bathroom organization, every element contributes to your overall satisfaction. Remember, there's no one-size-fits-all solution, but by focusing on functionality, flow, and personal preference, you'll create a home that feels both comfortable and uniquely yours. The investment in thoughtful design pays dividends in daily happiness and long-term value. Ultimately, the perfect 3BR 2BA floor plan is one that works seamlessly with your lifestyle, making every day feel a little bit easier and more enjoyable.