Picture this: a cozy family home that feels spacious and functional, all within a single floor plan. That's exactly what one story homes with basements offer. These clever designs have become increasingly popular because they combine the ease of single-level living with the extra space that families crave. Whether you're planning a new build or remodeling an existing space, understanding how to properly incorporate a basement into your one story layout can transform your living experience.
When you think about home design, the traditional single-story layout often comes to mind. But what if you could have all the benefits of a two-story house while keeping everything on one level? Enter the one story home with basement—a brilliant solution that's capturing attention across the country. These homes offer something special: the convenience of ground-level living combined with the additional square footage that many families need. The basement area adds that crucial extra space for entertainment areas, guest rooms, or even a home office. It's like having a secret weapon in your home design arsenal. The beauty lies in how seamlessly these spaces can blend together, creating a cohesive living environment that feels both open and intimate.
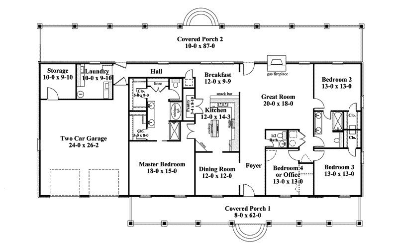
Understanding the Basics of One Story Home Plans

A one story home plan refers to a residential design where all living spaces are located on the same floor level. This means no stairs to navigate between bedrooms, living areas, or kitchen spaces. For those who prefer accessibility or have mobility concerns, this design choice makes a lot of sense. The key to making a one story home work effectively is strategic planning of how to maximize every inch of available space. When you add a basement to this equation, you're essentially getting an entire second floor's worth of room without the hassle of climbing stairs. Think of it as having an extra bedroom, or maybe a complete recreation area, tucked away beneath the main living space. This approach works particularly well for growing families who want to avoid the complications of multi-level homes.
Benefits of Incorporating a Basement into Single-Level Design
There are several compelling reasons why adding a basement to your one story home plan makes perfect sense:

The basement area offers a unique opportunity to create distinct zones within your home. You might have a family room down there, with bedrooms upstairs, or perhaps a home theater in the basement with a separate entrance. The possibilities are nearly endless when you think about how to best utilize that underground space.
Popular Basement Layout Options for One Story Homes
Designing your basement area requires careful consideration of how you'll use the space. Here are some of the most common and effective configurations:

Consider how much natural light the basement will receive when planning these areas. If your basement has windows, you might want to position your entertainment area or work space there. If not, good artificial lighting becomes essential. Many homeowners find that their basement becomes their favorite part of the house when thoughtfully designed.
Key Design Considerations for Basement Integration
Planning a basement for your one story home involves several important decisions that affect both function and aesthetics:

One thing that often catches people off guard is how much space you actually lose to utility access points like water heaters, electrical panels, and HVAC systems. These elements need to be planned around rather than ignored. Also, remember that the basement area needs to feel connected to the main living space, not isolated. Good design choices like consistent flooring materials or similar color schemes can help maintain visual continuity.
Cost Analysis and Budget Planning
Adding a basement to a one story home is a significant investment, but it's often one of the smartest ways to increase your home's value. Here's what you should expect in terms of costs:

The total cost varies greatly based on the size of the basement, the level of finish desired, and local building codes. Some homeowners choose to do the work themselves to save money, while others prefer to hire professionals. Regardless of your approach, budgeting for unexpected issues is always wise. Foundation problems, drainage issues, or hidden structural concerns can pop up during construction and add to the overall cost. Many people find that the return on investment for a finished basement ranges from 60% to 80%, making it a solid financial decision.
Tips for Successful Basement Implementation
Creating a successful basement space requires both practical planning and creative thinking:
Many people overlook the importance of proper insulation in basement areas. A well-insulated basement not only keeps the space comfortable but also helps regulate the temperature of the entire home. Additionally, consider how the basement will integrate with your home's overall energy efficiency strategy. Some homeowners find that a finished basement actually improves their home's heating and cooling performance by providing more stable indoor temperatures.
One story home plans with basement represent a smart approach to modern living that combines practicality with flexibility. These designs address common challenges faced by families looking for spacious, accessible homes without the complexity of multi-level layouts. From entertainment areas to guest suites, the possibilities for basement integration are virtually limitless. The key is thoughtful planning and considering how each element contributes to your daily life. Whether you're building a new home or renovating an existing one, incorporating a basement into your single-level design can significantly enhance both comfort and value. The investment pays off not just financially, but in the quality of life improvements that come with having more space to live, work, and enjoy. As you move forward with your project, remember that the most successful basement designs are those that serve your lifestyle while maintaining harmony with the rest of your home. The result? A space that feels both expansive and intimate, practical and beautiful.