Picture this: a home that's just big enough to feel spacious, yet small enough to manage easily. That's the magic of 1500 square feet. It's not too cramped, not too overwhelming, and certainly not too expensive. This size strikes that perfect balance between comfort and practicality. Whether you're a young couple, a growing family, or someone looking to downsize smartly, a 1500 sq ft house plan can be the answer you've been searching for.
When it comes to home design, size matters—but not always in the way you might think. A 1500 square foot home isn't just about fitting everything into a smaller space. It's about thoughtful planning, smart choices, and creating a living environment that feels both cozy and functional. These homes have become increasingly popular because they offer a sweet spot between affordability and comfort. They're manageable to maintain, energy-efficient, and often more affordable than larger homes. Plus, they provide enough room for families to grow while keeping costs reasonable. Let's dive into what makes these designs so appealing and how you can make one work perfectly for your lifestyle.
The Appeal of Compact Living Spaces
There's something incredibly appealing about homes that feel spacious despite their modest size. A 1500 sq ft layout offers several advantages that many homeowners find irresistible. First, there's the cost factor. Smaller homes typically mean lower purchase prices, reduced maintenance expenses, and less money spent on utilities. You're not paying for unnecessary square footage that sits empty or unused. Second, these homes are often easier to clean and organize. Fewer rooms mean fewer places for clutter to hide, making daily life simpler. Third, they're more environmentally friendly. Less space means less energy used for heating and cooling, and less material required for construction. Think about it—your home doesn't need to be massive to feel like a true sanctuary. Sometimes, less really is more when it comes to creating a comfortable living space.
Key Design Principles for 1500 Square Feet
Designing a 1500 sq ft house requires a different mindset than larger homes. The key lies in maximizing every inch without feeling cramped. Here are some essential principles:

For example, a kitchen island can double as a breakfast bar and casual dining area. A study or office could convert into a guest room when needed. These design choices ensure your home remains practical and comfortable as your needs change.
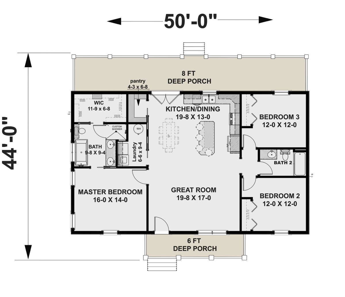
Essential Rooms and Layouts
What does a typical 1500 sq ft home look like? It usually includes:
The most common layouts include:
A well-designed 1500 sq ft plan might feature a main bedroom with ensuite bathroom, two additional bedrooms, a shared bathroom, a kitchen with breakfast nook, and a living area that flows naturally into the dining space. The key is making each room feel purposeful rather than cramped.
Maximizing Storage in Limited Space

Storage is crucial in smaller homes, and creative solutions make all the difference. Consider:
One popular approach is using the entire height of walls for storage. Think tall bookcases that reach the ceiling, or wall-mounted cabinets that utilize vertical space effectively. Another clever trick involves incorporating storage into everyday furniture—like ottomans with hidden compartments or coffee tables with built-in drawers. These solutions keep your home organized without sacrificing style.
Popular Features and Amenities
Modern 1500 sq ft homes often include features that enhance comfort and convenience:
Many homeowners appreciate features like walk-in closets, which can be incorporated even in smaller spaces. Some opt for a covered porch or deck that extends outdoor living. Others focus on creating a sense of openness with high ceilings or open floor plans. These elements help make the most of the available square footage while maintaining visual appeal.
Cost Considerations and Budget Planning

Building or buying a 1500 sq ft home can be more budget-friendly than larger alternatives. However, there are still important financial considerations:
Generally speaking, a 1500 sq ft home costs significantly less to build or buy than a 2000+ sq ft house. But remember that quality materials and finishes can impact the final price. For instance, a basic 1500 sq ft home might cost $150-$200 per square foot, while a higher-end version could range from $250-$400 per square foot. It's worth noting that the total cost also depends on location, design complexity, and local labor rates. Planning ahead and understanding these factors helps ensure your project stays within budget.
Choosing the Right 1500 Square Foot Plan
Selecting the perfect 1500 sq ft home plan involves several considerations:
Consider whether you want a single-story layout or one with multiple levels. Single-level homes are often better for accessibility, while two-story designs can maximize space efficiency. Think about your daily routines—do you need a dedicated workspace, or would a multi-purpose room work better? Also, consider how much outdoor space you desire. A 1500 sq ft home might include a small backyard, a deck, or even a patio area that complements your lifestyle. Ultimately, the right plan reflects your priorities and how you intend to live.
Making Your 1500 Square Foot Home Feel Big

Sometimes, the perception of space matters as much as actual square footage. Here are ways to make your 1500 sq ft home feel more expansive:
A light-colored living room with large windows can instantly make a space feel airy and roomy. Mirrors reflect light and create the illusion of depth. Choosing appropriately-sized furniture prevents overcrowding. Keeping surfaces clear and organizing belongings away from sightlines also helps. These techniques allow you to make the most of your square footage without feeling restricted.
Real-Life Examples and Inspiration
Looking at actual examples can help visualize how 1500 sq ft homes work in practice. Some popular styles include:
Take for example, a ranch-style home with an open kitchen and dining area flowing into a living room. The master suite features a private bathroom and walk-in closet. Two additional bedrooms share a bathroom. There's also a small study that can double as a guest room. This arrangement provides plenty of usable space while maintaining an intimate feel. These real-world examples show how thoughtful planning transforms limited square footage into functional comfort.
Future-Proofing Your Home Design

Thinking ahead is crucial when designing a 1500 sq ft home. Consider how your needs might change over time:
A flexible design allows for modifications as circumstances evolve. For instance, a room that starts as a playroom could later become a home office. Adding features like wider doorways, grab bars, and accessible layouts helps accommodate aging family members. Incorporating technology-ready spaces ensures your home remains current. These forward-thinking approaches help maintain your home's value and usability over time.
Common Mistakes to Avoid
Several pitfalls can undermine the success of a 1500 sq ft home:
Too many design elements can make a small space feel chaotic. Failing to plan for adequate storage leads to clutter and stress. Poor lighting choices can make rooms feel dark and uninviting. Inadequate consideration of movement paths creates awkwardness in daily life. Lastly, not accounting for heating and cooling efficiency increases monthly expenses. Avoiding these issues requires careful planning and attention to detail.
Sustainable and Energy-Efficient Options
Energy efficiency is particularly important in smaller homes due to their compact nature:
These features not only reduce environmental impact but also save money on utility bills. A well-insulated 1500 sq ft home can maintain comfortable temperatures with less energy. Solar panels can offset electricity costs, especially if you have a good roof orientation. Low-flow showerheads and faucets reduce water usage. These sustainable practices make your home more comfortable and economical in the long run.
A 1500 square foot home isn't just about size—it's about intentionality, smart design, and thoughtful living. When approached correctly, these homes can be incredibly satisfying spaces that meet modern needs while remaining affordable and manageable. Whether you're planning a new build or considering a renovation, focusing on efficient layouts, quality materials, and practical features will help you create a home that truly works for you. Remember, the best house plan isn't necessarily the biggest one—it's the one that fits your lifestyle perfectly. With the right planning, a 1500 sq ft space can be anything you imagine it to be.