In a world where housing costs keep climbing and space gets smaller, 700 square feet might just be the sweet spot for many. It's not just about squeezing into tiny spaces – it's about smart design that makes every inch count. These compact homes offer incredible value, lower maintenance costs, and often come with a cozy charm that larger houses sometimes lack.
Picture this: you wake up in a space that's barely bigger than a small apartment but feels like home. That's exactly what 700 square feet can offer. This size strikes a perfect balance between practicality and comfort. Whether you're a young professional, a retiree, or someone looking to downsize, these layouts prove that less truly can be more. The key lies in thoughtful planning and creative thinking.
Why 700 Square Feet?

This size category has gained popularity for several reasons:
Many people assume that smaller homes mean sacrificing comfort, but when designed well, 700 sq ft can feel spacious and welcoming. The real magic happens in how you organize the space.
Essential Layout Considerations

When designing a 700 sq ft house plan, certain elements become crucial:
Consider how you actually live versus how you think you'll live. The kitchen might double as a dining area, and the living room could serve as a workspace. Think about your daily routines and build around them.
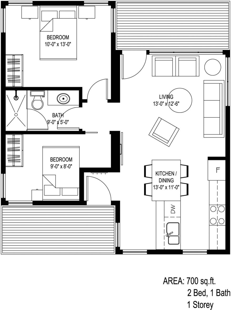
The Two-Bedroom Challenge

Adding two bedrooms to a 700 sq ft space requires careful planning:
One popular approach is to have one bedroom with a full-sized bed and another with a twin bed or pull-out sofa. Sometimes, the second bedroom can double as a home office or guest room during the week and sleeping space on weekends.
Smart Storage Solutions

Storage becomes a critical element in small spaces:
A good rule of thumb is to have at least one storage solution per person in the home. In a 700 sq ft space, every inch matters, so consider everything from clothing to books to kitchen supplies.
Lighting and Design Tips

Good lighting transforms a small space:
Think about how light moves through your space during different times of day. A well-lit room always feels bigger than a dimly lit one. Consider using light-colored flooring and furniture to enhance the feeling of openness.
Practical Examples and Inspiration
Real-world examples show what's possible:
Some homeowners opt for a studio-style layout with a separate bedroom area, while others prefer a more traditional approach with defined spaces. Both approaches can work beautifully when executed properly.
The 700 sq ft house plan isn't just about fitting everything into a small space – it's about creating a lifestyle that works within those boundaries. When you approach design with intentionality and creativity, even the smallest homes can feel expansive and comfortable. The key is to focus on quality over quantity, choose wisely, and remember that the right layout can make all the difference in how you experience your home.
Whether you're building from scratch or renovating, consider how each element contributes to your daily life. Sometimes the simplest solutions are the most elegant ones. With careful planning, a 700 sq ft home can provide everything you need for a happy, functional life.