Picture this: you've found the perfect lot, the right price, and now you're ready to design your ideal home. But how do you translate that vision into reality? Enter the 2000 square foot house plan with four bedrooms – a sweet spot that balances comfort, functionality, and practicality. Whether you're planning a family home, a retirement haven, or just want a cozy space that feels spacious, these layouts offer the perfect foundation.
When it comes to residential architecture, few sizes capture the imagination quite like 2000 square feet. It's not too small to feel cramped, nor too large to become unwieldy. For families, professionals, or anyone seeking a comfortable living space, this size offers incredible versatility. The four-bedroom configuration takes things up a notch, providing privacy for children, guests, or even a home office. This guide will walk you through everything from basic layouts to smart design choices that make your 2000 sq ft dream home a reality.
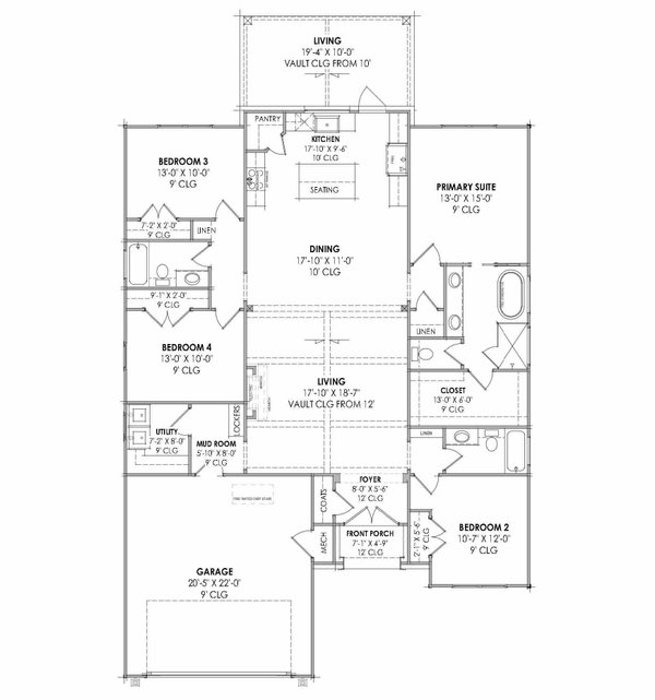
Understanding the 2000 Square Foot Constraint
Let's face it – 2000 square feet isn't exactly roomy by modern standards. That's about the size of a small apartment building, and yet, when properly planned, it can feel expansive. The key lies in smart space management. Think of each square foot as a valuable commodity that needs to serve multiple purposes. A well-designed 2000 sq ft home might feature a living area that doubles as a dining space, or a bedroom that could function as a study during the day and sleeping quarters at night. The challenge is maximizing every inch while maintaining comfort and flow. When you're working within this space, every door, window, and hallway becomes a decision point that affects your entire lifestyle.

Popular 4-Bedroom Layouts Explained
There are several ways to arrange four bedrooms in 2000 square feet. The most common configurations include:
Each style brings different benefits. The master suite front layout creates a sense of hierarchy and privacy. The central family zone promotes togetherness and communication. Split bedroom designs provide the best balance of privacy and convenience. Flex space layouts offer maximum adaptability for changing needs over time.
Kitchen and Dining Integration

In a 2000 sq ft home, the kitchen often becomes the heart of the house. This is where families gather, meals are prepared, and conversations flow. A well-planned kitchen in this size typically includes:
The kitchen shouldn't be isolated from the rest of the home. Open floor plans work wonderfully, allowing you to maintain visibility and connection while cooking. Consider a breakfast nook that leads into the living room, or a kitchen island that creates a natural barrier between cooking and dining zones. These elements help the space feel larger than it actually is, and they support the social aspect of modern family life.
Bathroom Planning and Efficiency
With four bedrooms, you'll likely need two full bathrooms. The placement of these spaces is crucial for both practicality and comfort. A typical approach involves:

This arrangement prevents morning chaos and ensures everyone has access to their own facilities. When planning bathroom layouts, consider:
Modern bathroom design focuses on efficiency without sacrificing comfort. A walk-in shower, double vanity, or separate tub/shower combination can make a big difference in daily routines. Remember, these spaces often get used the most, so make them functional and enjoyable.
Storage Solutions and Organization
One of the biggest challenges in 2000 sq ft homes is finding adequate storage. You have to think creatively about every corner of your space. Some effective strategies include:

A well-thought-out storage system can transform a cramped feeling into a perfectly organized space. Consider adding linen closets, pantry areas, and mudroom storage to keep everything in its place. These details often make the difference between a home that feels lived-in and one that feels professionally designed. The goal is to make every item easily accessible while keeping the visual appeal intact.
Outdoor Living and Connection
Even in 2000 sq ft, outdoor space matters enormously. Whether you have a backyard, deck, or patio, connecting indoor and outdoor living areas creates a seamless flow. Consider:
These connections help break down the barriers between inside and outside, making your home feel larger and more versatile. A well-designed outdoor space can extend your living area and provide additional room for family activities. The key is ensuring that outdoor areas complement your indoor layout, not compete with it.

Cost Considerations and Budget Planning
Building or buying a 2000 sq ft home with four bedrooms requires careful financial planning. Here are some budget considerations:
The cost per square foot varies dramatically based on location, materials, and complexity. In some markets, you might find excellent deals on existing homes, while others require significant investment. Remember that the total cost includes not just construction or purchase price, but also ongoing maintenance, utilities, and potential upgrades. It's worth investing in quality foundations and energy efficiency, as these decisions affect your daily life and long-term expenses.
Smart Technology Integration
Modern homes benefit greatly from technology integration, especially in compact spaces. Smart home features can enhance convenience and efficiency:
These technologies don't take up physical space but add tremendous value to your daily routine. They can help you manage your home more efficiently, improve security, and reduce energy consumption. In a 2000 sq ft space, every technology solution should enhance rather than complicate your lifestyle. The goal is to make your home smarter, not more complicated.
Final Thoughts on Designing Your Perfect Space
Creating the right 2000 sq ft house plan with four bedrooms is ultimately about understanding your lifestyle and translating that into physical space. Every element should support your daily routine, whether that means family gatherings, quiet work time, or simply relaxing after a long day. The key is balancing practical needs with aesthetic preferences. Think about how you want to live, what activities are important to you, and then build your home around those priorities. With careful planning and attention to detail, a 2000 sq ft space can feel spacious, comfortable, and perfectly suited to your unique way of life.
The journey toward your perfect 2000 square foot home with four bedrooms starts with understanding what's possible within your constraints. This size offers remarkable flexibility for families, professionals, and anyone who values thoughtful design. By focusing on smart layouts, efficient use of space, and thoughtful planning, you can create a home that truly reflects your lifestyle. Remember, the best house plans aren't necessarily the most expensive – they're the ones that fit your needs perfectly. Whether you're designing from scratch or renovating an existing space, these principles will guide you toward a home that feels just right. The 2000 sq ft canvas offers endless possibilities for creating a space that supports your dreams and daily realities.