When space is limited, every inch counts. For those dreaming of minimalist living, a 200 square foot tiny house offers the perfect balance between simplicity and functionality. This compact footprint challenges designers and homeowners alike to think creatively about how to maximize utility within such a small area.
The tiny house movement has captured hearts across the globe, and for good reason. These miniature marvels offer freedom from traditional housing constraints while maintaining comfort and style. When you're working with just 200 square feet, there's no room for wasted space. Every square foot must serve multiple purposes. Whether you're a first-time tiny house builder or someone looking to optimize their existing layout, understanding how to effectively design a 200 sq ft floor plan is crucial. This guide will walk you through the fundamental principles and creative solutions that make these compact homes work beautifully.
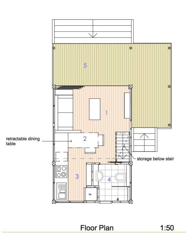
Understanding the 200 Square Foot Constraint

Working with such a small space requires a shift in perspective. Traditional home layouts assume plenty of room for separate areas, but a 200 sq ft tiny house demands clever thinking. Think of it like cooking in a tiny kitchen - you need to be strategic about where everything goes. The key is identifying your must-haves and finding ways to incorporate them efficiently. What's your lifestyle? Do you entertain often? Are you a digital nomad or prefer staying put? These questions shape how you'll approach your floor plan. A 200 sq ft space isn't just about fitting furniture inside - it's about designing a life around that space.
Essential Layout Strategies
The most successful 200 sq ft designs follow certain principles:

These approaches aren't just about saving space; they're about creating a more dynamic and adaptable environment. Consider a Murphy bed that folds up during the day, freeing up floor space for other activities. Or a dining table that doubles as a workspace when needed.
Key Room Arrangements
Most 200 sq ft floor plans incorporate these core areas:

The arrangement varies based on lifestyle needs. Some prefer a kitchen island that serves as a breakfast bar, while others might prioritize a dedicated sleeping area. The beauty of a 200 sq ft home lies in its flexibility - you can adjust the configuration to suit your specific requirements.
Smart Storage Solutions
Storage in tiny houses isn't just about having enough space - it's about organizing efficiently. Here are some proven methods:

The secret to successful storage is planning ahead. What items do you use daily versus those that come out seasonally? How much space do you actually need for your belongings? These questions guide smart decisions about what to store where. Many tiny house owners find they end up with less stuff than they expected, which makes the space even more manageable.
Lighting and Ventilation Considerations
Natural light makes a huge difference in how spacious a tiny home feels. Large windows, skylights, or glass doors can dramatically improve the sense of openness. When designing your 200 sq ft floor plan, consider:

Good lighting can make a 200 sq ft space feel much larger than it actually is. Similarly, proper ventilation keeps the air fresh and comfortable. These elements work together to create a welcoming environment despite the small size.
Practical Tips for Realization
Creating a successful 200 sq ft tiny house involves more than just design. Here are some practical considerations:
Many people underestimate how much work goes into making a 200 sq ft space truly livable. It takes careful thought, sometimes several iterations of design, and a willingness to simplify. But the result is often a home that feels perfectly proportioned to the owner's needs.
Designing a 200 square foot tiny house floor plan is both an art and a science. It requires balancing practicality with creativity, efficiency with comfort. While the constraints might seem limiting at first, they often lead to innovative solutions that enhance daily life. The key is approaching the challenge with an open mind and willingness to think outside the box. Whether you're building from scratch or renovating an existing space, focusing on function over form creates a home that truly serves its inhabitants. The magic happens when you realize that less really can be more, especially when you've thoughtfully planned every single square foot of your 200 sq ft sanctuary.