There's something deeply satisfying about a well-designed ranch home. It's the kind of place where morning coffee spills onto the counter, where kids run through open doorways, and where every room feels like it belongs. When you're looking at homes that clock in around 2000 square feet, the ranch style emerges as one of the most popular choices for families and individuals alike. Why? Because it strikes that perfect balance between spaciousness and manageable size.
If you've ever wandered through a neighborhood and found yourself drawn to a particular house style, chances are you've been captivated by the ranch style. These homes have been around for decades, and they continue to win over homeowners because of their straightforward design and practical layout. When you're considering a 2000 square foot ranch, you're getting enough space for a family to breathe, but not so much that it becomes overwhelming to manage. The beauty lies in how these homes can feel both grand and intimate at the same time.
What Makes Ranch Style Special?
Ranch homes aren't just about looks – they're built around the idea of living comfortably in a single story. This means no stairs to navigate when carrying groceries, no climbing ladders to reach high shelves, and no worrying about elderly family members struggling with steps. The design philosophy behind ranch homes emphasizes easy access and open spaces.

Think of a ranch house as a long, low building that stretches out horizontally. This horizontal orientation creates a feeling of spaciousness that's hard to match in other styles. The floor plan typically features a main living area that flows seamlessly from the kitchen to the dining room to the living room. There's usually a hallway leading to bedrooms and bathrooms, with each room positioned to maximize natural light and airflow.
The ranch style also tends to be more affordable than many other architectural styles. This isn't just because of the construction costs – though those are generally lower – but because the simpler layout often means fewer materials and less complex building techniques. For someone looking for a home that's both comfortable and budget-conscious, ranch homes offer a great solution.
Essential Features of a 2000 Square Foot Ranch
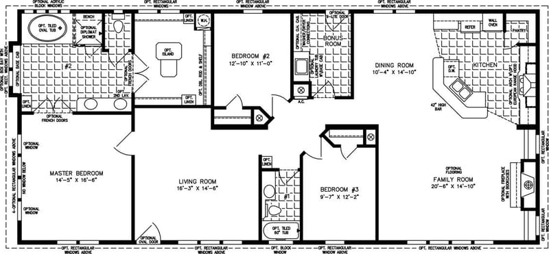
A 2000 square foot ranch doesn't have to feel cramped, even with its modest size. Here are some key elements that make these homes work so well:

Layout Considerations for Family Living
When designing a ranch home, especially one that's 2000 square feet, you want to think about how your family actually lives. This isn't just about having enough rooms – it's about creating a flow that works for your lifestyle.
Consider how you spend time together. Do you eat dinner in the kitchen or prefer the dining room? Is there a quiet space where you can work from home? How do you want to organize your personal belongings?
In a typical 2000 square foot ranch, the main living areas might include:

The layout should encourage interaction and conversation. If you're planning a larger family, you might consider including a study or den that can double as a guest room or play area. The key is ensuring that the flow makes sense for your daily routine.
Designing for Modern Needs
While ranch homes have a classic look, they can easily incorporate modern amenities without losing their charm. The challenge is finding ways to update these homes while maintaining their essential character.
One big trend in modern ranch design is the integration of smart home technology. You can have automated lighting, climate control, and security systems that enhance convenience without cluttering the aesthetic. Energy-efficient appliances and LED lighting can reduce utility bills while keeping the home comfortable.

Another consideration is accessibility. With aging in place becoming more common, many ranch homes now include features like wider doorways, low thresholds, and accessible bathrooms. These modifications don't change the overall style but make the home usable for people of all ages.
Outdoor living spaces are also growing in importance. Even in a 2000 square foot home, you might find room for a deck, patio, or garden area. These spaces provide a transition between indoor and outdoor life, which is especially important in climates where weather allows for extended outdoor activities.
Budget-Friendly Design Tips
Building or renovating a ranch home doesn't have to break the bank. Here are some strategies for getting the most out of your 2000 square foot space without overspending:

Popular Ranch Home Variations
Not all ranch homes look exactly alike. There are several variations that offer different benefits and aesthetics:
Each variation offers its own advantages. Traditional ranch homes are perfect for those who appreciate classic architecture and simple living. Split-level and bi-level designs provide interesting spatial arrangements and can be ideal for homes with sloped lots. Modern ranches combine the best of both worlds – the comfort of traditional ranch design with the sophistication of contemporary styling.
Ranch style floor plans in 2000 square feet represent more than just a house – they're a lifestyle choice. These homes offer the perfect middle ground between spacious living and manageable maintenance. Whether you're looking for a starter home, a retirement residence, or a place to raise a family, the ranch style delivers on comfort, functionality, and timeless appeal.
The key is understanding what makes these homes work so well. It's not just about the square footage – it's about how that space is used and arranged. When you choose a ranch style home, you're choosing a design philosophy that puts people first. Every room is thoughtfully placed to support daily life, and every detail considers how you want to live.
As you explore ranch style options, remember that these homes are incredibly adaptable. With thoughtful planning and creative design, a 2000 square foot ranch can become the perfect reflection of your personality and priorities. The beauty of this style is that it continues to evolve while maintaining its core strengths – simplicity, comfort, and practicality.