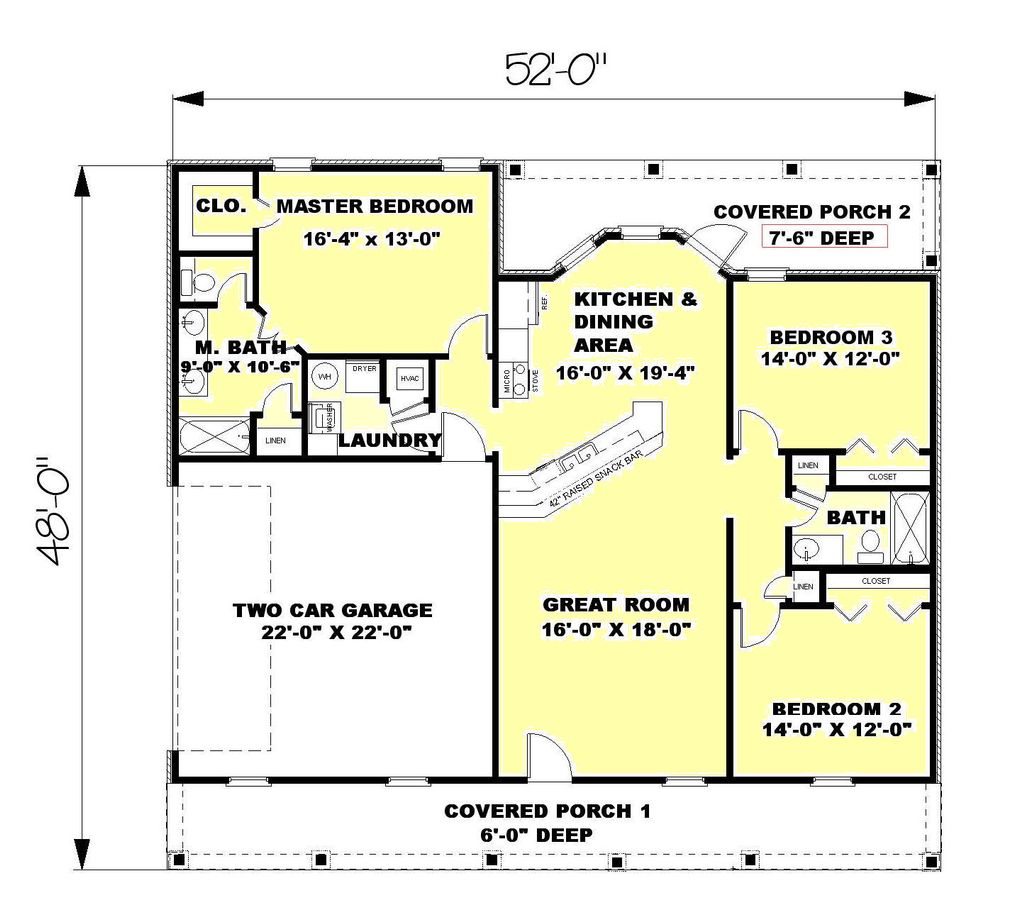
Picture this: a cozy, functional home that's neither too cramped nor too spacious. That's exactly what a 1500 square foot house offers. It's like finding the perfect balance between comfort and practicality. Whether you're a first-time homebuyer, a growing family, or someone looking for a simpler lifestyle, this size strikes that sweet spot. But how do you make the most of every single square foot? Let's dive into what makes 1500 square feet so special.
When you think about it, 1500 square feet isn't just a number – it's a lifestyle choice. This size manages to offer enough room for daily living while keeping costs manageable. Think about it: you're not paying for extra bedrooms you don't need, but you're also not feeling like you're constantly bumping into walls. It's that perfect middle ground that many people find irresistible. Plus, it's versatile enough to suit various family sizes and life stages. From young professionals to growing families, this square footage range accommodates a lot of different needs. And let's face it, it's much easier to heat, cool, and maintain than larger homes. The question isn't whether 1500 square feet is right for you – it's how you'll make the most of it.
Layout Planning Essentials

Designing a 1500 square foot home starts with smart planning. The key is creating open spaces that feel bigger than they actually are. Consider an open floor plan where the kitchen, dining, and living areas flow seamlessly together. This creates a sense of spaciousness that tricks the eye into thinking there's more room. You might think that with less space, you have fewer options, but that's simply not true. The trick is using design elements strategically. For example, a high ceiling can instantly make a room feel more expansive. And don't underestimate the power of good lighting – both natural and artificial. A well-lit space feels much larger than one that's dimly lit. Also, consider multi-functional rooms. A study that doubles as a guest bedroom or a home office that can transform into a playroom gives you more flexibility. The goal is to maximize utility without sacrificing comfort. Every corner matters when you're working within such precise boundaries.
Room Distribution Strategies
How you arrange your rooms can make or break your 1500 square foot dream. Here's how to think about it:

These aren't just design suggestions – they're practical necessities when you're working with limited space. It's all about prioritizing what matters most to your lifestyle.
Maximizing Storage and Organization
Storage is where 1500 square feet really shines or fails. The key is thinking beyond traditional closets and cabinets. What if you could store everything you need in creative, hidden spaces?

Consider these strategies:
The idea isn't just to stuff things away – it's to make everything easily accessible and visually appealing. When you can see and reach what you need without hunting for it, you save time and reduce stress. It's amazing how much better a home feels when everything has its place. Think of it as decluttering with purpose rather than just cleaning up.
Lighting and Visual Design Tips

Good lighting can make a 1500 square foot home feel like a mansion. Natural light is your best friend, but artificial lighting should complement it beautifully. Here's why:
The goal is to make your space feel welcoming and functional. You want it to feel like a home, not just a collection of rooms. Sometimes a few well-placed lights and thoughtful color choices can transform a house from ordinary to extraordinary. Don't forget about window treatments – they can dramatically change how a room looks and feels.
Cost Considerations and Value

Budget plays a big role in how you approach a 1500 square foot home. You'll find that construction costs per square foot tend to be lower than larger homes. This means you can often get more features for your money. However, the devil is in the details. Here's what to keep in mind:
One thing that often surprises people is how much they can customize within a 1500 square foot budget. You might find that you can afford higher-end materials or unique features that wouldn't fit in a larger home. The key is prioritizing what matters most to you. Remember, it's not about having everything – it's about having what you truly need and love.
Practical Living Tips for Small Homes
Living in a 1500 square foot space requires some mindset shifts. Here are some practical approaches that make all the difference:
It's easy to feel like you're missing out on space, but that's exactly what makes 1500 square feet so appealing to many people. It forces you to focus on what's essential and eliminate the unnecessary. You'll find that you appreciate your belongings more and live more intentionally. The result is often a more satisfying, less stressful living environment.
A 1500 square foot home isn't just about compromise – it's about conscious choice. It's about understanding what you truly need versus what you think you want. When designed thoughtfully, this size offers incredible benefits: lower maintenance costs, energy efficiency, and a sense of intimacy that larger homes often lack. The key is embracing the limitations as opportunities. Every wall, every corner, every inch of space becomes intentional. You'll discover that your home becomes a reflection of who you are, not just how much space you have. Whether you're building from scratch or renovating, focusing on smart design decisions will ensure your 1500 square feet feels spacious, comfortable, and uniquely yours. The beauty of this size is that it doesn't demand perfection – it rewards creativity, planning, and a willingness to make thoughtful choices. You're not just buying a house; you're investing in a lifestyle that works for you.