When you're planning a new home, size matters. A 2000 square foot one story house plan offers the perfect balance between spaciousness and manageability. It's large enough to accommodate family needs while remaining easy to navigate and maintain. These homes are popular because they offer flexibility in design, efficient use of space, and practical benefits that appeal to many homeowners.
Picture this: you've finally saved enough money for a house, and you want something that feels just right. Not too cramped, but not so big that you're constantly cleaning. A 2000 square foot one story house might be exactly what you're looking for. These homes have become increasingly popular because they strike a sweet spot in terms of space and simplicity. They're practical, affordable to build, and offer plenty of room for daily life. Whether you're starting a family, downsizing, or simply want a comfortable place to call home, these plans provide excellent foundation for your dreams.

Why Choose a 2000 Square Foot One Story Home?
There's something special about single-story living that appeals to many people. No stairs means easier mobility for aging parents or young children. The open floor plan creates a sense of spaciousness that makes smaller spaces feel bigger. Plus, one story homes often have lower construction costs compared to multi-level designs. They're also easier to maintain, with fewer areas to clean and fewer places where problems can hide. Many people find that a 2000 sq ft house provides just enough room for bedrooms, bathrooms, kitchen, dining area, and living space without feeling overwhelming. It's the kind of home where you can easily entertain guests, keep your family together, and still have some quiet corners for personal time.

Essential Layout Considerations
The key to a successful 2000 square foot one story house lies in thoughtful layout planning. Start by considering how you want to use your space. Do you need a formal dining room, or would an open kitchen-dining-living area work better? Think about privacy requirements - bedrooms should be separated from common areas. Consider the flow of traffic throughout the house. The kitchen should be centrally located but not too crowded. A good layout will make your day-to-day life easier. Many designers recommend having at least two bathrooms if you have multiple people in the household. Also, think about storage needs. You'll want adequate closets, pantry space, and possibly a mudroom or laundry room near the entrance. Some people prefer a master suite with its own bathroom, while others want to keep their bedrooms more evenly spaced throughout the home.

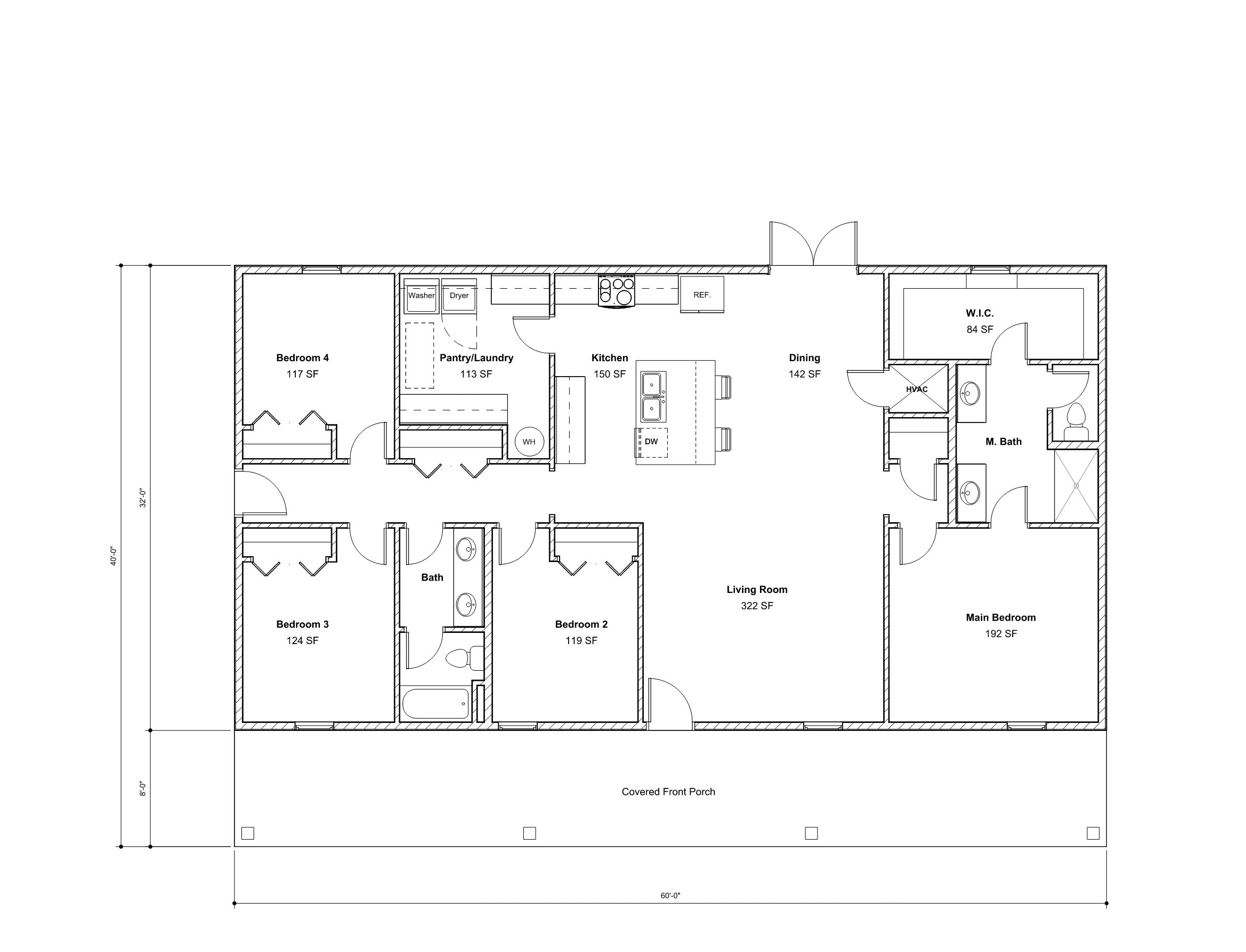
Popular Room Configurations
Different families have different needs, so there are various ways to arrange rooms within a 2000 square foot space. Here are some common setups:

Each configuration offers unique advantages. For example, a three-bedroom setup gives you more privacy options, while an open concept makes entertaining easier. Consider your lifestyle now and in the future. Will you need a home office? How many people will live in your home? These questions help determine the best room arrangement for your situation. Remember that flexibility matters - you want a design that can adapt as your needs change over time.
Kitchen and Dining Design Tips

The kitchen is often considered the heart of the home, and with 2000 square feet available, you have good options for creating a functional space. Think about your cooking habits. If you're a frequent cook, you'll want good counter space and efficient appliance placement. Consider a kitchen island that can serve as extra prep space and informal seating. For dining, you can go with a formal dining room or an informal breakfast nook. The key is making sure there's enough space for movement around the kitchen and dining areas. A well-designed kitchen should allow for multiple people to work in the space simultaneously. Many homeowners appreciate having a separate breakfast area that doesn't interfere with the main kitchen activities. Don't forget about storage - you'll want plenty of cabinets and drawers to keep everything organized and visible.
Bathroom Planning and Space Allocation
Bathrooms often get overlooked in home planning, but they're crucial for comfort and functionality. In a 2000 square foot house, you typically want at least two bathrooms, though more may be necessary depending on your family size. The master bathroom can be a luxurious space with a soaking tub, separate shower, and double vanity. Secondary bathrooms can be more streamlined but still functional. Consider the flow of traffic when designing bathroom layouts. Having a hallway or closet between bathrooms can provide privacy and reduce noise. Also think about accessibility features. As you age, having wider doorways and grab bars becomes important. Many people choose to have a powder room near the entryway for guests. Remember that bathroom space also includes storage for towels, toiletries, and cleaning supplies. Good lighting is essential in these spaces, both for practical purposes and ambiance.
Practical Features and Modern Amenities
Today's homeowners expect certain amenities even in standard-sized homes. Smart home technology integration can enhance convenience and energy efficiency. Consider adding programmable thermostats, smart locks, and lighting controls. Energy-efficient appliances and insulation can significantly reduce utility bills. Many modern plans include dedicated spaces for home offices, exercise areas, or hobby rooms. If you love gardening, consider a sunroom or screened porch that extends your living space outdoors. Storage solutions like built-in shelving, walk-in closets, and garage organization systems can maximize every inch of space. Natural light is another important factor. Large windows and skylights can make interior spaces feel airy and welcoming. Don't forget about outdoor spaces too - a deck or patio area adds value and enjoyment to your home. These features don't require extra square footage but can dramatically improve your quality of life.
A 2000 square foot one story house plan represents a smart choice for many people seeking comfort and practicality. It's a size that allows for good design flexibility while staying manageable in terms of maintenance and cost. Whether you're building a new home or remodeling an existing space, focusing on thoughtful layout and functionality will pay dividends in daily living. Remember that your home should reflect your lifestyle and needs. Take time to plan carefully, consider your future needs, and don't hesitate to work with professionals who understand how to maximize space effectively. With proper planning, a 2000 sq ft one story home can be everything you want it to be - comfortable, functional, and uniquely yours. The possibilities are endless when you start with a solid foundation of good design principles and practical thinking.