Picture this: You're standing in a spacious, open-concept home that feels like it was built for both comfort and functionality. The walls are high, the ceilings soar toward the sky, and every inch of space tells a story of thoughtful design. This isn't just a dream - it's a reality that many homeowners are turning to when they want something different from traditional housing. Enter the barndominium, and specifically, the 2000 square foot version that strikes the perfect balance between spaciousness and manageability.
When you think about homes that offer both style and substance, the barndominium often comes to mind. These unique living spaces combine the rustic charm of barns with modern living amenities. A 2000 square foot barndominium provides enough room to spread out, accommodate family needs, and still feel cozy and intimate. Whether you're planning your first home or looking to upgrade your current living situation, understanding how to maximize every square foot matters. This guide dives deep into what makes 2000 square foot barndominium floor plans special, how they're designed, and why they're becoming increasingly popular among homeowners across the country.
What Makes a Barndominium Special
Barndominiums aren't just another type of house - they're a lifestyle choice. The term combines 'barn' and 'dormitory,' but these homes go far beyond simple dormitories. They're architectural marvels that blend industrial aesthetics with comfortable living spaces.
The beauty lies in their open concept design. Unlike traditional homes with numerous small rooms, barndominiums feature large, airy spaces that can be easily reconfigured. This flexibility means you can adapt your living environment as your needs change over time. Think about it - a kitchen that opens directly into a living area, a bedroom that flows seamlessly into a study, or a garage that doubles as a workshop or guest room.
These homes also tend to have higher ceilings, often ranging from 12 to 16 feet, which creates a sense of grandeur while maintaining a warm atmosphere. Natural light floods in through large windows and skylights, making even the smallest corners feel bright and welcoming. The materials used in construction, such as steel frames and wood beams, give them a distinct character that sets them apart from typical residential buildings.
Key Layout Considerations
Planning a 2000 square foot barndominium requires careful thought about how you'll use each space. Here are some important factors to consider:
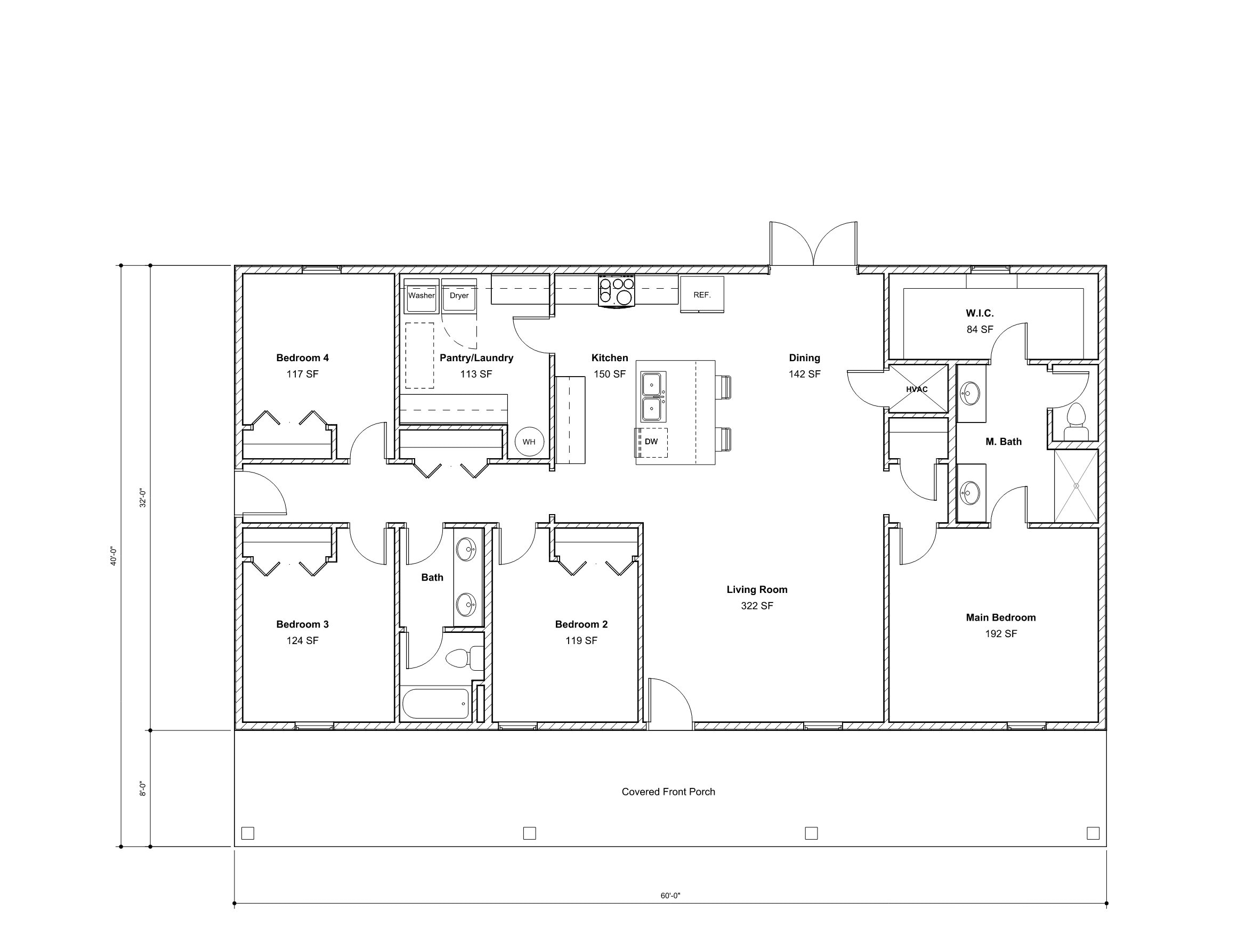
Popular 2000 Square Foot Layout Options
There are several standard layouts that work well for 2000 square foot barndominiums. Each has its own advantages depending on your lifestyle and needs.
Single-Level Designs
These are ideal for families who prefer easy mobility and accessibility. A single-level barndominium typically features:
This layout works particularly well for older adults or those with mobility concerns.
Two-Story Options
A two-story barndominium maximizes vertical space while keeping the footprint manageable. Common arrangements include:
Split-Level Approaches
These designs feature different floor heights, creating natural divisions within the space. They're great for maximizing views and creating distinct zones while maintaining the open feel.
Essential Design Elements
The success of any barndominium lies in its design elements. Here's what makes a 2000 square foot barndominium stand out:

Ceiling Heights
High ceilings are one of the defining features of barndominiums. For 2000 square foot spaces, 12-foot ceilings are common, though some designs feature 14-16 foot ceilings. These create a dramatic effect and make smaller spaces feel more spacious.
Natural Materials
Wood beams, stone accents, and metal elements give barndominiums their signature look. These materials not only add visual appeal but also provide durability and character.
Large Windows
Windows play a crucial role in making barndominiums feel bright and airy. Many feature large sliding glass doors, picture windows, and even skylights to bring in natural light.
Flexible Spaces
One of the biggest advantages is the ability to reconfigure spaces. A room that serves as a dining area during the day can become a guest bedroom at night with the right furniture arrangement.
Practical Features and Amenities
Modern 2000 square foot barndominiums incorporate various practical features that enhance daily life:
Garage Integration
Many barndominiums include garage space that can double as workshop, storage, or additional living area. This flexibility makes the most of every square foot.
Energy Efficiency
With proper insulation and design, these homes can be highly energy-efficient. Solar panels, efficient heating systems, and smart home technology help reduce utility costs.
Outdoor Living Spaces
Many 2000 square foot barndominiums feature extensive outdoor areas including decks, porches, and patios that extend the living space outdoors.
Smart Home Integration
From automated lighting to climate control systems, modern barndominiums can incorporate smart technology for convenience and efficiency.
Budget Considerations and Cost Factors

Understanding the financial aspects of building or buying a 2000 square foot barndominium is crucial. Costs vary based on several factors:
Construction Costs
On average, building a 2000 square foot barndominium ranges from $150 to $300 per square foot, depending on materials, finishes, and location. Steel framing tends to be less expensive than traditional wood framing.
Land Costs
Don't forget that land costs vary dramatically by location. Rural areas may cost less per acre, while suburban locations can be significantly more expensive.
Custom Features
Adding custom touches like gourmet kitchens, master suites, or specialty rooms will increase costs. However, these investments often pay off in terms of comfort and resale value.
Permits and Utilities
Local building codes and utility connections also factor into overall costs. Some areas require special permits for barndominium construction, which can add to expenses.
Maximizing Space Efficiency
In a 2000 square foot barndominium, every square foot counts. Here are ways to make the most of your space:
Multi-Purpose Furniture
Choose furniture that serves multiple functions. A dining table that can convert to a work surface, or a sofa bed that doubles as extra sleeping space.
Built-In Storage
Take advantage of wall space with built-in shelving units, cabinetry, and storage solutions that blend seamlessly with your décor.
Vertical Storage
Use height to your advantage with tall bookcases, wall-mounted storage, and lofted areas for storage or additional living space.
Smart Layout Planning
Consider how furniture placement affects traffic flow and functionality. A well-planned layout makes the space feel organized and purposeful.

Choosing the Right Design for Your Needs
Selecting the right floor plan depends on your lifestyle and future plans. Consider these questions:
Family Size and Dynamics
Will you be raising children? Do you need space for extended family visits? Are you planning to age in place?
Work-from-Home Needs
If you work remotely, do you need dedicated office space? Will you need to accommodate clients or guests?
Lifestyle Preferences
Do you entertain frequently? Do you enjoy cooking and want a large kitchen? Are you looking for outdoor living spaces?
Future Flexibility
Think about how your needs might change over the next decade. A flexible layout allows for adjustments as your life evolves.
Common Mistakes to Avoid
Whether you're designing or purchasing a 2000 square foot barndominium, there are several pitfalls to watch for:
Overlooking Practicality
While aesthetics are important, don't sacrifice function for form. A beautiful space that's difficult to live in isn't worth the investment.
Ignoring Local Building Codes
Different areas have varying requirements for barndominium construction. Research local regulations early in the process.
Underestimating Costs
Always budget for unexpected expenses. Construction projects rarely go exactly according to plan.
Neglecting Future Maintenance

Some materials and features require more upkeep than others. Factor maintenance costs into your decision-making process.
Poor Ventilation Planning
Good airflow is essential in large open spaces. Plan for adequate ventilation to keep air quality healthy.
Making Your Barndominium Unique
One of the greatest joys of owning a barndominium is personalizing it to reflect your personality. Here are ways to make your 2000 square foot space truly yours:
Personal Touches
Add artwork, family photos, and collectibles that tell your story. These details transform a house into a home.
Themed Areas
Create specific areas for different activities - a reading nook, a craft corner, or a music room.
Outdoor Integration
Extend your indoor spaces outdoors with covered porches, fire pits, or garden areas.
Sustainable Features
Incorporate eco-friendly elements like rainwater collection, composting systems, or native landscaping.
Technology Integration
Modernize your space with smart home features that enhance comfort and security.
Finding Professional Help
Building or designing a barndominium requires specialized knowledge. Here's who to consider:
Architects Specialized in Barndominiums
Look for professionals who understand the unique challenges and opportunities these homes present.

Construction Companies
Choose builders with experience in barndominium construction. They'll understand material choices and structural considerations.
Interior Designers
These professionals can help maximize functionality while maintaining aesthetic appeal.
Permit Consultants
Local experts can navigate the regulatory landscape and ensure compliance with building codes.
Real Estate Agents
If you're purchasing, agents familiar with barndominiums can help find suitable properties and negotiate terms.
Looking Ahead: Trends in Barndominium Design
The barndominium market continues to evolve, with new trends emerging regularly:
Sustainability Focus
More homeowners are incorporating green building practices, from solar panels to sustainable materials.
Smart Home Integration
Automation systems are becoming standard features in modern barndominiums.
Mixed-Use Spaces
Combining residential and commercial uses in single structures is gaining popularity.
Enhanced Privacy Features
Newer designs include better sound insulation and privacy solutions.
Customization Options
Manufacturers are offering more modular options for those wanting to build their own barndominiums.
Final Thoughts on Your 2000 Square Foot Dream Home
A 2000 square foot barndominium represents more than just a place to live - it's a statement about lifestyle, creativity, and practicality. Whether you're drawn to the industrial charm, the open space, or the flexibility these homes offer, the possibilities are endless. The key is to approach the project with realistic expectations, proper planning, and a clear vision of what you want to achieve.
Remember that every barndominium tells a story, and yours can be uniquely yours. The 2000 square foot size offers the perfect balance between spaciousness and manageability, making it ideal for families, professionals, or anyone seeking something different from traditional housing. With careful consideration of layout, design elements, and practical features, your barndominium can become a true sanctuary that reflects your values and lifestyle.
The journey to finding the perfect 2000 square foot barndominium floor plan is both exciting and rewarding. It's a chance to create a home that's not just functional but also expressive of your personality and lifestyle. From choosing the right layout to considering budget constraints and future needs, every decision shapes your dream home. The versatility of barndominiums means they can grow with you, adapt to changing circumstances, and provide lasting satisfaction. Whether you're building from scratch or renovating an existing structure, remember that the best floor plan is one that serves your life today and tomorrow. Take your time, explore different options, and trust in the process of creating something truly special. Your 2000 square foot barndominium could be the beginning of an incredible chapter in your life.