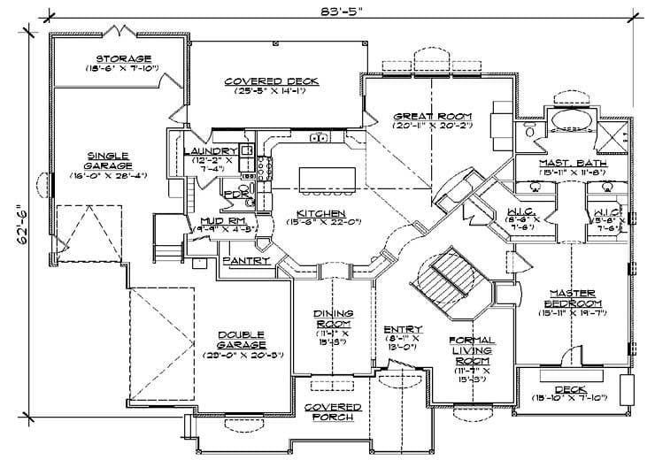
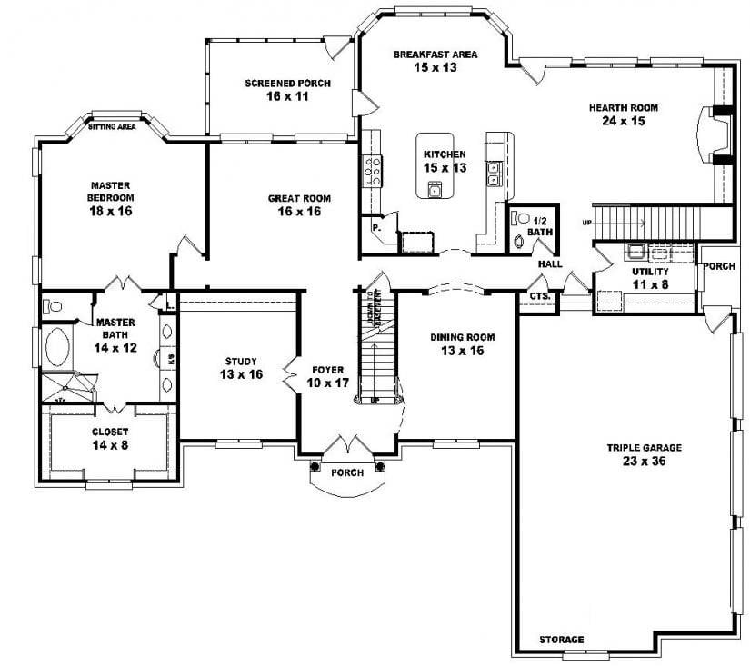
Picture this: a spacious home where every family member has their own private retreat, where the kitchen flows seamlessly into the living areas, and where there's always room for guests. That dream isn't just wishful thinking when you have the right 5 bedroom, 3 bathroom floor plan. These layouts aren't just about square footage – they're about creating spaces that work for your lifestyle, your family dynamics, and your daily routines.
When you're planning a new home or considering a major renovation, the floor plan becomes your blueprint for life. A 5 bedroom, 3 bathroom layout offers that sweet spot between spaciousness and practicality that many families crave. It's big enough to accommodate growing children, aging parents, or even a home office, yet it remains manageable in terms of maintenance and energy costs. Whether you're a young family building your nest or a multi-generational household seeking separate spaces, understanding how to design or choose the right floor plan can transform your living experience.
Understanding the Essentials
Before diving into specific designs, it helps to understand what makes a 5 bedroom, 3 bathroom floor plan truly effective. The key lies in balancing functionality with comfort. Think about the flow of traffic through your home. Where do you want to place the bedrooms? Should the master suite be central or tucked away? What about the bathrooms – how many will be shared versus private? The answers to these questions form the foundation of your layout strategy.

Consider the typical family needs. Most five-bedroom homes serve families with children, often including teenagers who want privacy. The master suite usually gets priority placement, while secondary bedrooms can be grouped together for convenience. Three bathrooms provide flexibility – one for the master, one shared by the kids, and one accessible to all. But remember, the best floor plan isn't just about numbers; it's about creating spaces that enhance relationships and support daily life.
Master Suite Placement Strategies
Where you put your master bedroom makes all the difference in a home's overall feel. Some prefer it at the back of the house, offering privacy and quiet. Others like it toward the front, providing easy access to common areas.
Key considerations:

A well-placed master suite can become the heart of your home's tranquility. When it's positioned correctly, it creates a peaceful retreat after a busy day. But don't forget about the master bathroom – it should complement the bedroom's grandeur with thoughtful features like double vanities, a soaking tub, and perhaps a separate shower.
Bedroom Arrangement and Flow
The way bedrooms are arranged affects everything from family dynamics to daily routines. Grouping bedrooms together can save space and reduce hallway length, while spreading them out might offer better privacy. Consider the age and needs of your family members.
For families with teenagers, having bedrooms on opposite sides of the house can create independence while maintaining family connection. Younger children might benefit from being closer to a parent's bedroom for nighttime reassurance.

Important factors to consider:
A smart arrangement ensures everyone gets what they need – peace, privacy, and convenience – without sacrificing the home's overall efficiency.
Bathroom Design and Functionality
Three bathrooms in a five-bedroom home offer tremendous flexibility, but they must be thoughtfully planned. Each bathroom should serve a specific purpose and contribute to the home's overall flow.

The master bathroom deserves special attention. It's often the most luxurious space in the home and should reflect that. Features might include:
Shared bathrooms work best when they're designed for efficiency. Think about:
Remember that bathrooms are high-traffic areas. Planning for multiple users means thinking about peak times – morning routines, evening preparations, and guests. A well-designed bathroom layout can prevent chaos and create a more pleasant experience for everyone.
Kitchen and Living Space Integration

In modern home design, the kitchen and living areas are often considered one large space. This approach works particularly well in 5 bedroom, 3 bathroom homes because it creates opportunities for family interaction while maintaining privacy zones.
Key elements to consider:
The kitchen should be both functional and social. It's where families gather for meals, where homework gets done, and where casual conversations happen. A well-designed kitchen island or breakfast bar can bridge the gap between formal dining and casual living.
Living spaces should flow naturally from the kitchen. Whether you prefer a cozy family room or a more formal sitting area, ensure it connects smoothly to the main living areas. This seamless transition creates a home that feels lived-in rather than sterile.
Practical Tips for Designing Your Plan
Creating the perfect 5 bedroom, 3 bathroom floor plan takes patience and careful consideration. Here are some practical approaches to guide your planning process:
Remember that floor plans are flexible. You don't have to stick rigidly to traditional layouts. Sometimes the most successful designs come from creative solutions to everyday problems. Perhaps you need a dedicated study for remote work, or maybe you want a bonus room that doubles as a guest suite. These personal touches make a standard floor plan feel uniquely yours.
Also consider the home's orientation. South-facing windows can bring warmth and light, while north-facing rooms stay cooler. These details matter more than you might think, especially in climates with extreme temperatures. A thoughtful approach to natural lighting and views can make your home more comfortable year-round.
A 5 bedroom, 3 bathroom floor plan represents more than just square footage – it represents the foundation of your family's life together. When you approach the design process with intention and attention to detail, you're not just creating a house; you're crafting a space that will support your family through all stages of life. The key is balancing practicality with comfort, ensuring each room serves its purpose while contributing to the whole. Whether you're working with an architect, using online design tools, or simply sketching ideas on paper, keep your family's needs at the center of your decisions. Remember, the best floor plan is one that feels right for your unique situation, not just one that looks good on paper. Every element – from the placement of the master suite to the flow between kitchen and living areas – should reflect your values and priorities. With thoughtful planning and creative problem-solving, your dream home can be built around the perfect 5 bedroom, 3 bathroom layout.