When you're planning your next home purchase or construction project, few things are as important as choosing the right floor plan. A 4 bedroom house plan isn't just about having four bedrooms - it's about creating a space that works for your lifestyle, your family needs, and your budget. Whether you're looking for a single-story ranch, a two-level masterpiece, or something entirely different, understanding the basics of 4 bedroom house plans will help you make confident decisions.
Picture this: you've finally saved enough money to build or buy your dream home. You've thought about everything from kitchen appliances to landscaping, but there's one crucial element that can make or break your entire project - the house plan. A 4 bedroom house plan isn't just a blueprint on paper; it's the foundation of your daily life. It determines how you'll move through your home, where your family will spend time together, and how well your space will serve you for years to come. The right layout can make your life easier, while the wrong one might leave you constantly rearranging furniture and feeling cramped. This guide will walk you through everything you need to know about 4 bedroom house plans, helping you find the perfect fit for your unique situation.

Understanding the Basics of 4 Bedroom House Plans
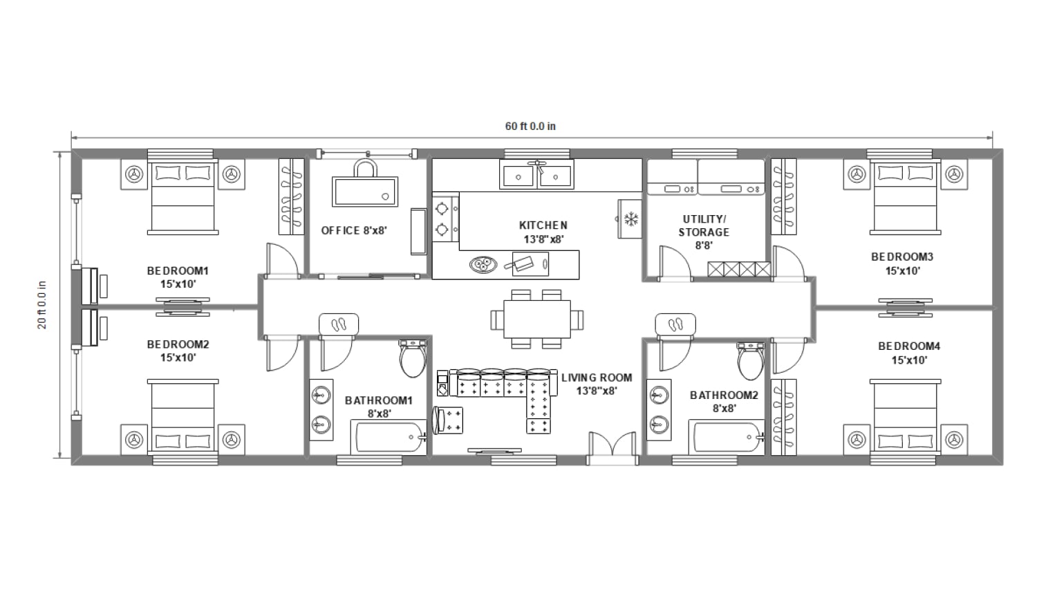
A 4 bedroom house plan typically includes four sleeping areas, usually with a master suite featuring its own bathroom. These homes often have 2,000 to 3,000 square feet, though sizes vary greatly depending on your location and preferences. What makes 4 bedroom house plans special isn't just the number of bedrooms, but how they're arranged and connected. Think about how you want to live. Do you prefer privacy for each family member? Do you like open spaces for entertaining? Are you planning to work from home? These questions shape your ideal layout. Some people love the traditional approach with bedrooms on one side and living areas on the other. Others prefer open-concept designs that flow seamlessly from room to room. The key is finding a balance that meets your current needs and allows room for growth.

Popular Layout Styles for 4 Bedroom Homes
There are several classic arrangements that work well for 4 bedroom houses. The most common is the 'ranch' style, where all rooms are on one level. This is particularly popular in suburban areas and appeals to families with young children. Another favorite is the split-level design, offering a mix of levels and open spaces. For those who appreciate elegance, a two-story layout provides more space and visual appeal. Consider the 'L-shaped' design where bedrooms are grouped together on one side, creating a private wing. The 'U-shaped' arrangement puts the kitchen and dining area in the center, surrounded by bedrooms. Each style offers different advantages. Ranch homes are easy to navigate and great for accessibility. Split-levels can provide good separation between public and private areas. Two-story designs maximize space efficiency and offer more privacy. The choice depends on your local climate, lot size, and personal preferences.

Essential Features Every 4 Bedroom Home Should Have
When evaluating 4 bedroom house plans, certain features become must-haves. First, consider the master suite. It should include a generous closet and a private bathroom with a double vanity. The second bedroom often becomes the guest room, so think about comfort and functionality. Many families also benefit from a study or office space that can double as a playroom or extra bedroom. A large kitchen with plenty of counter space and storage is essential. Don't forget about outdoor access - French doors leading to a patio or deck enhance the living experience. Smart storage solutions throughout the home keep everything organized. Modern homes also benefit from energy-efficient features like proper insulation, smart thermostats, and LED lighting. Consider how much natural light you want in each room and whether you need additional windows or skylights. These elements transform a simple house into a comfortable, livable space.

Space Planning and Flow Considerations
The way rooms connect affects your daily routine significantly. A well-planned 4 bedroom house balances privacy with convenience. The kitchen should be centrally located to accommodate family gatherings and meal preparation. Bedrooms need quiet spaces away from high-traffic areas. The living room should feel welcoming and encourage conversation. Hallways shouldn't be too narrow or long, as they can feel claustrophobic. Consider traffic patterns - how do you move through your home? Where do you naturally go when you wake up? When you get home from work? Good flow means moving smoothly between spaces without backtracking or bumping into walls. Open concept living areas can make small homes feel larger, while traditional layouts provide better sound isolation. Think about how you entertain guests and whether you need formal dining areas or casual eating spaces. The best layouts consider both your current needs and future changes.

Budget-Friendly Design Options
Not every family needs to spend a fortune on their 4 bedroom house plan. Smart choices can save money without sacrificing style. Choose standard room sizes rather than custom dimensions to reduce construction costs. Opt for neutral colors and simple fixtures that won't require frequent updates. Consider building a smaller 4 bedroom home and adding an extension later if needed. Focus your budget on high-impact areas like the kitchen and bathrooms, which affect daily life most. Look for efficient layouts that minimize wasted space. Sometimes, the cheapest option isn't the most expensive in the long run - a poorly planned home may cost more to fix later. Work with designers who understand your budget constraints. Consider using quality materials strategically rather than across the board. Remember that good design principles work regardless of price range - thoughtful layout and smart space usage matter more than expensive finishes.
Making Your 4 Bedroom House Plan Work for Your Family
Every family is different, so your 4 bedroom house plan should reflect your unique situation. If you have teenagers, privacy becomes important. A layout with separate staircases or private wings works well. For families with young children, consider having bedrooms close to a central bathroom. If you work from home, a dedicated office space is invaluable. Think about how many people might stay overnight regularly. Do you need a large garage or carport? Are you planning to age in place? These questions help determine whether a 4 bedroom house plan suits your family's changing needs. Consider how you want to grow as a family. Will you need extra space for aging parents or extended family members? How about future children? The best 4 bedroom house plans are flexible enough to adapt to life changes while maintaining comfort and functionality.
Choosing the right 4 bedroom house plan is one of the most important decisions you'll make in your home journey. It's not just about counting rooms - it's about creating a space that reflects your lifestyle, supports your family's needs, and stands the test of time. Whether you're working with a designer or selecting from pre-made plans, remember that the best layout considers how you actually live. Take time to think through traffic flow, privacy needs, and future flexibility. Don't overlook the importance of natural light, storage space, and comfortable proportions. Most importantly, choose a plan that makes you excited to come home each day. A well-designed 4 bedroom house isn't just a place to sleep - it's where memories are made, where relationships grow, and where you'll spend the majority of your life. With careful consideration and attention to detail, you can find a plan that perfectly fits your family's unique story.